查看完整案例

收藏

下载
From former locomotive shed New cultural hall. Adaptation of 3 Shed in Valencia Central Park by Contell-Martinez
From former locomotive shed New cultural hall. Adaptation of 3 Shed in Valencia Central Park by Contell-Martinez
The Valencian study,
Contell-Martínez Arquitectos
, has completed the first phase of the project for scenic adaptation and cultural equipment of Shed 3 of the
Central Park of Valencia
, the most important railway and an urban project that the port city is currently undertaking, in the southeast coast of Spain.
The original shed renovation built in 1917, classified as a Site of Local Relevance, respects the industrial character of the original work of the architect Demetrio Ribes. This fact has enabled their selection in the 62nd edition of the 2020 FAD architecture and urban planning awards.
The 604.6m² project, designed by
Contell-Martínez Arquitectos
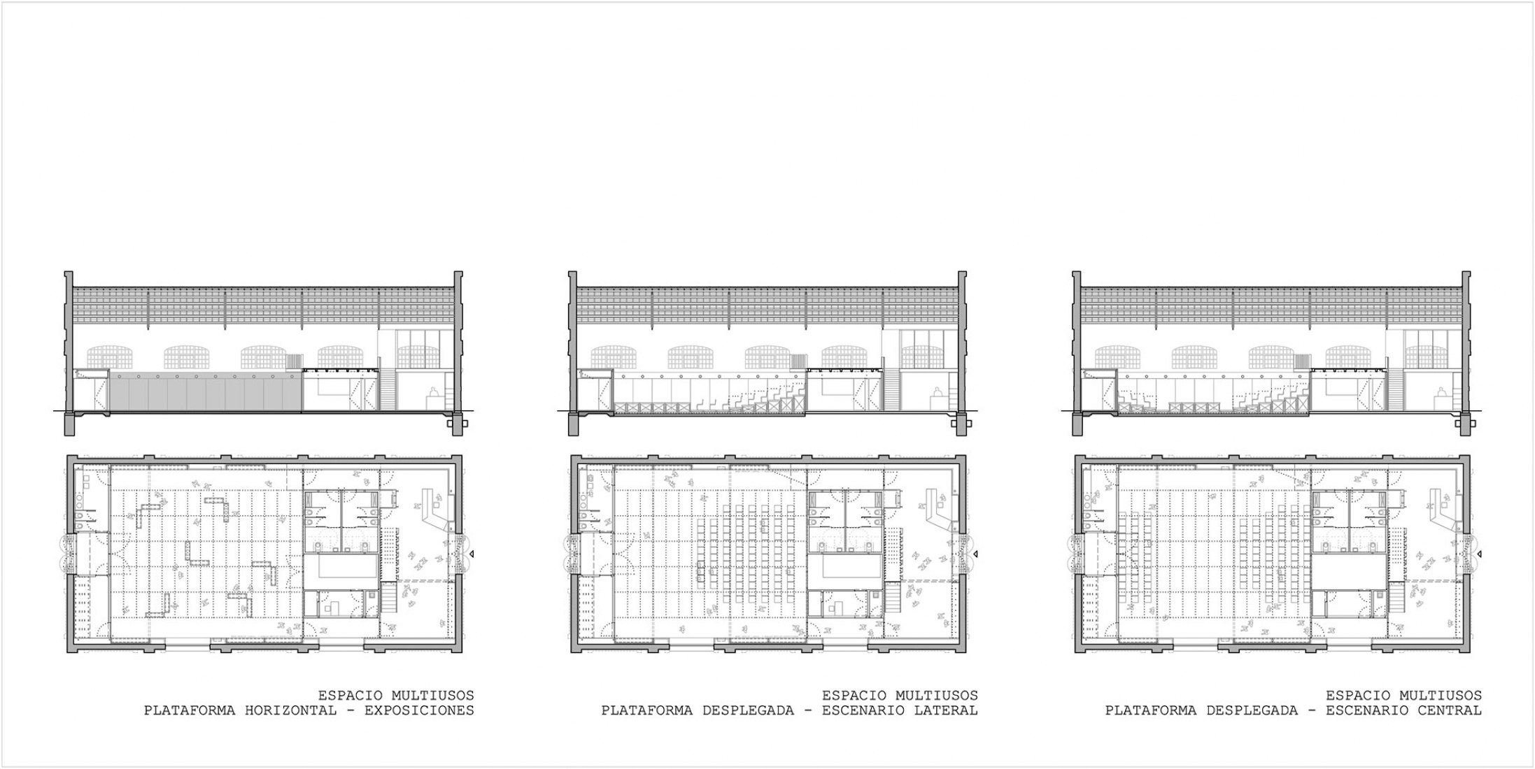
, is an intervention that enables great flexibility of use to carry out various activities simultaneously. The shed is divided into five bays, which geometrically guide the structural rhythm of the project.
In addition, a mezzanine is developed that makes it possible to provide the warehouse with two levels in height, which are essential in the proposal's approach. In addition to this decision, to give continuity and coherence to the proposal, a perimeter furniture is projected through which the necessary facilities run to service the complex.
Project description by
Contell-Martinez Architects
The Project aims to transform an old railway warehouse into a cultural facility within the new Valencia’s Central Park which nowadays covers the old railway tracks of the main city station. The shed was built in 1917 by Demetrio Ribes and it is a valuable example within the railway architecture of Valencia.
The design allows maximum flexibility of use, so different activities can happen simultaneously while respecting the industrial character of the building.
The shed is divided into five bays, which will geometrically guide the project. This structural rhythm, as well as the possibility of developing two levels in height, are fundamental for the proposal.
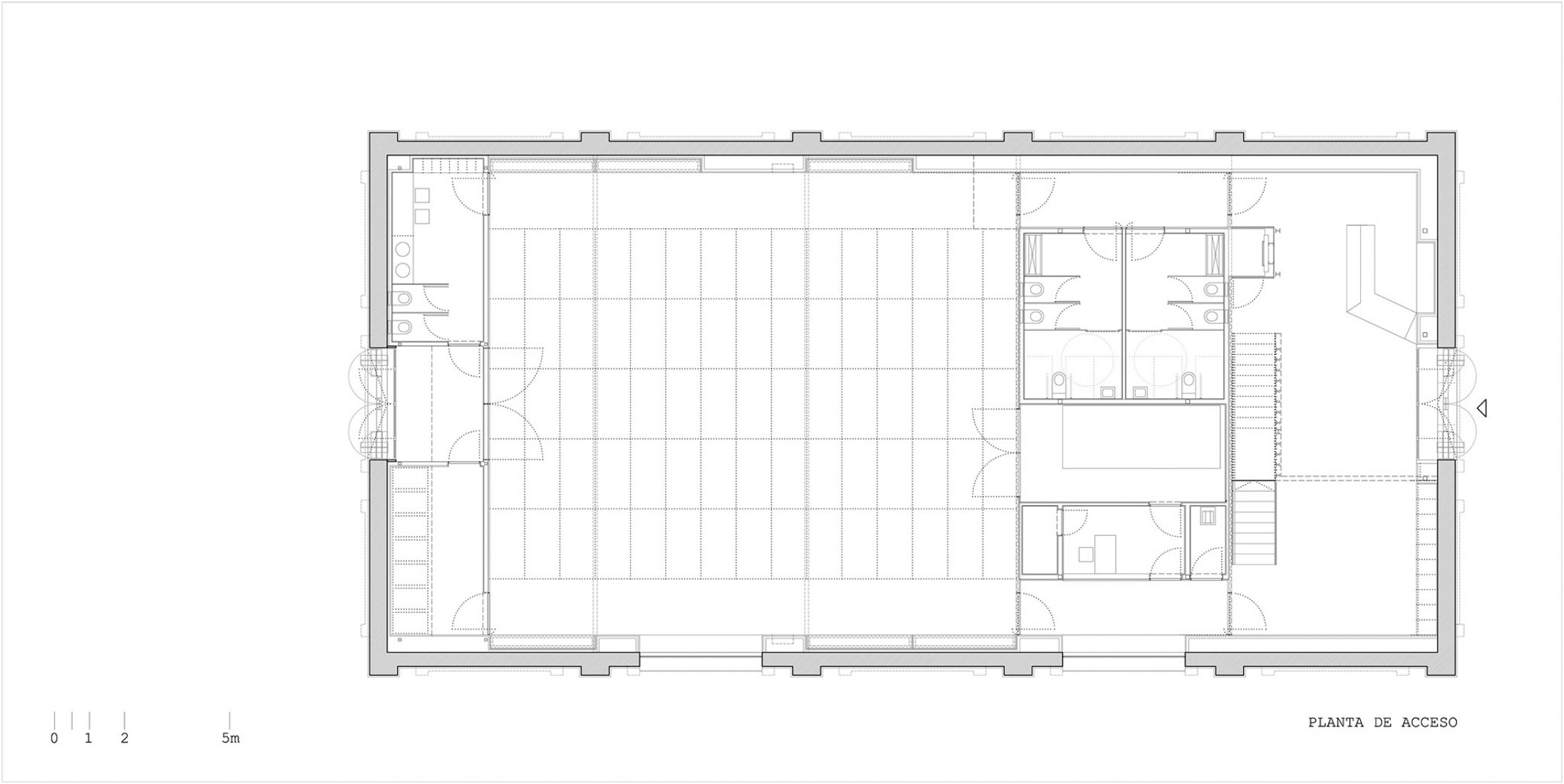
The building has two entries. The front one, for public access, is located next to the main space of the park. On the opposite side, service access allows the entry of scenes or exhibitions material.
The entrance bay is where the lobby is located, with the reception space, the lockers area, the elevator, and the staircase. The latter is located behind a lattice wall, built with old train rails. To make visible the original use of the building, train rails are also reproduced on several glazed surfaces.
On the upper level, a multipurpose room enriches the transition from access to the main space. This glazed space has also a translucent acoustic ceiling, preserving the spatial conception of the shed.
On the ground floor, the second bay is occupied by facilities, toilets, and small office space. On top of this service area, we can find some stands or an elevated platform opened to the main building hall.
The rest of the space is the multipurpose area, where several scenic or exhibitions layouts can take place. Thanks to the provision of a floor of folding platforms, an artificial topography can be generated to fit any desired space setup.
Uniquely bespoke steel closets are designed over the existing brick walls to give continuity and coherence to the proposal. This piece of furniture is also multipurpose container: the new building facilities pass through and it transforms itself into lockers, it becomes the reception desk, the store, or the dressing rooms. This element also breaks down into moving walls to become exhibitions divisions. This metal element contrasts with the original brickwork and built-in perforated metal, which acoustically conditions the old warehouse for the new cultural use.
Sustainability requirements are met thanks to the geothermal power plant located outside the building, and thanks to the installation of high-efficiency air conditioning units on the inside. The steel plates used to build the closets, a hundred percent recyclable and recoverable material, come from a nearby local warehouse. Also, in the design process, the plate sizes were taken into account to minimize the waste.
Contell-Martinez Arquitectos.
Structures.- Fco. Javier Cases. Quantity Surveyor.- Vicente Sevila. MEP.- Leing, S.L. Construction management.- Mª Dolores Contell, Juan Miguel Martínez, Sandra Castellano.
Contratas Vilor, S.L.
Valencia City Council.
604.76m².
1st phase.- 2017 - 2019.
€ 330,578.51 (excluding VAT).
TENSIONED PVC CEILING.- Barrisol. LIGHTING.- Zumtobel / Thorn / Nexia. MECHANISMS.- Simon. AIR CONDITIONING / VENTILATION.- Daikin (equipment), Trox (grilles and nozzles). INSULATION.- Danosa. LIGHT WAREHOUSE.- Placo. DOORS RF.- Andreu. COLLABORATING AND CORRUGATED SHEET.- Europrofile. STAINLESS TEARED SHEET.- Arcelor Mittal. STEEL SANITARIES.- Timblau.
Shed 3 of the Central Park. Street Filipinas s/n Valencia, Spain.
Mariela Apollonio.
Mª Dolores Contell y Juan Miguel Martínez. Contell-Martínez Arquitectos
Contell-Martínez Arquitectos
Mª Dolores Contell Jurado
(1984) and
Juan Miguel Martínez López
(1981), architects from the Technical School of Architecture of Valencia (July 2009 and January 2007), since 2009 began their professional career together forming the study Contell-Martínez Arquitectos, having collaborated in different architecture studies since 2006 and 2002, respectively, acquiring a wide experience in the field of architecture and knowing different ways of approaching it.
Much of his professional work is based on the development of competitions and public architecture, having won numerous awards and recognitions, among which the first Prize awarded at the VIII Preliminary Competition of the Valencian Institute of Housing (IVVSA) Of 110 (50 + 60) protected housing in the Pobla de Vallbona, Valencia [2009]; the First Prize of the Competition for the Construction of the Center for Research in Food Biotechnology at the University of Burgos (CIBA) [2010]; or the Competition for the Rehabilitation of the Old Railway Station of Burgos [2013].
Their works have been selected, among others, in the 62nd edition of the FAD Architecture and Urbanism Awards (2020), in the VIII edition of the Enor Architecture Awards (2020), at the XIV Spanish Biennial of Architecture and Urbanism (2018), in the VI edition of the Arquia Próxima Prize (2018), in the III Hyspalit Architecture Prize (2018), they have been shown in numerous exhibitions or lectures and have been published in different national and international media.
客服
消息
收藏
下载
最近








































