查看完整案例

收藏

下载
一条木板走道通向这座铺满木材的健身房和水疗中心,由麦凯-莱昂斯甜苹果建筑师设计,伴随着新斯科舍大西洋海岸的一处住宅(幻灯片)。
麦开-里昂的创始人布赖恩·麦凯-里昂在2015年度赢得了加拿大最负盛名的建筑奖,他设计了这座小木结构建筑,以配合组成22楼的两个街区,该公司于1998完工。
单层砌块呈立方形,并包在雪松木板上,补充了现有房屋和宾馆的铁块。
“前两个展馆是漂浮在两个农田山顶上的乡土铁杉盒,”工作室说。“它们在计划和章节上都是精确一致的。”
“这座新的,第三个展馆的位置和体验非常不同,在其他展馆下面,藏在森林的边缘,面对一片田野,在大海前,”它补充道。
它被设想为一块完整的木头,雕刻成内部空间。
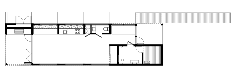
木木板路跨越崎岖的苔藓和巨石的地形,提供水疗中心的通道。它通过一个玻璃门廊进入,由建筑师设想作为一个“咬”的正面。
在里面,一边是桑拿和潮湿的房间,另一边是一个厕所,一个紧凑的厨房,一个拉出的床,和一个烧烤的储藏区。
大型中央空间可用于各种功能-作为聚会场所,或作为锻炼空间。它通向一个隐蔽的朝南的露台。
与外部一样,室内空间也是由锯槽---它被用于所有的内置家具,也包括天花板。
唯一能看到的其他材料是地板上的混凝土和浴室里的釉面砖。
“最低限度的方法需要高水平的工艺,以实现平静,平静的效果,”工作室补充说。
Brian MacKay Lyons在诸如豪宅22这样的项目上建立了自己的声誉,并完成了许多利用乡村环境的住宅。他被授予“2015皇家建筑学院加拿大金奖”的“纯洁、庄严、诗意、美丽”的态度。
他的公司的其他项目包括一座海滨度假别墅,坐落在一排狭窄的混凝土鱼鳍上,以及一栋延伸到岩石露头边缘的房子。
平面图-点击以获取更大的图像
部分-单击以获取更大的图像。
客服
消息
收藏
下载
最近















