查看完整案例


收藏

下载
西班牙H阿奎特工作室在加泰罗尼亚修缮和扩建了一座破旧的中叶学校大楼,增加了一个新的混凝土砌块和板条屏幕的外观(幻灯片)。
h阿奎特的任务是复兴在巴塞罗纳郊外的萨巴德尔906学校建造的1959座建筑。
其目的是改善学龄前儿童所使用的设施,并引入一些额外的室外空间。
该建筑物的现有结构被保留,南面的正面扩大,以容纳更多的教室空间。内部也被完全翻新,一个新的门廊被增加到主要入口。
建筑师们在一份项目声明中说:“基本的策略是利用原始建筑的巨大潜力,包括建造的表面和有用的空间。”
“原来的建筑没有遗产价值,但作为现有的基础设施,它确实具有一定的物质价值。”
建筑物的一些更有特色的细节被保留下来,比如在某些室内空间内的砖墙正面朝上看街道和桶形拱形天花板。
这些材料和他们开发的帕蒂纳随着时间的推移,提供了一个有意的对比,以新的补充。
“我们对原始材料感兴趣,认为这是一个有灵魂的建设性元素,”项目组补充道。
“干预的主要目的,无论是在内部还是在原来的街道正面,都是为了加强新旧两部分之间的关系和紧张关系。”
扩建部分与大楼的南立面相连,使建筑的整体深度从15.5米增加到18.5米,并随后扩大了每一层教室的尺寸。
在一楼,学前教育教室延伸到内部庭院,而在第一层和第二层,面向街道的年长儿童的教室通过将现有走廊转移到中央承重墙的另一边来扩大。
面对庭院的新立面采用了几种被动的太阳能遮阳装置,包括固定的穿孔金属百叶窗来调节附带的阳光,所以直接的太阳只能在冬天到达室内。
板条金属百叶窗是固定在道格拉斯松木的框架,引入垂直元素,否则占主导的水平节奏的正面。
这两种材料都是因为它们对天气的抵抗力,以及对从操场上弹跳的球的抵抗力。
对街道面北面高地的干预是最小的,重点是保持立面现有的重要性和构成。
六扇新窗户改善了交叉通风,而混凝土的封锁显然标志着干预措施,如新的楼梯已经建成。
这座建筑的屋顶被改造成一个额外的游乐场,可以俯瞰整个城市。这一地区以前是无法进入的,现在是通过在现有楼梯井上增加一段新楼梯到达的。
一些现有的入口已被堵上,并增加了新的门,以改善进入学校的机会。
在正门的一个门廊上增加了一个更高的屋顶,以给这个聚会点一个更舒适的感觉,它连接了学前和学校的其他主要设施。
以前,阿奎特在西班牙的科斯塔布拉瓦设计了一座混凝土覆盖的度假屋,房间里有各种元素,还有一座四合院,挤在北部城市格拉诺勒的两堵破败的墙壁之间。
摄影是由阿德里亚古拉。
项目信用:建筑师:h ArquArchtes(David Lorente,Josep Ricart,Xavier Ros,Roger Todó)合作者:Blai Cabrero,Carla Pi ol,Toni Jiménez团队:BISarqutectes结构设计(项目阶段):DSM ArquArchtura结构设计(施工阶段)和BAC工程开发人员:AgrupacióPedgica Sant Nicolau
站点计划-单击以获得更大的图像
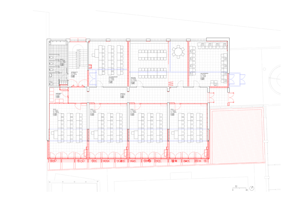
底层平面图-点击获取更大的图像
一楼平面图-点击以获取更大的图像
二楼平面图-点击以获取更大的图像
屋顶图-点击以获得更大的图像
前后部分-单击以获取更大的图像。
横截面-点击以获得更大的图像
客服
消息
收藏
下载
最近






















