查看完整案例


收藏

下载
© Photographix India
印度照片
架构师提供的文本描述。客户简介是在孟买郊区设计一所K-12学校。关键的挑战是分三个阶段建造大楼。
Text description provided by the architects. The client brief was to design a K-12 school in one of the Mumbai suburb’s. The key challenge was to provide for constructing the building in 3 phases & to ensure a non-rigid environment.
© Photographix India
印度照片
这所学校将在5至8年内分阶段建造,这为设计一座不断发展的建筑提供了一个机会。
The fact that the school was going to be built in a phased manner over 5 to 8 years, presented an opportunity to design a building that grows.
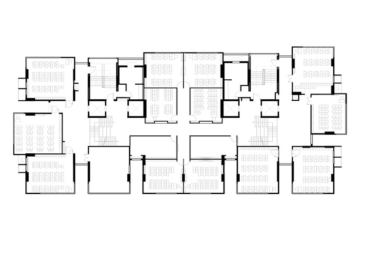
孟买非常高的土地价格,再加上倒退的建筑法规,使得在设计方案之外引入非程序化的空间变得非常困难。这也意味着一座垂直的学校建筑。挑战是在垂直环境中创造一种横向感觉。
The very high land rates in Mumbai coupled with regressive building regulations made it very challenging to introduce un-programmed spaces beyond the design program. It also implied a vertical school building. The challenge was to create a horizontal feel within the vertical environment.
© Photographix India
印度照片
一个孩子在蹒跚学步的时候进入学校。
A child enters a school as a toddler & leaves as a teenager. It was important that the design remains valid for generations of children. It was important that a school went beyond the 3 dimensions of space and catered to the 4th dimension of time.
© Photographix India
印度照片
中心街区被设想为无柱空间,容纳实验室、图书馆等公共设施。允许灵活性以适应不断变化的功能需求。左边
The central block was conceived as column free space that housed the common facilities like laboratories, library etc. allowing flexibility to adapt to changing functional requirements. For the left & right wings the column structure followed the classroom grid. Together it ensured minimal cost of structural design. Further a split level was created by staggering the central bay level by 4’-0. This ensured two floors of classrooms could access common activities. The connecting staircase was planned not just as a means to access the levels but also allow children & teachers to pause, sit & synergize in an informal manner.
好玩的设计
The playful design & the colour treatment emphasized the informality of the space. The fact that a staircase is free of FSI in Mumbai, helped generate the additional space required for 5 divisions per standard to make the financial model viable. Strategically widened corridors, created pauses that further encouraged unplanned interaction.
© Photographix India
印度照片
对于一栋教育大楼,根据规定,最低净楼层高度为3.6兆瓦。这样可以在两层之间提供3个厕所,并腾出更多的地板空间。
For an education building the minimum clear floor height as per the regulations was 3.6mts. This allowed for providing for 3 toilets between two floors and freeing some more floor space.
该设计基于被动气候控制的原则,以优化自然光的使用。
The design was based on the principles of passive climate control to optimize the use of natural light & ventilation by scientifically capturing and guiding wind through corridors and natural sunlight through the light shelves. The light shelves were an innovation that took advantage of the building bye laws that permitted only 750mm deep horizontal projections free of FSI to reflect glare free sunlight deep into the classroom and provide a cost effective visual feature on the façade.
© Photographix India
印度照片
暴露的具体,其暗示的永恒,坚固,中立和诚实的表达成为明确的选择作为背景。镀银铝窗
Exposed concrete, with its allusions to timelessness, ruggedness, neutrality and honesty of expression became the clear choice as backdrop. Silver anodized aluminium windows & light shelves complemented the exposed concrete. The entire colour wheel palette offered an inexpensive method of Infusing life and vibrancy.
© Photographix India
印度照片
基于逆变技术的高壁分离式室内机组是空调最经济的选择,管道的运行通道在结构设计中是无缝集成的。同样,在光束中引入了光槽,以容纳灯,使照明装置成为结构的组成部分。
Hi-wall split indoor units on inverter based technology were the most economical option for air-conditioning and the channels to run the piping were seamlessly integrated in the structural design. Similarly light grooves were introduced in the beams to house the lights so that the light fixtures became the integral part of structure.
Architects Tushar Desai Associates
Location Chembur, Mumbai, Maharashtra, India
Category Elementary & Middle School
Architect in Charge Tushar Desai, Chaula Trivedi
Design Team Abdulla Gavandi , Bhushan Kumawat , Riddhi Rathod , Payal Mehta , Kavita Jadhav , Anka Kacholia
Area 7980.0 sqm
Project Year 2015
Photographs Photographix India
客服
消息
收藏
下载
最近





























