查看完整案例


收藏

下载
玻璃薄荷-绿砖交替创造一个篮织图案横跨这所学校建筑的墙壁,这也是框架一系列的梯田和覆盖的游戏空间(幻灯片)。
安特卫普工作室增加了街区,以提供额外的教室和一个多功能大厅现有的一所小学在比利时的繁荣。
绿色的小砖块盖住了建筑物的预制混凝土结构。每一个都有一个四条条纹的表面,他们被布置的水平和垂直,以创造一个编织模式的效果。
建筑师说:“一个具有独特且可识别的设计的功能体积将其本身作为“整个学校环境和邻里升级的催化剂”。
这所学校坐落在一片狭小的地块上,唯一可供扩建的建筑空间是操场。
为了保持尽可能多的室外游乐空间,建筑师们把元素堆放在另一层之上--大厅夹在一楼地面上的两套教室和第二层的教室之间。
两间供三至六岁儿童使用的课室,旁有一条宽阔的地面通道,可作为一个有盖的游乐场。
在上层,在大厅和教室旁边设置了一对宽大的露台,供12岁以下的大龄儿童使用。它们是由一个外部楼梯连接起来的,而外部楼梯则是由砖墙正面的弯道显示出来的。
建筑师们说:“我们的目标是创建一所开放学校,向社区传递一个慷慨的信息,而设计的一个重要要素就是在建筑和开放空间之间寻求适当的平衡。”
“这座建筑产生了一系列的空间--从地面到外部的连续运动。”
他们补充说:“这个延伸并不是一个自主的空间,它与周围的环境形成了一条硬线,而是形成了从外部到内部的平稳过渡,并在两个游乐场之间起到了中介作用。”
教室内部用白色橱柜和有斑点的米色地砖完成。
托马斯·科尔斯·克里斯·埃拉尔茨和芭芭拉·莫里塞于2006创立了阿莱尔建筑公司,并共同设计了包括安特卫普附近一座砖混联排别墅在内的建筑,以及一个围绕着两个庭院布置的养老院。
摄影作品是蒂姆·范德·韦尔德。
就像Facebook上的Dezeen最新的建筑、室内和设计新闻
项目贷项:
建筑:区域建筑客户:AG Real Estate/DBFM结构工程:Jo Deflander ir-Architect
技术研究:Gebotec建筑:Strabag
站点计划-单击以获得更大的图像
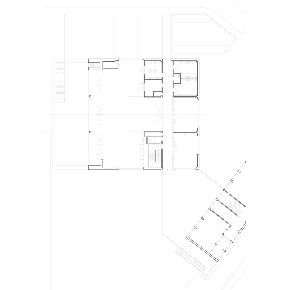
底层平面图-点击获取更大的图像
一楼平面图-点击以获取更大的图像
二楼平面图-点击以获取更大的图像
第1节–单击更大的图像
第二节-点击更大的图像
客服
消息
收藏
下载
最近


















