查看完整案例

收藏

下载
纪念碑式的酒店设计,城市中的视觉桥梁
该酒店在城市中所扮演的角色是成为一座视觉上的桥梁,从旁边一组组林立的高层办公建筑中延伸出来并与另一侧比较平和的老旧住房联系。建筑的设计形式也是为了能够与周围的柏树群相融合,它想要通过“化身”为一个巨大的“种植园”并对自然植物表达敬意。
建筑所在场地的周边环境从物理和精神两个方面所显示出的多样性和对比性激发了事务所的目标,这个目标体现在项目室内外设计的方方面面。
尽管建筑在平面布局和体量上面都进行了人为的削减以符合人类的尺度,但是它仍然保留了一些大尺度的元素,比如动态形状的门廊,再比如大楼外立面上整体的表皮,这层表皮为建筑营造出了某种纪念碑形式的感觉。
该酒店在城市中所扮演的角色是成为一座视觉上的桥梁,从旁边一组组林立的高层办公建筑中延伸出来并与另一侧比较平和的老旧住房联系。
建筑的设计形式也是为了能够与周围的柏树群相融合,它想要通过“化身”为一个巨大的“种植园”并对自然植物表达敬意。酒店的名称便是直接以小树林这个单词命名的。建筑立面上采用了穿孔纤维混凝土曲面板建造。
酒店房间的室内设计是一种最新的现代主义风格,其中大部分的家具和物品都安装在墙上。室内空间很干净,没有任何艺术装饰挂件。
另外纯净简约内饰的房间则在大床的前方设计了一个用于投影的大屏幕。走廊上三种柔和的颜色是想要提供一种将设计风格从现代主义转向超现实主义的体验感。
配套餐厅的设计风格给人一种鸡尾酒会的感觉,它采用了一种不连贯的美学图案,给人的感觉类似于一场盛大宴会之后留下的让人念念不忘的回忆。
在休息室里,从织物墙后面照亮的瓶子里投射出五颜六色的光线照亮室内。酒吧里面用汽车包装箔进行装饰,使光滑的铜表面变得更有厚度感并充满活力。
图纸
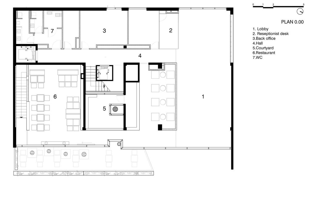
一层平面图
二层平面图
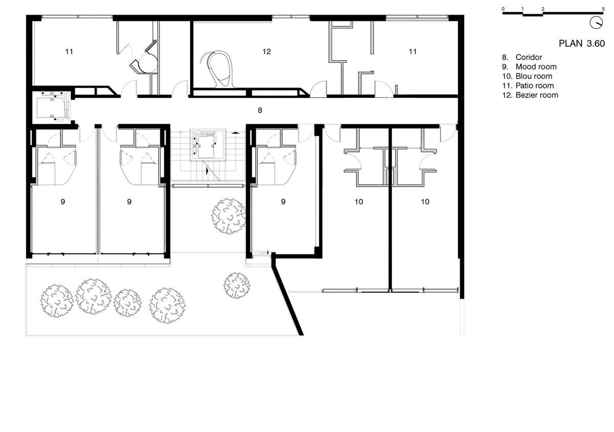
三层平面图
项目信息
建筑设计:Laboratory of Architecture #3
建筑类型:酒店及体育设施
酒店餐饮
项目状态:已建成
项目时间:
2017年
项目规模:1000-
3000平方英尺
项目预算:
100-500万美元
客服
消息
收藏
下载
最近























