查看完整案例

收藏

下载
Bradly Gunn
Seattle, WA, US
South Elevation
Art School - San Francisco
Inspired by the texture and light qualities of a dense redwood forest. The School celebrates texture and dappled light.
Status:
School Project
Inspiration
Inspiration
Inspiration
South Elevation
East Elevation
Section A
Section B
Section D
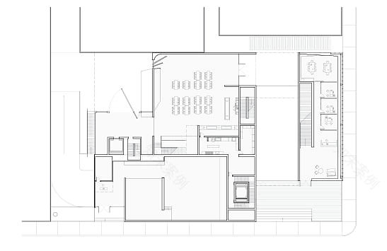
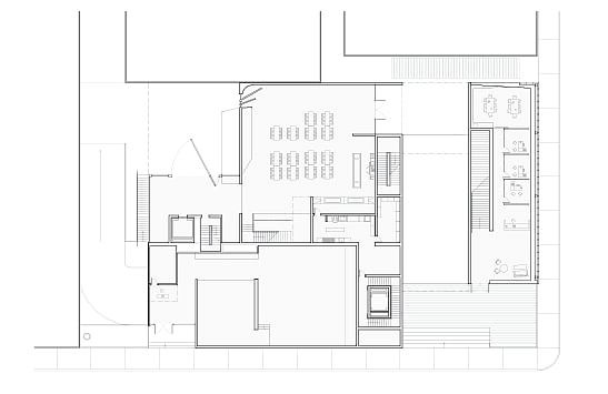
Ground Floor
客服
消息
收藏
下载
最近













