查看完整案例

收藏

下载
Kunterbunter Unterricht
Sanierung einer Grundschule bei Paris
Schrägdächer kennzeichnen die baulichen Erweiterungen der von SOL Architecture et urbanisme sanierten Schule in Trappes. © Clément Guillaume
Mut zur Farbe: In der Nähe von
Paris
sanierten SOL architecture et urbanisme eine
Grundschule
. Passend zur jungen Auf die Nutzergruppe bedacht, entwarfen sie ein buntes, partizipatives Konzept mit dem Fokus auf
Nachhaltigkeit
.
Die Schule vor dem Umbau: Metallelemente verstecken den Baukörper. © Clément Guillaume
Südwestlich von Versailles befindet sich die Kleinstadt Trappes. Um der wachsenden Population gerecht zu werden, beschloss die Gemeinde die
Revitalisierung
der städtischen Einrichtungen. In diesem Zuge wurde auch die in den 1960er- Jahren angelegte Jean-Macé-Schule wiederbelebt. Der Bauauftrag umfasste die thermische
Sanierung
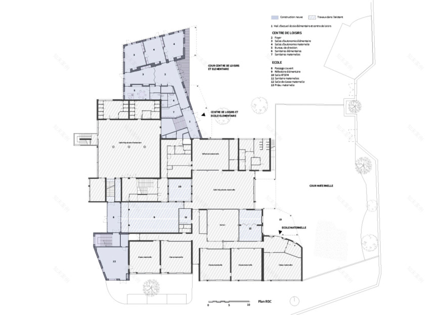
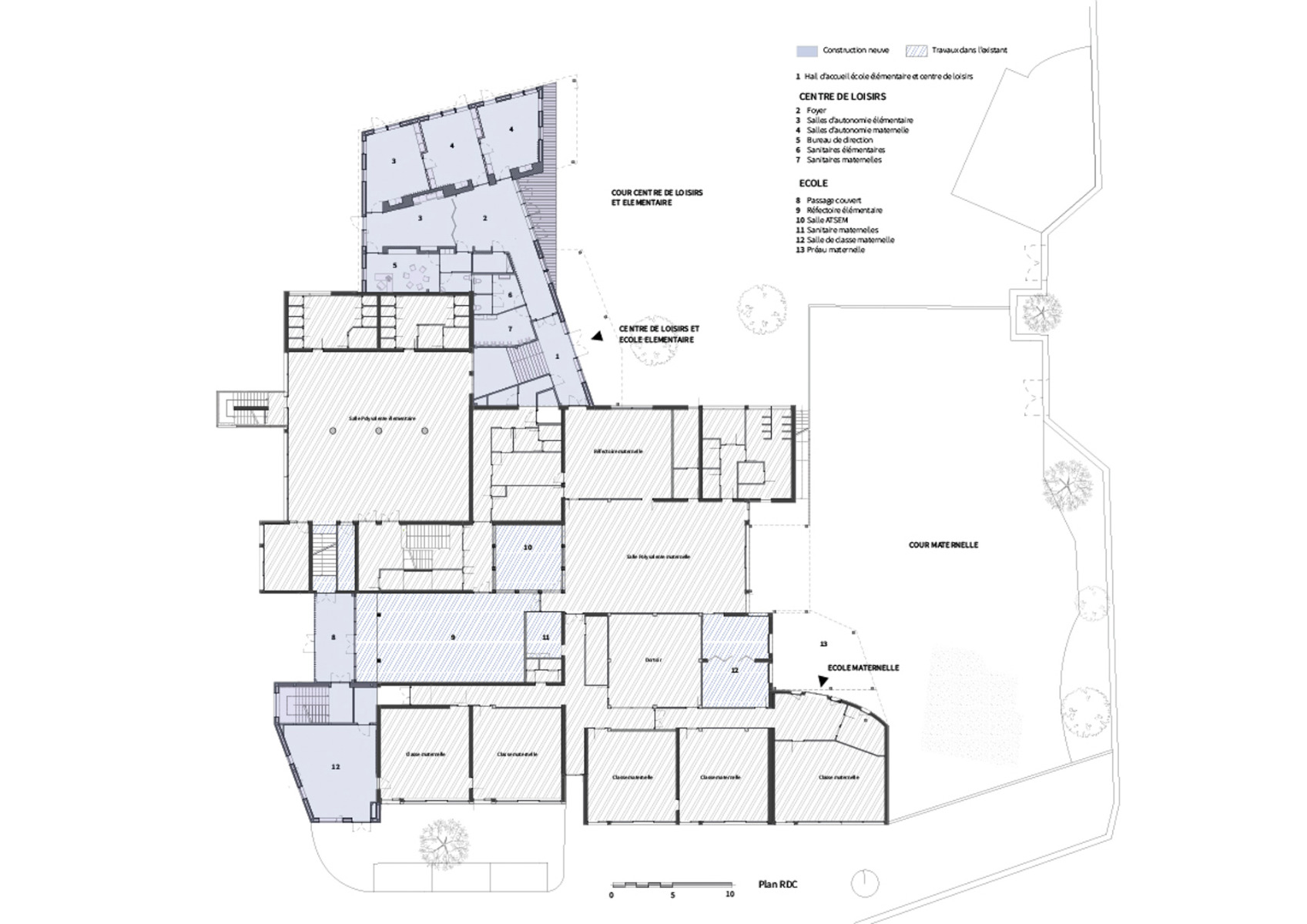
der Fassaden, die Neuordnung der Nutzbereiche sowie zwei Erweiterungen.
Das Bestandsgebäude versteckte sich hinter weißen Metallelementen, die seit den 1990er- Jahren die
Fassade
prägten. Das in Paris ansässige Büro SOL Architecture et urbanisme befreite das Schulgebäude von diesem metallischen Panzer. Die Fassaden zeigen sich nun in kunterbunten Farben, die Abwechslung in den Schulalltag bringen.
Die Schule nach dem Umbau: Farbenfrohe Fassaden ersetzen das kalte Metall. © Clément Guillaume
Erweiterungen
Die zwei Erweiterungsbauten gehen nahtlos in den bestehenden Baukörper über. Sie unterscheiden sich durch ihre Schrägdächer und die größeren Öffnungen. Sie bestehen aus einer Holzrahmenkonstruktion und einer Dämmung aus Holzwolle. Lehmziegelmauerwerk füllt die Rahmen der zwei sogenannten „Spaß-Wände“. Das Anfassen und das Riechen der Baustoffe sollen die schulen Sinne der Kinder schulen.
Multisensorisches Lernen: Die Holzrahmenkonstruktion der Erweiterungen wurde an zwei Wänden mit Lehmziegelmauerwerk ausgefüllt. © Clément Guillaume
Nachhaltige Baustoffe
Die Auswahl der Baustoffe steht ganz im Zeichen der Nachhaltigkeit. Die verwendeten Materialien sind minimal verarbeitet, enthalten wenig Klebstoffe oder giftige Produkte. Sie sind zudem lokal und langlebig.
Die Einbauten sind multifunktional und richten sich nach den Bedürfnissen der Kinder. © Clément Guillaume
Partizipatives Konzept
Im Austausch mit den Lehrkräften und den Kindern erarbeiteten die Planenden ein partizipatives Konzept. So passt sich die Volumetrie der Größe und der Bewegungen der Kinder an. Die Innenausstattung ist dabei multifunktional gedacht: Nischen schaffen Rückzugsorte in offenen Bereichen, Stauräaume ist sind gleichzeitig Sitzgelegenheiten und die Treppen dienen neben der Erschließung auch dem Aufenthalt.
Das Konzept der Farben und Texturen fördert die Neugier der Kinder. © Clément Guillaume
Das sanierte Schulgebäude zeigt sich einladend und farbenfroh. Ein besonderes Highlight ist die Verkleidung aus tiefblauen Mosaikfliesen am Gebäudesockel – ein Detail, das neugierige Kinderhände einlädt.
Architektur: SOL architecture et urbanisme
Bauherr: Stadt Trappes
Standort: Rue Jean Macé, 78190 Trappes, (FR)
Tragwerksplanung: Alterea
Fluid- und Wärmetechnikplanung: Pouget consultants
客服
消息
收藏
下载
最近



































