查看完整案例

收藏

下载
Морская стихия
Апартаменты с морской тематикой и прохладной колористикой
Автор проекта: Франчян Елена, Матвеев Борис
Объект: Морская стихия
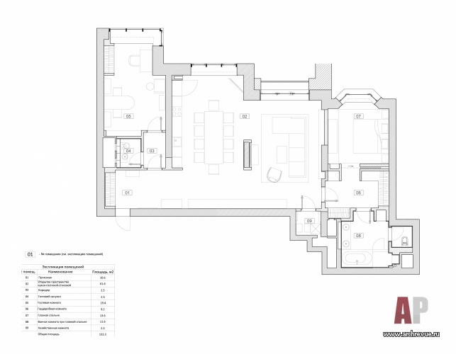
Общая площадь: 133 кв.м.
Уникальные характеристики обьекта
интерьер с яркой образностью
прохладная и свежая цветовая гамма
деревянные изделия с текстурой дерева, которое долгое время находилось под воздействием морской воды, солнца и песка
стеклянные светильники-шары выполненные на заказ по авторским эскизам
Объединенная гостиная-столовая. Люстра над обеденным столом выполнена на заказ по эскизам Faber Group. Она собрана из стеклянных шаров различной величины в песочно-голубой цветовой гамме.
Мягкая группа в квартире с морской тематикой. Диван, Ivano Redaelli. Журнальный стол, La Falegnami. Кресло, CTS Salotti (модель Cocoon). Комод, Capo D’Opera.
Центральную часть квартиры площадью 133 кв. м занимает гостиная, объединенная с кухней и столовой. Кухонный гарнитур, Beckermann. Мрамор столешницы и фартука кухни, Callicata Gold.
Столовая группа в современных апартаментах. Опоры обеденного стола от Cattelan Italia выполнены из прозрачного стекла. Стулья, Poltrona Frau.
Для створок всех встраиваемых шкафов и поверхностей настенных панелей был выбран единый цвет и фактура шпона. Его текстура напоминает текстуру дерева, которое долгое время находилось под воздействием морской воды, солнца и песка. На стенах – декоративные финиши с фактурой песчаных дюн.
Помещения квартиры служат галерейным пространством для морских артефактов, привезенных со всех концов земного шара. Это требование оказало влияние на расстановку и выбор мебели. Появились встроенные, открытые стеллажи, большая библиотека с альбомами о путешествиях, протяженные консоли. Подвесной комод, Capo D’Opera.
Светлую цветовую гамму, изначально заданную заказчиками, архитекторы обыграли как морскую стихию и включили в нее палитру морского побережья и цвета мирового океана.
Деталь интерьера гостиной морской квартиры. Панно из керамики привезены из Бельгии.
Интерьер спальни с морской тематикой. Кровать, Meridiani. Комод, Alivar. Торшер и настольная лампа из дерева, LZF Lamps. Картина за изголовьем кровати работы художницы Еврении Буравлевой.
Однозначным требованием в декоре ванной комнаты стала замена привычного напольного покрытия в виде плитки или камня на дерево. Пол выстлан термообработанной доской из ясеня.
Интерьер ванной комнаты в теплых песчаных тонах. На подвесном подстолье – круглые раковины от Scarabeo. Смесители, Antonio Lupi.
Кабинет-пространство для занятия творчеством. Стол для творчества и выкатная тумба, MDF Italia. Кресло, Cattelan Italia. Напольное покрытие, массивная доска, термообработанный ясень. Встроенный шкаф из шпона с фактурой дерева, которое долгое время находилось под воздействием морской воды, солнца и песка.
Стены и пол гостевого санузла объединены единым оформлением плитами из светлого мрамора красивым дымчатым рисунком. Сантехника, Keramag.
План 3-х комнатной квартиры 133, 3 кв. м с общей гостиной-кухней-столовой.
Концепция
Апартаменты в высотном комплексе «Триумф Палас» основатели бюро Faber Group архитекторы Елена Франчян и Борис Матвеев создали для супружеской пары, влюбленной в жизнь, путешествия и морскую стихию. Наполненная воздухом и чистыми голубыми и песочными оттенками квартира – не первый проект архитекторов и заказчиков: они познакомились на проекте большого офиса компании, которой руководит хозяин этой квартиры.
Расположение квартиры в самой знаковой современной столичной высотке, высокий этаж с прекрасной перспективой, панорамное остекление вдохновили авторов проекта на создание светлого и воздушного пространства. Воздушная атмосфера подчеркнута с помощью разнообразных средств архитектуры и дизайна, главное из которых – единое стилистическое и колористическое решение для всех помещений апартаментов.
Планировка
Центральную часть квартиры площадью 133 кв. м занимает гостиная, объединенная с кухней и столовой. Зона отдыха с телевизионной группой отделена небольшим простенком, обыгранном в общей стилистике квартиры. Спальня, гардеробная и ванная комната со своим холлом находятся в глубине пространства, попасть в них можно непосредственно из общей зоны.
Четкое деление на приватную и общественную зоны при общей стилистике и колористике позволили создать функциональное жилое пространство с цельным законченным образом. Согласно пожеланиям заказчиков, все помещения этой квартиры служат в некотором роде галерейным пространством для морских артефактов, привезенных со всех концов земного шара. Это требование оказало влияние на расстановку и выбор мебели. Появились встроенные, открытые стеллажи, большая библиотека с альбомами о путешествиях, протяженные консоли.
Декор
Светлую цветовую гамму, изначально заданную заказчиками, архитекторы обыграли как морскую стихию и включили в нее палитру морского побережья и вод мирового океана. Образ интерьера строится на сочетании натурального дерева и светлого мрамора, которое поддерживают декоративные финиши с фактурой песчаных дюн.
Украшение интерьера – изделия из дерева с уникальной фактурой: для створок всех встраиваемых шкафов и поверхностей настенных панелей был выбран единый цвет и фактура шпона. Его текстура напоминает текстуру дерева, которое долгое время находилось под воздействием морской воды, солнца и песка. С помощью этого приема архитекторы смогли завуалировать все встраиваемые шкафы и таким образом минимизировать количество предметов мебели.
Комплектация объекта
Строительные и отделочные материалы и изделия
Финишная отделка стен, «Студия Марата Ка»
Пол, массивная доска, термообработанный ясень
Мрамор Callicata Gold, Calacatta Oro
Свет Hind Rabii, Astro, Cattelan Italia, LZF Lamps, Maretti, поставщик On/Off
Текстиль Pierre Frey, Libeco Home, Dedar
Пледы Avec, поставщик Stylish Nest
Ковры Fimes
Панно из керамики поставщик галерея Jeanne Opgenhaffen
Вазы, блюда из муранского стекла, предметы декора, поставщик Stylish Nest
Сантехника раковины Scarabeo, смесители Antonio Lupi, унитазы Keramag (Geberit Group), поставщик «Галерея дизайна и интерьера Neuhaus»
Мебель
Прихожая банкетка Alivar
Гостиная диван Ivano Redaelli, журнальный стол La Falegnami, кресло CTS Salotti (модель Cocoon), комод Capo D’Opera
Столовая обеденный стол Cattelan Italia, стулья Poltrona Frau, подвесной комод Capo D’Opera
Кухня Beckermann, поставщик «Галерея дизайна и интерьера Neuhaus»
Кабинет рабочий стол Cattelan Italia, стол для творчества и выкатная тумба MDF Italia, приставной стол Pianca, кресла Marac, Cattelan Italia, стеллаж Capo D’Opera
Спальня кровать Meridiani, комод Alivar
Вся мебель – поставщик Italian Design
Оборудование
Система вентиляции и кондиционирования Daikin
Электроустановочные изделия Lutron
Видеотехника Panasonic
客服
消息
收藏
下载
最近

















