查看完整案例

收藏

下载
Restructuration de la bibliothèque universitaire de Sciences Université Lyon 1
Campus de la Doua, 20 avenue Gaston Berger, 69100
Villeurbanne
Beton
Equipement universitaire
Extension de batiment
Rehabilitation
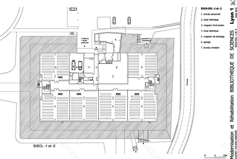
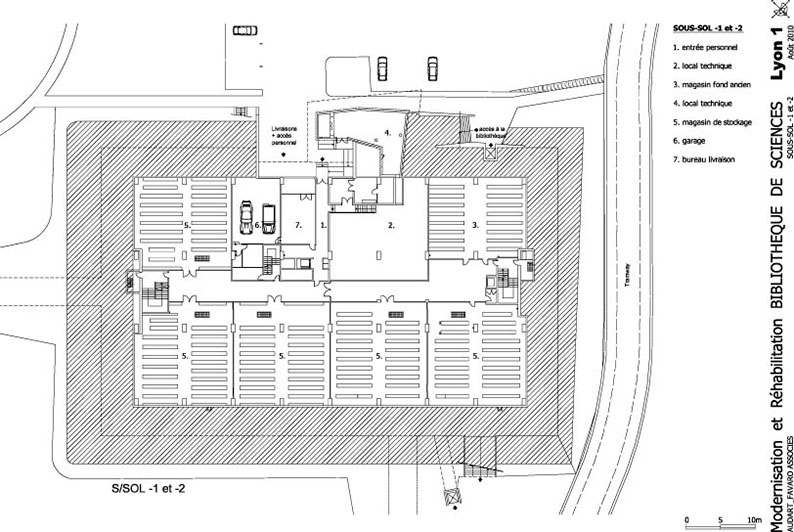
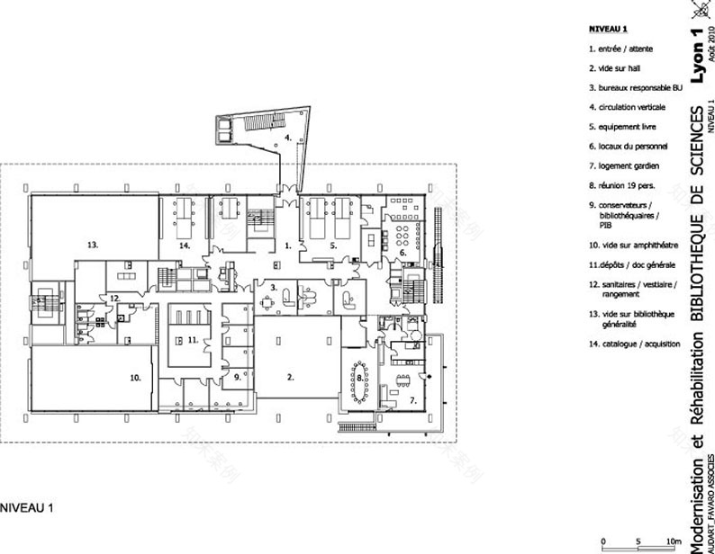
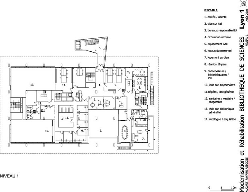
La bibliothèque de la Doua constitue le pivot du plan-masse de ce vaste ensemble universitaire conçu au début des années 1960 par le Grand prix de Rome Jacques Perrin-Fayolle. Elle structure la composition du mail principal en définissant une centralité à l’échelle du campus. Le bâtiment existant construit en 1964 a été totalement mis à nu pour une rénovation de grande ampleur. Ce projet de réhabilitation a pour objectif de donner à l’Université Lyon 1 un lieu répondant à la fois aux fonctionnalités et à l’usage d’une bibliothèque contemporaine. La fonctionnalité nouvelle a été apportée par la démolition de l’escalier principal et la création d’une tour de circulation extérieure incorporant ascenseur et escalier. La spécificité technique du bâtiment, la postcontrainte des planchers a été révélée par la phase diagnostic confiée à la maîtrise d’œuvre. Cette spécificité a guidé la conception de l’ensemble du projet, notamment des lots techniques. Le concept d’aménagement propose de développer une image forte en créant une ambiance de bibliothèque accueillante, avec des espaces diversifiés et typés et des lieux de vie multiples pour les étudiants. La démarche de l’agence, poussant à la cohérence globale du projet, a été favorisée par la confiance des utilisateurs et du maître d’ouvrage qui lui ont confié le dessin du mobilier spécifique (banques d’accueil, tables) ainsi que de la signalétique.
Programme
Réhabilitation et modernisation de la bibliothèque universitaire de Sciences de l’université Lyon 1 : création de grandes salles de lecture et d’une tour de circulation.
Concepteur(s)
AFAA Architecture
AUDART Philippe - architecte
FAVARO Marc - architecte
Maître(s) d'ouvrage(s)
Université Claude Bernard Lyon 1
Types de réalisation
Equipement scolaire / universitaire
Année de réalisation
2009
Surface(s)
11 664 m² (SHON) dont 10 607 m² (Réhabilitation) et 1057m² (extension)
Coûts
8 000 000 € HT
Crédit photos
Didier Boy de la Tour
Liens page web
客服
消息
收藏
下载
最近












