查看完整案例

收藏

下载
Modulart
Projets
Habitation
La halle comme principe constructif
La halle comme principe constructif
Habitation
«Wohnregal»
FAR frohn&rojas ont réalisé un immeuble résidentiel à Berlin sur le modèle des halles industrielles. Cela a rendu la construction bon marché, flexible et rapide. Si vous pensez que c’est cheap et tristounet, vous vous trompez. Le «Wohnregal» (étagère à habiter) a même fini sur la shortlist du Prix «Mies van der Rohe» 2022.
Si on devait un jour utiliser le bâtiment autrement, la question serait vite réglée. Il suffirait de tout sortir des étagères et de les remplis autrement.
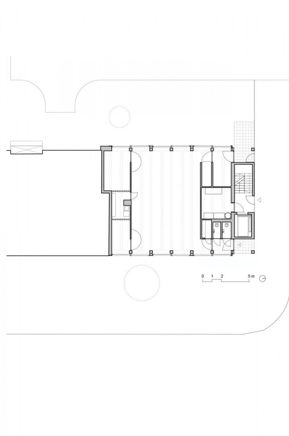
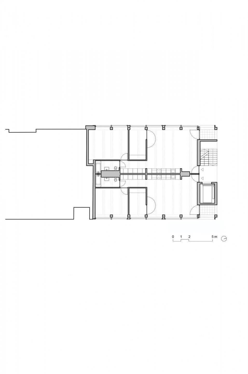
Längschnitt, Querschnitt, Grundriss EG, Grundriss 3. OG
Pläne: FAR
Au beau milieu d’un vieux quartier de Berlin truffé de shops 24/7, de jardins d’enfants, de kebabs et autres boutiques de manucures, on tombe dans un coin sur le «Wohnregal». Il bouche une dent creuse, vieux souvenir de la deuxième Guerre Mondiale. Et même si cela ne saute pas aux yeux, cet immeuble avec sa façade de verre en rideau et ses cages d’escalier extérieures devrait plutôt se trouver dans une zone industrielle que dans un centre-ville. Car il a été construit comme une halle industrielle. «La construction de halles implique une adaptabilité et une liberté maximale de l’espace intérieur», explique avec enthousiasme l’architecte Marc Frohn de FAR. «Parce que les surfaces sont couvertes de façade à façade sans piliers.» Un must pour les espaces intérieurs industriels. Mais non sans avantages pour la construction de logements. Qui plus est, construire avec des plans libres s’avère bon marché, rapide, éprouvé depuis des décennies, et offre une infrastructure fonctionnelle. C’est pour cela que FAR tenait à reproduire le concept dans la construction de logements: «Nous voulions nous ouvrir à cet univers-là.»
Expression industrielle volontairement lisible
Les architectes ont visité des usines où sont fabriqués des éléments de construction pour des halles industrielles, et ont découvert des tables de coffrage de cent mètres de long. On devrait sûrement pouvoir moduler la chose, non? Puis ils ont imaginé une halle comme un étage et les ont superposées en hauteur; étudié limites et marges de manoeuvre. Qu’est-il possible de produire facilement, où est-ce que cela se complique? Réflexions, plans et autres calculs ont finalement abouti à un modèle 3D et une commande. Le puzzle de piliers, de poutres et de planchers en poutrelles double T – tout en béton armé – n’avait plus qu’à être assemblé sur site, ce qui a duré une semaine par étage et a considérablement préservé les nerfs des voisins, car on n’entendait guère plus que le bruissement de la grue à l’oeuvre.
Quand on se trouve à l’intérieur du Wohnregal, on reconnaît bien son origine industrielle – et c’est parfaitement voulu. Les jointures entre les éléments préfabriqués en béton sont apparentes, ce qui est tout à fait tolérable dans un bâtiment industriel. Les surfaces sont inégales et leurs arrêtes sont émoussées. Tout cela aurait pu être affiné, mais cela aurait éloigné le Wohnregal de son caractère de halle industrielle. Et tout aurait été plus cher.
FAR voulait démontrer que la construction sérielle ne devait pas forcément se limiter à des plans répétitifs; qu’il était tout à fait possible de réunir sous un même toit habitat et travail, tels que nous les pratiquons aujourd’hui. L’élément sériel devait pour cela faire partie intégrante de la structure porteuses, sans porter atteinte à l’espace intérieur. Chaque étage a simplement été compartimenté par des murs préfabriqués. Si on devait un jour utiliser le bâtiment autrement, la question serait vite réglée. Il suffirait de tout sortir des étagères et de les remplis autrement. «La sérialité signifie que l’on pense aussi à la répétition ou au développement», dit Frohn. Et de fait, FAR s’est déjà lancé dans un projet bien plus grand, loin du centre-ville, dans un quartier de Berlin où la construction modulaire souffre encore des mauvais souvenirs des lotissements monotones des constructions modulaires avec les fameuses dalles en béton des années de l’ex-RDA. «Nous retrouvons-là nos ancêtres de la sérialité», soupire l’architecte de 46 ans, qui se réjouit d’apporter la preuve que la construction sérielle peut se libérer du passé et n’a rien de réducteur.
Réflexions, plans et autres calculs ont finalement abouti à un modèle 3D et une commande. Le puzzle de piliers, de poutres et de planchers en poutrelles double T – tout en béton armé – n’avait plus qu’à être assemblé sur site, ce qui a duré une semaine par étage et a considérablement préservé les nerfs des voisins, car on n’entendait guère plus que le bruissement de la grue à l’oeuvre.
FAR frohn&rojas ont réalisé un immeuble résidentiel à Berlin sur le modèle des halles industrielles. Cela a rendu la construction bon marché, flexible et rapide.
Quand on se trouve à l’intérieur du Wohnregal, on reconnaît bien son origine industrielle – et c’est parfaitement voulu. Les jointures entre les éléments préfabriqués en béton sont apparentes, ce qui est tout à fait tolérable dans un bâtiment industriel.
Données du proejt
Immeuble résidentiel «Wohnregal», Berlin, 2019
Maître d’ouvrage
: Marc Frohn, Berlin
Architecture
: FAR, Berlin
Type de mandat
: Mandat direct
Ingénieur civil
: IB Paasche, Leipzig
Coûts de construction
: 1500 EUR net / m2 SBP (CFC2 et 3)
客服
消息
收藏
下载
最近




















