查看完整案例

收藏

下载
南头古城改造升级——“城市记忆展厅” / 万社设计
在有限的围合空间中营造无限之域。
南头古城-见证城市千年历史
传承千年文脉,重拾城市记忆,是南头古城街区改造升级项目的动心起念。万社设计Various Associates作为
深圳
本土新锐设计工作室,受邀参与此次由万科主导的古城改造集群设计,在项目先行示范段的南北街核心区,完成了一栋兼具复合功能和公共属性的“城市记忆展厅”。
40年速度,千年深度
南头古城,坐落于深圳南山区中心区域,见证着这座特区城市弹指40年间从“小渔村”跃升为国际大都会。但它沧桑悠远的另一面却少为人知。南头古城自晋朝以来已有近1700年历史,曾经是岭南沿海的行政中心和海防要塞,更是南越文化与中原文化相融的一个缩影。
城市化的时代背景之下,千年古城如今演变成“都市里的村庄”,承载着城市新移民的安身立命之地。城中村像一个矛盾体,看似无序又充满生命力,万社设计尊重场地现状,同时追溯文化源头,以适应性更新策略为之赋予新的内容。
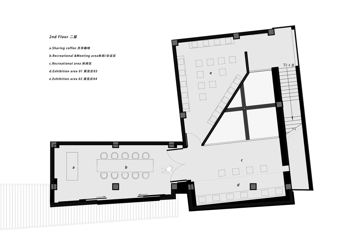
当万社以设计介入时,原建筑体结构已完成,主体由三个不规则的历史建筑方块体连接而成,梁柱多且不规整。因时间及安全性的问题,设计方案不可更改原结构中楼梯及梁的位置。建筑体作为“综合服务中心”,是一处展示南头古城改造变化的信息地。在250平米的面积内需满足接待区、寄存处、监控区、办公室、洗手间、会议室、共享咖啡以及展览区域。
万社在极有限的条件下,首先考虑的是如何“破局”——打破现有单一的游览动线及空间限制,拉动上下人流贯通,展示空间自身个性的同时保持内敛现代的中式空间调性。
一墙之内,游廊浮梦
设计灵感源自岭南建筑及园林中的游廊,通过连接两个或多个独立建筑物的曲折回环的轴线式布局,在有限的围合空间中营造无限之域;也是游人停留、休憩、观赏的空间。与此场地承载的功能如出一辙。
首先的措施是在固有的平面植入了一面通高的斜墙,通过斜墙创造出独特的空间感,并且以斜墙开启了一个三角的通高中庭,拉动上下两层的空间关系及形成趣味性的观展动线。
中庭正中间保留了原始的结构梁,予以炭化木自身独有的自然粗旷与天花的理性排列的木纹格子结合,以一种中式且现代的空间力量及仪式感形成空间结构特色。
叠造共生,融入街区
对材料和颜色运用素来“大胆”的万社设计,在本案中选择了更精微而中和的处理方式,粗犷的材质与低度的用色从外立面延续到混凝土结构内部。
空间内主要使用了灰砖及木头-两种中式建筑的标志性材料。以不同的组合、及质感碰撞展示自身在传统及现代中的变换。青砖、柚木、炭化木,这些材料的自然纹理隐现时间的印记,与场地散布着的古城墙无声对话。
银箔这种传统材料并未直接的大面积使用在空间内,而是与木饰面作贴合成为带有木纹肌理进化版“银箔”,中和了炭黑色木及天花矩形阵列设计语言下的肃穆、及理智。使整个空间质感更加的柔和且温暖。
除了运用游廊整个概念的自身动线特色外,游廊还讲究景观与自然天光贯通,形成天然的展示空间。以天井光来揭示空间的层次,从而达到传统岭南园景中的开敞,层次变化丰富的空间效果,将传统意蕴,来当代表达。正如空间中的景观-“展览”与天花光影共存,而使空间的空间体验感具备更多的层次感。
客行流线循廊推进,随空间上下关系而起伏,狭长的通道使视野受到压缩,留有格窗透光,虚实结合。挑空区如柳暗花明,形成先抑后扬的空间对比,丰富了体验的层次与趣味。
曲折回环的动线与独特的三角银箔空间、木纹格窗透光天花形成独特的空间符号
透亮干净的玻璃砖的立面材料隐约的透射着外面的色彩,理性的十字结构框架语言使空间语言趋向统一。
共享咖啡、展览区、休闲区、会议室,各个功能有序整合在两层空间中,联以回廊走道。矩阵式的空间序列穿插组合,木格栅天窗回应天井形制,交叉咬合的十字体块与斜切的片墙以不对称布置打破整体基调的克制,犹如这一村城混搭产物自由延展的街巷生态。
以结构的干涉语言,在有限的场地条件下引导及丰富场内人流动线;以材料及细节设计给予项目自身的特性;万社一如既往的关怀项目背后的人文及需求。南头古城此次的改造,在万社看来,意为结合当代的文化,激活社区的活跃度,将千年历史的地区文化符号化为大众所能接受并喜爱的进阶性的地标。以设计手法更新传统材料予人的“年代感”“单一感”是此次设计的重点之一。万社始终推崇推陈出新,传统韵味当代表达。
△ 一层平面图
△ 二层平面图
项目信息
委托方:万科城市研究院
地址:深圳南头古城
状态:完成于2020.08
设计团队:万社设计
项目负责人:林倩怡
设计团队:杨东子 李诗琪 李泽兵 林志超 邓寓文
摄影师:郑航天
感谢以下团队
总顾问:万科城市研究院、万路
策展:CABLE
展陈设计:梓集
视觉设计:United Design Lab
多媒体:iPattern
建筑设计:深圳市博万建筑设计事务所
客服
消息
收藏
下载
最近














































