查看完整案例

收藏

下载
House Plan: DFD-1941
SQ FT 3,712
BEDS 4
BATHS 3.5
STORIES 2
CARS 3
1st Floor Plan
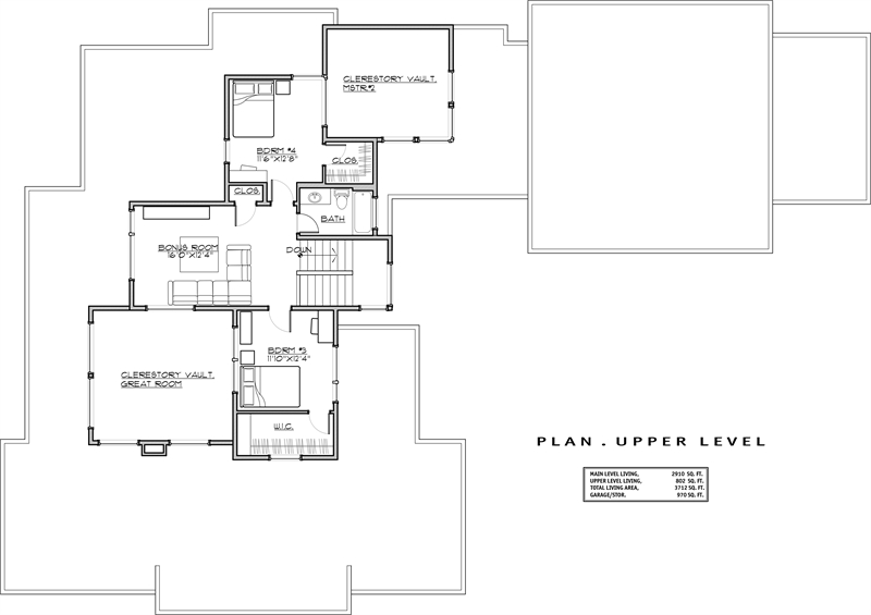
2nd Floor Plan
About House Plan 1941:
This contemporary two-story home may be the perfect design for your family. Plenty of glass gives you natural light and pleasant vistas. The home’s 3,712 sq. ft. make it seem spacious and comfortable. In the central great room, a vaulted ceiling draws the eye upward. The wide-open kitchen incorporates island snack space for three. The larger master suite is designed for luxurious relaxation. The adjacent den would make a great home office. The smaller suite would be suitable for a long-term guest or relative. The children can unwind in their own loft area on the upper floor.
House Plan Pricing
STEP 1
Select Your Package
PDF
$1995
PDF Bid Set
Home plans stamped "NOT FOR CONSTRUCTION" for cost estimating and bidding purposes only; a minimum 5 set plan package must be purchased within 90 days for a license to build plan set; a credit will be applied towards your house plan upgrade
PDF Bid Set
$1,095
Immediate Delivery!
Digital set of plans for bidding purposes only
PDF Single Build
Digital plans emailed to you in PDF format that allows for printing copies and sharing electronically with contractors, subs, decorators, and more. This package includes a license to build the home one time.
PDF Single Build
$1,995
Immediate Delivery!
Most recommended package
5 Printed Sets
Five Printed Sets of Residential Construction Drawings are typically 24” x 36” documents and come with a license to construct a single residence shipped to a physical address. Keep in mind PDF Plan Packages are our most popular choice which allows you to print as many copies as you need and to electronically send files to your builder, subcontractors, etc.
5 Printed Sets
$2,095
Five printed sets of house plans
8 Printed Sets
Eight Printed Sets of Construction Drawings, typically 24” x 36” documents, with a license to construct a single residence shipped to your physical address. PDF Plan Packages are our most popular choice which allows you to print as many copies as you need and to electronically send files to your builder, subcontractors, bank/mortgage reps, material stores, decorators and more.
8 Printed Sets
$2,195
Eight printed sets of house plans
CAD Single Build
2D electronic computer files, completely editable, for design professional use, when making extensive modifications or in the event engineering is required in the area where you are building.
CAD Single Build
$2,795
2D electronic editable computer files
STEP 2
Need To Reverse This Plan?
STEP 2
Need To Reverse This Plan?
Readable Reverse
Reverse house plans with readable text and dimensions
Readable Reverse
$150
Reverses house plans with readable text and dimensions
STEP 3
CHOOSE YOUR FOUNDATION
STEP 3
CHOOSE YOUR FOUNDATION
STEP 4
OPTIONAL ADD-ONS
STEP 4
OPTIONAL ADD-ONS
Subtotal
$1995
FREE SHIPPING
Detailed Plan Packages & Pricing
Our Structural Detail & IRC Guarantee
Architect’s Preferred Home Products
Plan Details
See All Details
Finished Square Footage
2,910 Sq. Ft.
Main Level: 802 Sq. Ft.
Upper Level: 3,712 Sq. Ft.
Total:
Room Details
Bedrooms: 4
Full Baths: 3
Half Baths: 1
General House Information
Number of Stories: 2
Width: 73’ 6"
Depth: 104’ 0"
Dwelling Number: Single
Unfinished Square Footage
970 Sq. Ft.
Garage:
GARAGE
Garage Location: Side
Garage Size: 3
Exterior Style
Contemporary
Mid-Century Modern
Modern
Collections
Builders
Luxury
Open Floor Plan
Outdoor Living
PDFs Fast!
Split Bedroom
Vacation
Foundation
Crawl Space
Framing Information
Roof Framing: Combination
Exterior Wall Framing: 2x6
Roof Load
Live: 25
Dead: 30
Wind: 85
Insulation (R)
Exterior Wall: 21
Interior Wall: 0
Ceiling: 38
Floor: 25
House And Ceiling Heights
First Floor Ceiling: 10
Second Floor Ceiling: 11.5
Maximum House Height: 24’ 0"
Key Features
2 Primary Suites
Attached
Bonus Room
Covered Front Porch
Covered Rear Porch
Crawlspace
Daylight Basement
Double Vanity Sink
Exercise Room
Fireplace
Great Room
Guest Suite
Home Office
Kitchen Island
Laundry 1st Fl
Library/Media Rm
Loft / Balcony
Primary Bdrm Main Floor
Mud Room
Open Floor Plan
Peninsula / Eating Bar
Rec Room
Separate Tub and Shower
Side-entry
Suited for corner lot
Suited for view lot
Vaulted Ceilings
Walk-in Closet
Workshop
House Plan: 1941
This contemporary two-story home may be the perfect design for your family. Plenty of glass gives you natural light and pleasant vistas. The home’s 3,712 sq. ft. make it seem spacious and comfortable. In the central great room, a vaulted ceiling draws the eye upward. The wide-open kitchen incorporates island snack space for three. The larger master suite is designed for luxurious relaxation. The adjacent den would make a great home office. The smaller suite would be suitable for a long-term guest or relative. The children can unwind in their own loft area on the upper floor.
客服
消息
收藏
下载
最近



































