查看完整案例

收藏

下载
Cody Campbell
Los Angeles, CA
Superphase
NOTE: This work was completed as part of a team during an internship at Adrian Smith and Gordon Gill Architecture in Chicago, Illinois in 2008
Team members:
Cody Campbell l Smith+Gill
Dennis Rehill (Senior project manager) Smith+Gill
Miguel Alvarez l Smith+Gill
Michael Waldo l Smith+Gill
William Doran l Smith+Gill
Location: Dubai, United Emirates
Project Description:
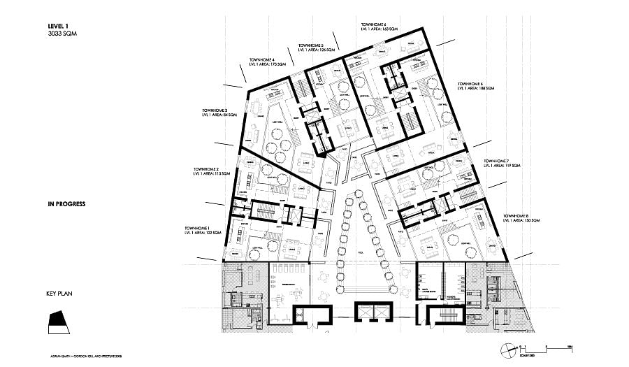
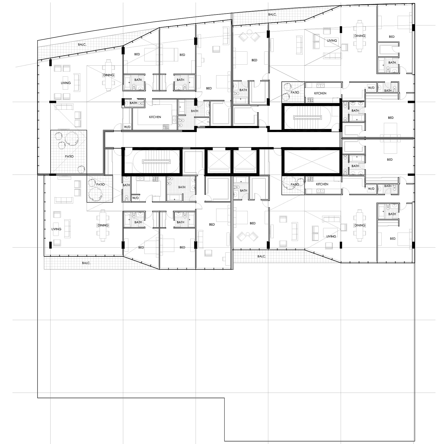
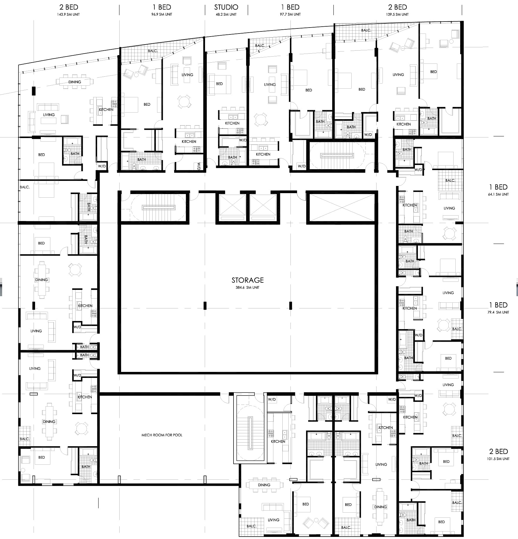
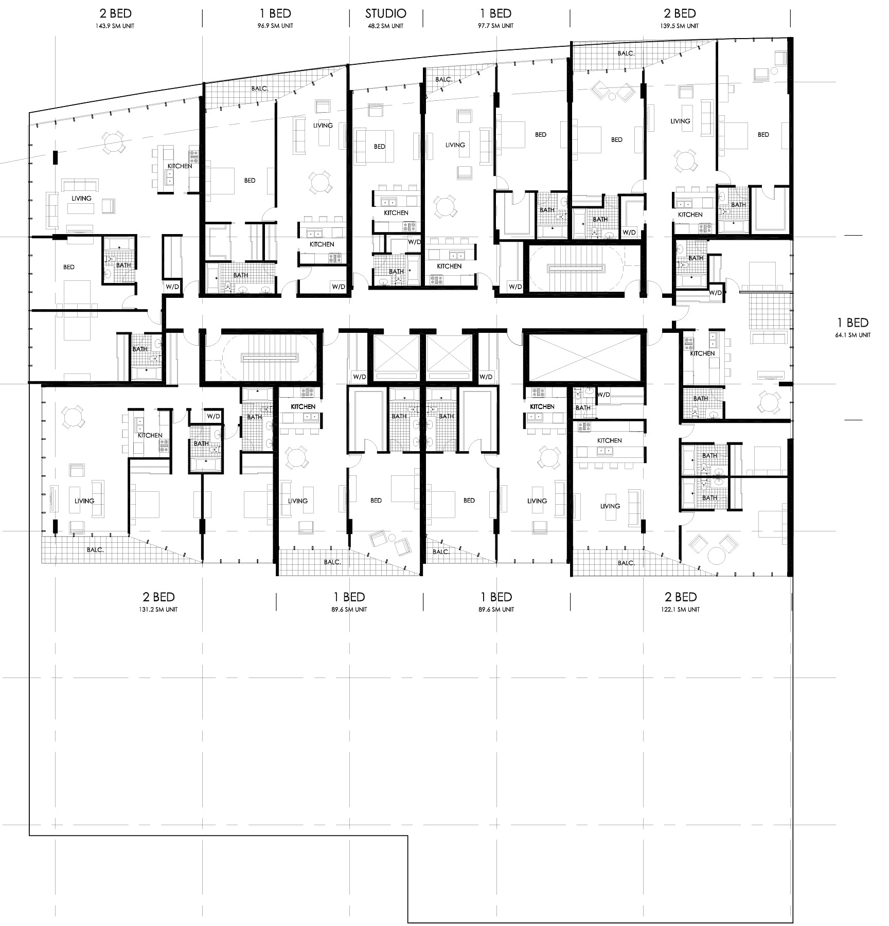
SuperPhase consists of three residential complexes that lie at the foot of the world's next tallest building located in the heart of Dubai. The three structure combine to provide 542 different types of residential units that include studios, one, two, and three bedrooms. The three structure are connected at the base by an elevated green space which provides covered parking for the residents and focuses the complex toward Atrium City Tower.
Status:
Competition Entry
Location:
Dubai, AE
My Role:
SUPERPHASE | consisted of three residential complexes that lie at the foot of the world's next tallest building located in the heart of Dubai. The three structures combined to provide 542 different types of residential units that include studios, one, two
Additional Credits:
This work was completed as part of a team during an internship at Adrian Smith and Gordon Gill Architecture in Chicago, Illinois in 2008
Team members:
Cody Campbell l Smith+Gill
Dennis Rehill (Senior project manager) Smith+Gill
Miguel Alvarez l Smith+Gill
Michael Waldo l Smith+Gill
William Doran l Smith+Gill
Location: Dubai, United Emirates
客服
消息
收藏
下载
最近




















