查看完整案例

收藏

下载
Необычный дизайн дома от студии MAKE, Сент-Килд, пригород Мельбурна, Виктория, Австралия
В этой статье читатели узнают об особенностях дизайна частного дома, разработанного студией MAKE.
На расширение калифорнийского бунгало в Сент-Килд дизайнеров вдохновили размышления о том, как эта семья живёт и взаимодействует с обществом.
Место было задумано скорее как любимое местное кафе, чем как частный дом, отразив желание этой семьи создать пространство, которое позволит им общаться с друзьями и многочисленными родственниками.
Дом выполнен с использованием природных материалов таких как бетон, кирпич, дерево и стекло.
Оригинальное дизайнерское решение получил фронтон дома, выполненный из дерева.
Бетон использовался, чтобы создать прочную основу дома и обеспечить устойчивость легких конструкций мансардного этажа. Также его использовали внутри помещений первого этажа для создания сидений, скамеек и других долговечных поверхностей.
Снаружи бетонные стены имеют фактуру необработанной деревянной доски, для её создания были использованы доски от разобранного забора.
Внутри помещений бетонные стены гладкие. Внутренние перегородки выполнены из кирпича без отделки.
Дом очень просторный, как и задумывалось: чтобы вмещать большое количество гостей.
В помещения первого этажа поступает много дневного света за счет больших окон и стеклянных дверей.
Для оформления дизайна столовой использовались те же материалы что и для самого дома.
В столовой расположен двусторонний камин, который выходит как в столовую так и на террасу. Что располагает к тёплой беседе в любую погоду.
Кухня выполнена в тёмном цвете. Одна стена отведена под записи, это отвечает общей концепции и придаёт кухне большое сходство с кафе.
На мансардный этаж ведет лестница с оригинальной конструкцией. Вдоль лестницы располагаются книжные полки. Яркие обложки книг вносят оживление в строгие цвета гостиной.
В помещении мансардного этажа расположена спальня. Стены спальни выполнены из стекла и дерева. Деревянный фронтон разработан не только с декоративными целями, он обеспечивает затенение от дневного солнца и ограничивает вид с улицы, при этом сохраняя прекрасный обзор изнутри.
Ванная обставлена очень лаконично, здесь, как и в остальных помещениях, преобладает серый цвет. Более тёплым помещение смотрится благодаря деревянной мебели и желтой отделке стены.
На всю длину мансардного этажа располагаются гардеробная и полки для обуви и аксессуаров.
Вдоль дома устроена терраса, где у камина можно разместиться большой компании.
Места для отдыха разработаны таким образом, что везде есть сиденья или скамейки, на которых можно удобно расположиться.
Роль постройки возле дома так же была пересмотрена. Теперь в ней расположились вход с улицы во двор дома, навес для автомобиля и закрытая веранда.
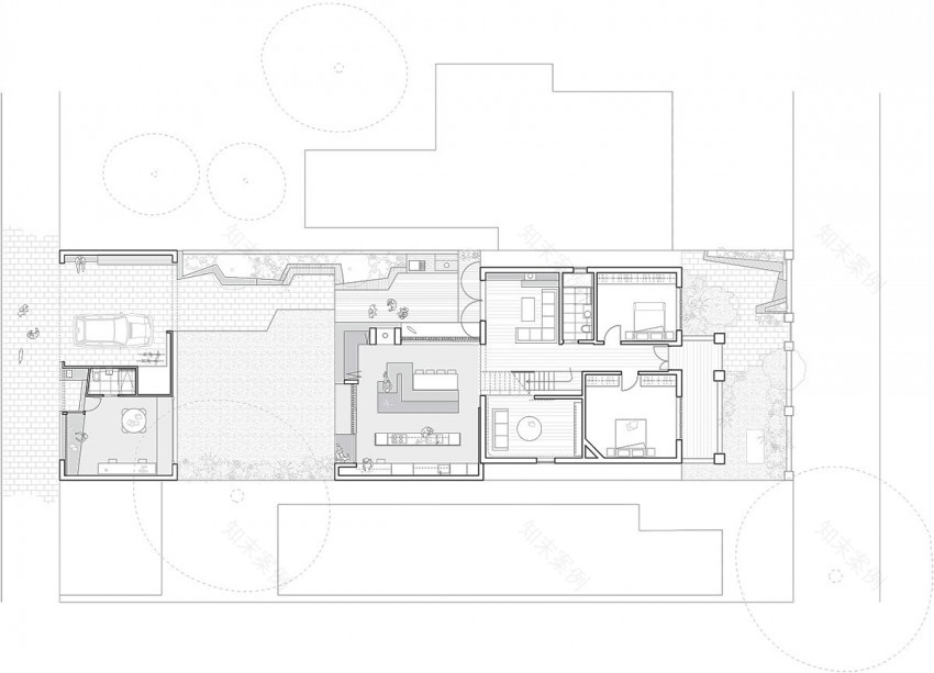
План первого этажа.
План мансардного этажа.
Главный фасад
Разрез вдоль главного фасада
Разрез в поперечном направлении относительно главного фасада
План переустройства дома и участка
После проделанной работы дом и территория вокруг него смотрятся свежо и оригинально.
客服
消息
收藏
下载
最近

























