查看完整案例

收藏

下载
Planirani poslovni objekat na Novom Beogradu; Vizuelizacija: Marnik Dunav osiguranje planira izgradnju poslovne devetospratnice u Jurija Gagarina
Stevan Gojkov, 27.02.2025.
Pored devet etaža poslovanja, čija ukupna korisna neto površina iznosi 9.934 m², na tri podrumska nivoa projektovana je garaža sa ukupno 166 parking mesta.
Grad Beograd oglasio je ove sedmice javnu prezentaciju urbanističkog projekta za izgradnju poslovne devetospratnice investitora Dunav osiguranje, koju ovo akcionarsko društvo planira na uglu Jurija Gagarina i Nehruove na Novom Beogradu.
Nosilac izrade UP-a je beogradsko preduzeće Yugo Biro, dok idejno rešenje potpisuje Marnik arhitektura, takođe iz Beograda. Odgovorni projektant arhitekture je Nikola Naletina, dia, a odgovorni urbanista Ljubomir Bošković, dia.
Lokacija budućeg objekta na Novom Beogradu; Foto: Google Earth
Projektovano je devet etaža poslovanja, čija ukupna korisna neto površina iznosi 9.934 kvadrata.
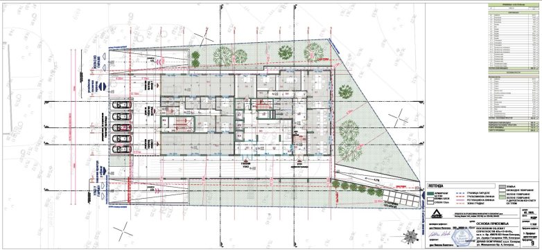
Predmetni objekat se nalazi na KP 4907/8 u ulici Jurija Gagarina 165 na Novom Beogradu. Na parceli površine 2.508 m² nalazi se postojeći objekat koji je predviđen za rušenje.
Objekat bruto površine od 18.036 m² je projektovan kao poslovni, spratnosti 4Po+P+8+Ps. Projektovano je 9 etaža poslovanja, čija ukupna korisna neto površina iznosi 9.934 m². Nadzemne etaže objekta su projektovane sa spratnom visinom 3,14 m (1. sprat) i 3,17 m (ostali spratovi), dok je u prizemlju spratna visina veća i iznosi 5,20 m.
Parcela je u padu, od zadnje granice parcele ka ulici; Vizuelizacija: Marnik
Garaža sa 166 parking mesta
Projektovana je garaža na tri podzemne etaže sa ukupno 166 parking mesta, kojima se pristupa dvema rampama. Na nivou podruma -1 se formiraju tehničke prostorije, dok je naprizemlju glavni ulazni hol za pristup spratovima s poslovanjem, zatim ulaz u administraciju sa šalter salom i drugim administrativnim službama.
Na prvom, drugom, trećem i četvrtom spratu formira se po 19 kancelarija, dok se od petog do povučenog sprata formiraju po dve direktorske kancelarije, sale za sastanke kao i po jedan veliki „open space“.
Spratna visina u prizemlju iznosi 5,20 metara; Vizuelizacija: Marnik
Na javnom uvidu do 5. marta
Kao i uvek, podsećamo vas da zainteresovana lica mogu tokom javne prezentacije da izvrše uvid u urbanistički projekat, kao i da svoje primedbe i sugestije na planirana rešenja u pisanoj formi dostave na pisarnicu Sekretarijata za urbanizam i građevinske poslove, Kraljice Marije br. 1, najkasnije do 5. marta 2025. godine.
Šira situacija sa osnovom krova
Osnova podruma -4
Osnova prizemlja
Osnova 1. sprata
Osnova 4. sprata
Osnova povučenog sprata
Presek 1-1
Presek 2-2
客服
消息
收藏
下载
最近












