查看完整案例

收藏

下载
Pogledajte kako je fabrika cementa postala dom i studio za arhitektu
Nekadašnja cementara La Fabrica prošla je kroz raznovrsne adaptacije da bi na kraju postala dom i mesto za rad lokalnom arhitekti Ricardu Bofillu.
Fabrika cementa površine 3.100 kvadratnih metara izgrađena je kraj Barselone u periodu posle Prvog svetskog rata i tokom godina prošla je kroz brojne transformacije da bi tokom poslednjeg perioda bila poptuno napuštena. To je prouzrokovalo devastaciju objekta a vremenom je iz objekta počelo da raste zelenilo. Evo kako su sve te negativne strane ovog
industrijskog dvorca
pretvorene u adute.
Oronuli objekatm zarastao u gustu vegetaciju, potpuno je renoviran i izrastao je u industrijski dvorac po meri jednog arhitekte.
Obzirom da je kompleksnost nekadašnje fabrike, arhitekta
Ricardo Bofill
sproveo je nekoliko faza obnove kako bi došao do novog željenog izgleda objekta. Prva faza podrazumevala je
rušenje određenih konstruktivnih elemenata dinamitom
, kako bi se bi se omogućilo korišćenje određenih prostorija, kao i njihovo međusobno povezivanje.
Sledeći korak bio je
formiranje vegetacije
. Arhitekta je osmislio niz zelenih oaza u formi bašta, kako u spoljašnjem prostoru tako i u unutrašnjem prostoru, koje bi vremenom izbrisale granicu između prirode i izgrađenog, piše
Designboom
. Većina zelenila koje je izraslo tokom dugog niza godina zanemarivanja objekta, zadržano je i kultivisano.
Krajnja faza bilo je
organizovanje namena prostorija i i njihovo unutrašnje uređenje
. Tako je nastala i ova fascinantna kancelarija za sastanke sa silosom iznad glave.
Krajni rezultat je struktura u kojoj prvobitni industrijski izgled, vegetacija i dizajn imaju jednake uloge i nijedan element nema dominaciju nad drugim. Novi prostor
odaje počast prvobitnoj nameni objekta
ali u isto vreme unosi novi duh i daje novu vrednost celom kompleksu.
Tako je nastao novi dom i studio arhitekte na temeljima nekadašnjeg industrijskog dvorca.
Osnova kompleksa
Osnova glavnog dela objekta
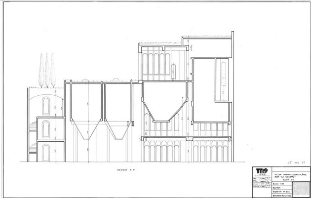
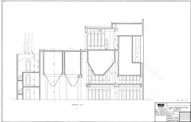
Presek kroz cementaru
Ricardo Bofill
客服
消息
收藏
下载
最近













