查看完整案例


收藏

下载
© Charles Davis Smith
查尔斯·戴维斯·史密斯
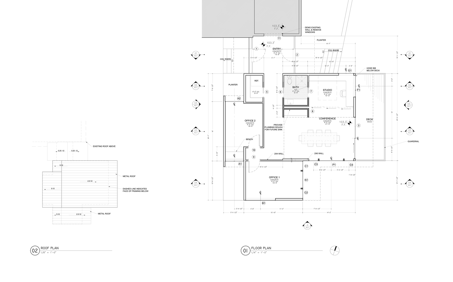
架构师提供的文本描述。尽管有数学逻辑,有时1=3。家庭办公室的增加不仅补充了现有的房子,平衡了充满活力的西奥斯汀地段,而且还创造了一个新的框架门户,通往邻近的小溪和丰富的景观。作为一个灵活的工作和娱乐空间,新增的3至5名雇员,同时容纳聚会和聚会。
Text description provided by the architects. Despite mathematical logic, sometimes 1 + 1 = 3. The home office addition not only complements the existing house and balances the dynamic West Austin lot but also created a newly framed portal to an adjacent creek and a rich landscape beyond. As a flexible space for both working and entertaining, the addition is fit for three to five employees while accommodating gatherings and parties.
© Charles Davis Smith
查尔斯·戴维斯·史密斯
© Charles Davis Smith
查尔斯·戴维斯·史密斯
实心正面是由木材和灰泥,最小和微妙,但适合客户的隐私需要谁在金融部门工作。通过抵消前墙的木面板部分,办公室通过隐藏在街景下的侧窗从街道的立面处获取日光。一个玻璃入口连接了新的和现有的,提供了一个清晰的看法和直接访问独特的自然美景的网站。
The solid front facade is clad with wood and stucco, minimal and subtle yet tailored to the privacy needs of the clients who work in the financial sector. By offsetting the wood panel portion of the front wall, the office harvests daylight from the street elevation through side windows that are hidden from the street view. A glass entry connects the new to the existing, offering a clear view of and direct access to the unique natural beauty of the site.
© Charles Davis Smith
查尔斯·戴维斯·史密斯
与其坚实的正面不同,家庭办公室的后侧有大窗户、从地板到天花板的玻璃滑动门,还有一个露台,坐落在树冠间,可以俯瞰小溪。木天花板延伸开来,进一步加强了室内和室外的连接。除了两个单独的办公空间外,一堵可操作的墙在需要时将主空间隔开。新增加的屋顶符合现有房屋的现代传统,但在细节和材料配置方面有新的变化。
Unlike its solid front, the back side of the home office opens up to the outdoors with large windows, floor to ceiling glass sliding doors and a patio tucked between tree canopies overlooking the creek. Wood ceilings extend out, further strengthening the indoor and outdoor connection. In addition to the two individual office spaces, an operable wall divides the main space when needed. The roofline of the new addition has been kept true to the existing house's midcentury modern tradition, yet with a new twist in detailing and material appropriation.
© Charles Davis Smith
查尔斯·戴维斯·史密斯
Architects Matt Fajkus Architecture
Location Texas, United States
Architecture Design Team David Birt, Matt Fajkus
Project Year 2017
Photographs Charles Davis Smith
Category Offices Interiors
Manufacturers Loading...
客服
消息
收藏
下载
最近

















