查看完整案例

收藏

下载
Дизайн интерьера спальной комнаты
Дизайн интерьера спальной комнаты
natalya.buchneva
Стиль общее:
Современный
Количество комнат:
3
Тип проекта
Дизайн-проект дома
Место
Челябинск
Комнаты
3
Площадь
21 кв. м
Стиль
Современный
Цветовая гамма:
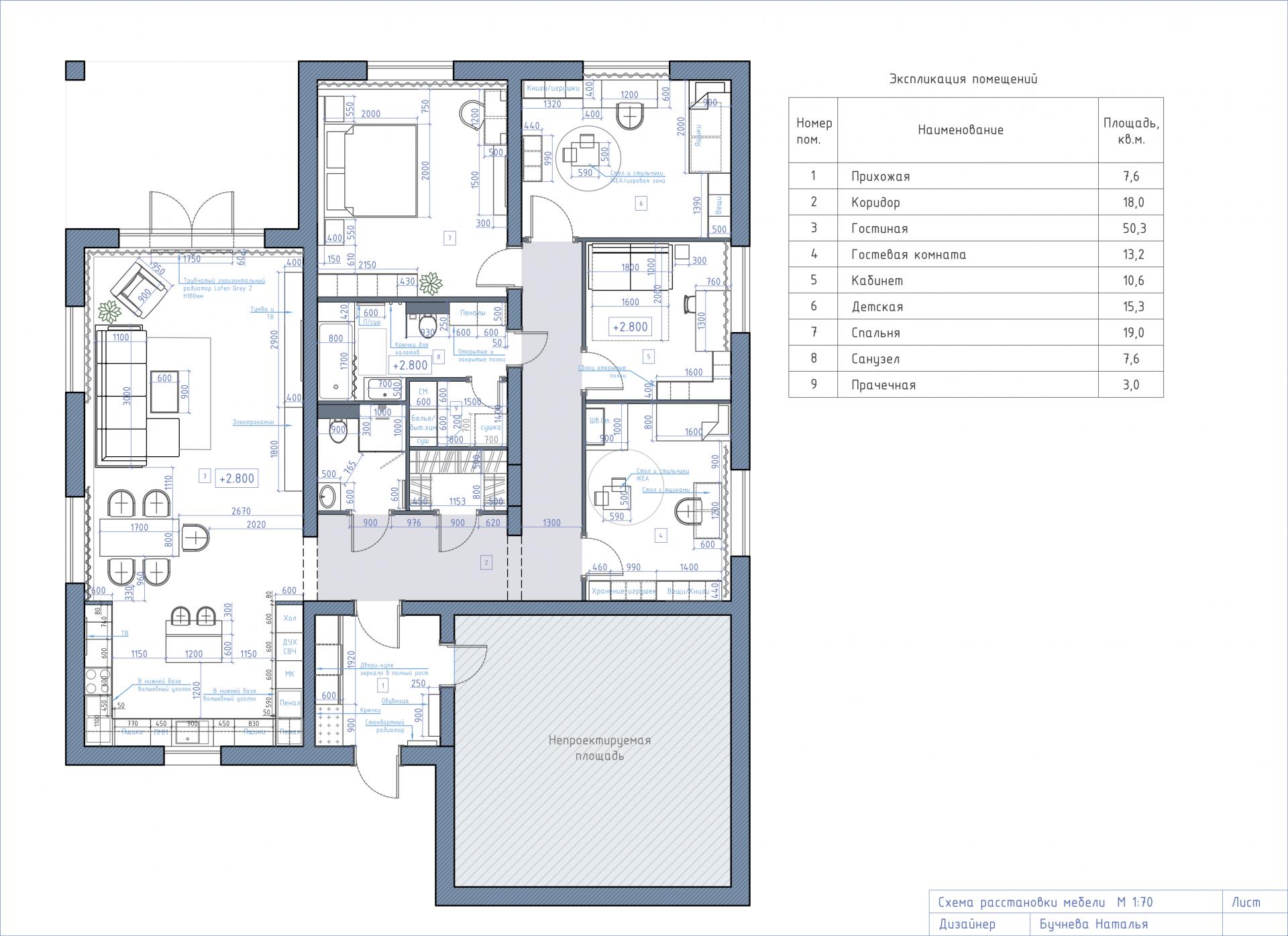
Планировка
natalya.buchneva
Настоящее имя:
Наталья Бучнева
Сайт:
+7 (908) 058-94-95
89080589495@mail.ru
Услуги:
Дизайн интерьера
Мы разрабатываем дизайн проекты от эскиза до воплощения!
В сфере дизайна интерьера, работая с жилыми и общественными интерьерами, мы предлагаем широкий спектр услуг: от профессиональной консультации, подборки мебели и отделочных материалов - до комплексного ведения ремонтно-строительных работ.
Дизайн-проектирование жилых и общественных помещений;
индивидуальное консультирование;
разработка концепции проектируемого интерьера;
зонирование, варианты планировочного решения ( 3д визуализация);
рабочая документация (все необходимые чертежи для строителей);
подбор мебельного оборудования, отделочных материалов и аксессуаров;
ремонтные работы под ключ;
авторский надзор за качеством выполняемых работ
Последний визит:
1 год назад
Все записи автора
客服
消息
收藏
下载
最近








