查看完整案例

收藏

下载
Projekat zajednički potpisuju firme Les Archinautes iz Francuske i 3AE iz Češke; Foto: Petr Polak
Vikendica od unakrsno lameliranog ariša na zelenom krovu Evrope
Kako bi se okolna šuma što više utkala u objekat konstrukcija je ostavljena izložena u unutrašnjosti i to tako da se na što bolji način uhvate poglede na okolni pejzaž.
Francuska firma Les Archinautes i studio iz Praga 3AE projektovali su drvenu vikendicu kraj jezera Lipno u Češkim Šumavama planinskom lancu na tromeđi Češke, Austrije i Nemačke.
Kuća od unakrsno lameliranog drveta (CLT) dizajnirana je sa idejom da obezbedi prijatan boravak za posetioce koji dolaze na skijanje ili planinarenje u oblasti koju nazivaju i „zelenim krovom Evrope“.
Fokus objekta je postavljen na dnevni i trpezarijski prostor u prizemlju; Foto: Petr Polak
Drvena, kompaktna i udobna Inspirisani drvenom kućom koja se nekada nalazila na ovoj lokaciji, arhitekte su se odlučile za jednostavan dizajn koji je opet inspirisan arhitekturom tipičnom za ovo područje, koju iz Les Archinautes opisuju kao „drvenu, kompaktnu i udobnu“
„Morfologija kuće počiva na nekoliko principa arhitekture Čeških Šumava – pravougaona osnova, kompaktan oblik, orijentacija ka konturnoj liniji, kreiranje natkrivenog trema i izražajnija artikulacija zabatnog zida“, rekli su arhitekti za Dezeen
Vikendica je obložena tankim daskama od ariša; Foto: Petr Polak
Vikendica je podignuta na nisku drvenu platformu koja se širi van gabarita kuće kako bi kreirala i prostor za terasu duž dve strane objekta.
Obložena tankim daskama od ariša, vikendica je podignuta na nisku drvenu platformu koja se širi van gabarita kuće kako bi kreirala i prostor za terasu duž dve strane objekta, koja je natkrivena strehom.
Kako bi se okolna šuma što više utkala u objekat, konstrukcija je ostavljena izložena u unutrašnjosti i to tako da se na što bolji način uhvate poglede na okolni pejzaž.
Izloženo drvo je ofarbano tvrdim voštanim uljem, belim pigmentom i UV filterom: Foto: Petr Polak
Obilje pogleda na okolinu
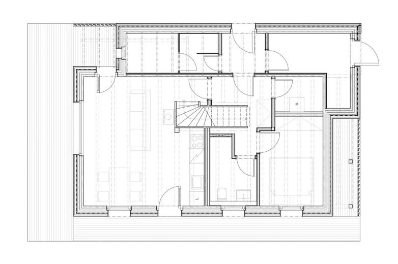
Fokus objekta je postavljen na dnevni i trpezarijski prostor u prizemlju, gde su ispod drvenih greda smešteni veliki sto, kuhinjski elementi i betonski kamin, svi zajedno sa pogledom na veliki kvadratni prozor koji ima najlepši pogled na jezero.
Pored ovog prostora vikendica sadrži i glavnu spavaću sobu u prizemlju i dve manje sobe ušuškane na spratu ispod kosog krova koje takođe, zahvaljujući krovnim prozorima i malim okruglim prozorima na zabatima, imaju pogled na šumu i planine.
Veliki kvadratni prozor ima najlepši pogled na jezero; Foto: Petr Polak
CLT zidovi i plafoni su upotpunjeni minimalističkim enterijerom i hrastovim podom, jednostavnom rasvetom i belim pločicama u kupatilu.
„Drveni zidovi u unutrašnjosti stvaraju prijatnu i toplu atmosferu. Izloženo drvo je ofarbano tvrdim voštanim uljem, belim pigmentom i UV filterom, čime se obezbeđuje da drvo zadrži svežu boju u decenijama koje dolaze.“, objasnili su iz Les Archinautes.
CLT zidovi i plafoni su upotpunjeni minimalističkim enterijerom i hrastovim podom, jednostavnom rasvetom i belim pločicama u kupatilu.
Arhitekti su bili inspirisani drvenom kućom koja se nekada nalazila na ovoj lokaciji; Foto: Petr Polak
Osnova prizemlja
Osnova potkrovlja
Presek kroz objekat
Projekat zajednički potpisuju firme Les Archinautes iz Francuske i 3AE iz Češke; Foto: Petr Polak
客服
消息
收藏
下载
最近




















