查看完整案例

收藏

下载

翻译
Architects:Simpul Studio
Area:204m²
Year:2025
Photographs:Tristan Salim
Lead Architects:Derian Adikara, Ricky Khosasie
Category:Coffee Shop Interiors
Lead Team:Derian Adikara
Design Team:Ricky Khosasie
General Constructing:Hemco
City:Kecamatan Sukajadi
Country:Indonesia
Text description provided by the architects. Hibrew Coffee and Cuisine is a renovation project of an existing coffee shop that has been operating for over six years. Located within a residential area, the building initially resembled a traditional house. The client envisioned a comprehensive transformation—both interior and exterior—to create a more contemporary and inviting atmosphere while maintaining the intimate familiarity of the original setting.
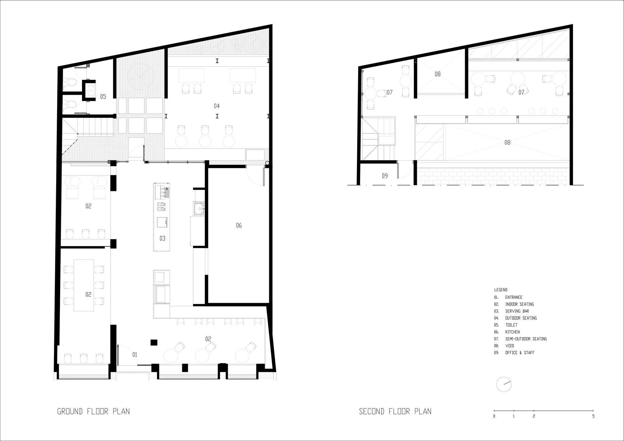
The design strategy was rooted in preserving the essence of the existing structure. Rather than altering the building's overall form, the intervention focused on reinterpreting the façade. With the construction budget as one of the key constraints, the approach emphasized strategic and cost-effective design gestures. New window openings and composition of transparent and semi-transparent glass elements were introduced to rearticulate the frontage, inviting curiosity from passersby while maintaining the modest character of a residential house. The interplay of the pitched roof and new linear forms reinforces a juxtaposition between the traditional and the contemporary.
Internally, the spatial concept embraces a subdued and grounded ambiance. The palette is restrained, with muted grey walls, glossy black ceramic flooring, and a teakwood ceiling that lends warmth and tactility. These materials work together to create a modern yet calming spatial experience. The bar counter—clad in 10x10 cm grey ceramic tiles with circular recessed lighting—acts as a sculptural centerpiece, combining functionality and visual identity. The repeated circular motif adds a soft, playful accent within the otherwise minimal material language.
Natural light filters through the generous windows and skylights, creating a subtle choreography of light and shadow throughout the day. The rear area of the café features an outdoor seating zone finished with andesite stone pavers and white gravel, contrasted by exposed concrete stairs and built-in benches. This garden-like courtyard—visible from several vantage points inside—establishes a strong indoor-outdoor connection, reinforcing the raw and honest materiality found throughout the project.
Hibrew Coffee and Cuisine embodies a careful balance between preservation and transformation. Through sensitive architectural gestures and deliberate material choices, the renovation redefines the space into a contemporary café that remains deeply connected to its original spirit, both functionally and emotionally.
Project gallery
客服
消息
收藏
下载
最近



















