知末
知末
创作上传
VIP
收藏下载
登录 | 注册有礼

丨瑞士日内瓦

2024/11/27 00:00:00
查看完整案例
微信扫一扫
收藏
下载
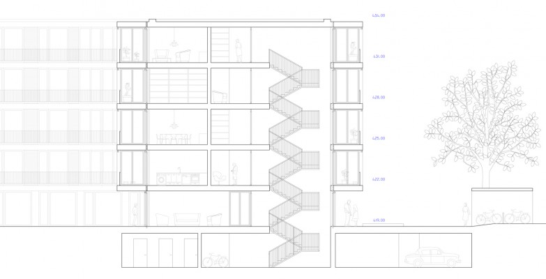
84. Le jardin hermetique
Immeubles de logements au chemin Clair-Val à Thônex (Genève)
Switzerland
2012
丨瑞士日内瓦-4
丨瑞士日内瓦-5
丨瑞士日内瓦-6
丨瑞士日内瓦-7
丨瑞士日内瓦-8
丨瑞士日内瓦-9
丨瑞士日内瓦-10
丨瑞士日内瓦-11
丨瑞士日内瓦-12
丨瑞士日内瓦-13
南京喵熊网络科技有限公司 苏ICP备18050492号-4知末 © 2018—2020 . All photos and trademark graphics are copyrighted by their owners.增值电信业务经营许可证(ICP)苏B2-20201444苏公网安备 32011302321234号
客服
消息
收藏
下载
最近