查看完整案例

收藏

下载
Unión de dos escalas y tipologías diferentes. Nuevas viviendas en Briesestraße por EM2N [Neukölln - Berlin] Alemania
Unión de dos escalas y tipologías diferentes. Nuevas viviendas en Briesestraße por EM2N
El estudio EM2N ha concluido la el proyecto del Nuevo Conjunto de Viviendas en Briesestraße Neukölln, un barrio de ambiente cosmopolita con bulliciosos bulevares, situado en la parte suroeste de Berlín.
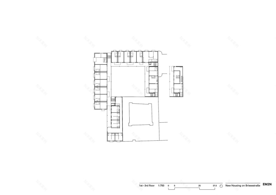
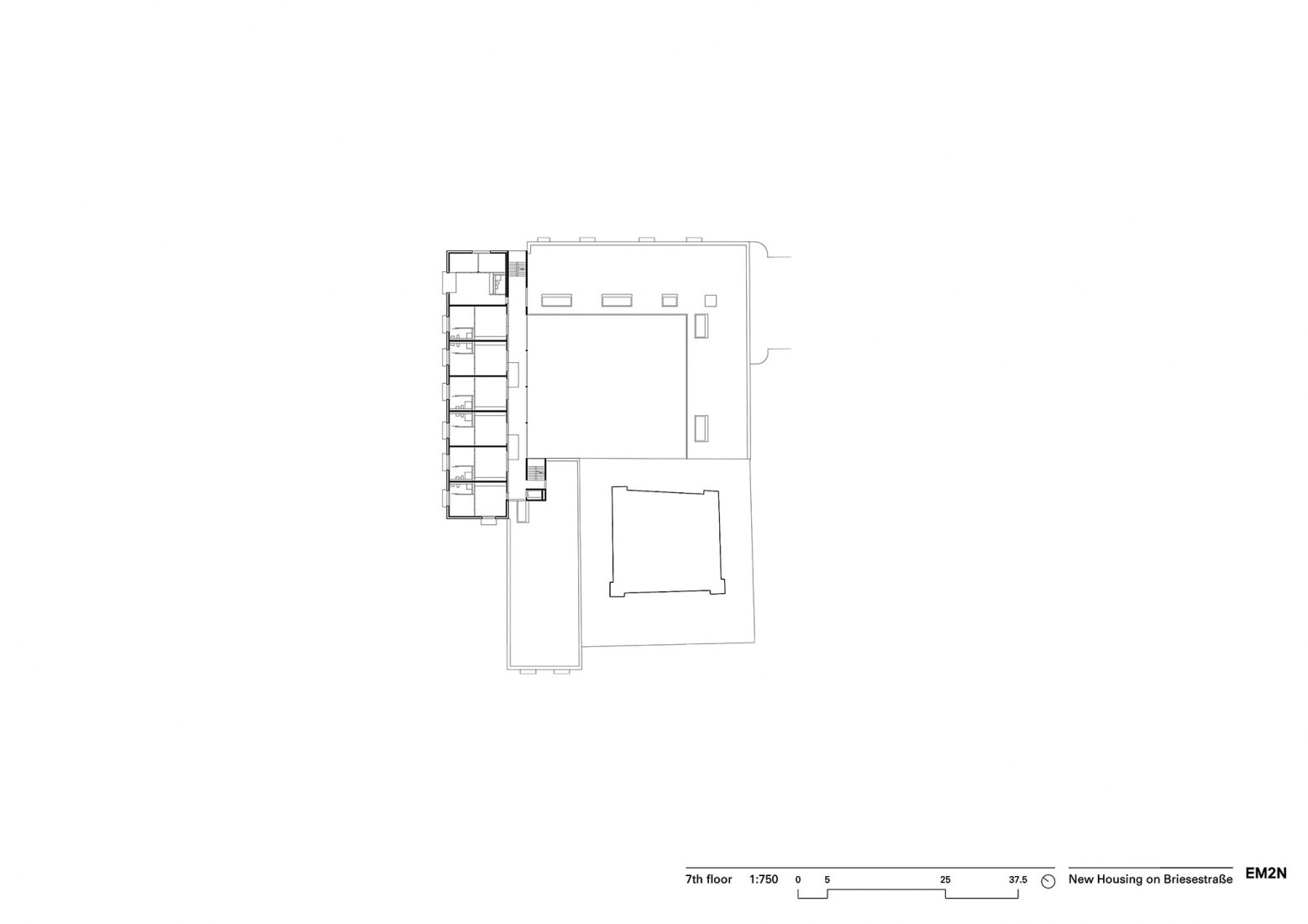
La figura del edificio compuesta por varias partes condensa el solar y une las diferentes escalas y tipologías de losa y patio que caracterizan su entorno.
La geometría propuesta por EM2N se apoya en los cortafuegos de los edificios vecinos existentes y, con su patio interior central, crea un espacio exterior de alta calidad.xa0Las cubiertas de acceso, que dan al patio, son una estructura de circulación y balcón que potencialmente puede ser apropiada por la comunidad de residentes.
El patio de generosas dimensiones se convierte en el centro social de la urbanización. Los usos propuestos para la planta baja, como una cafetería con asientos al aire libre y estudios de tamaño flexible, a lo largo de Briesestraße activan el espacio urbano.
Descripción del proyecto por EM2N
Compuesto por varias partes constituyentes, este edificio media en la unión entre el heterogéneo desarrollo perimetral de bloques con sus típicos muros cortafuegos y las grandes estructuras serpenteantes de la modernidad tardía de los años sesenta y setenta.
El nuevo edificio aumenta la densidad del solar y une las dos escalas y tipologías diferentes, la losa y el patio, que dominan su entorno. La geometría propuesta se apoya contra los cortafuegos de los edificios vecinos existentes y con su patio central crea un espacio exterior de considerable calidad. Al hacer que un ala del nuevo edificio sea más alto que los edificios inmediatamente al lado, se coloca un símbolo independiente en el distrito.
Las funciones propuestas para la planta baja, como una cafetería con asientos al aire libre en Kienitzer Straße y estudios de tamaño flexible a lo largo de Briesestraße, activan el espacio urbano. Cada una de las cuatro partes del edificio reacciona con una estructura y tipología básicas simples a su posición específica dentro del sistema. Los apartamentos creados varían en tamaño de 1 a 4 habitaciones y también hay apartamentos tipo estudio y apartamentos más grandes con áreas comunes adicionales. Dentro del "estante" flexible, la combinación de apartamentos podría adaptarse con poco esfuerzo o gasto.
El patio interior de generosas dimensiones se convierte en el centro social de la urbanización. Las plataformas de acceso que dan al patio son una estructura de circulación y balcón con el potencial de ser apropiada por la comunidad de residentes. Dos pasillos en la planta baja conducen al patio comunitario, que gracias a sus terrazas en parte plantadas y en parte de superficie dura da una impresión urbana.
La aparición de esta pieza urbana a medida en la heterogénea trama urbana del distrito de Rollberg resulta del uso de materiales industriales que, por su detalle, su forma de ensamblaje y su particular resonancia, emanan un alto nivel de calidad. Las fachadas con ventanas francesas y el revestimiento de grandes paneles de aluminio se elevan desde un robusto zócalo de hormigón visto. Esta materialización proporciona un trasfondo sin pretensiones para la apropiación del edificio por parte de sus vecinos.
EM2N
Socios.- Mathias Müller, Daniel Niggli. Asociados.- Fabian Hörmann (concurso), Verena Lindenmayer (ejecución). Líder del proyecto.- Henrike Kortemeyer. Equipos de proyecto concurso.- Mathias Kampmann, António Mesquita, Inês Nunes, Jonas Rindlisbacher, Caroline Vogel, Leonard Wertgen. Equipo de ejecución de proyecto.- Laura Ball, Pia Brückner, Felix Dechert, Götz Lachenmann.
Implenia Hochbau GmbH.
Superficie construida.- 13.343 m². Superficie de alquiler.- 7.777 m².
101 unidades residenciales / estudios, apartamentos agrupados, cafetería, aparcamiento subterráneo con 28 plazas.
Concurso.- 2015. Planificación.- 2016 - 2019. Demolición de estructura de estacionamiento existente.- Octubre de 2016. Inicio de construcción.- Marzo de 2017. Finalización.- Marzo de 2020.
Briesestraße 19 / Kienitzer Straße 26, DE-12053 Berlín, Alemania.
Andrew Alberts.
Architects EM2N
EM2N.
Con oficinas en Zurich y Berlín, EM2N con Mathias Müller (* 1966) y Daniel Niggli (* 1970) cuenta con 80 colaboradores que trabajan en proyectos de construcción y competencia en Suiza y en el extranjero. Además de una serie de premios que incluyen ’bestarchitects’, ’Umsicht-Regards-Sguardi’, ’Auszeichnung Guter Bauten’ de la ciudad de Zurich, el Cantón de Basilea-Ciudad y Basel-Landschaft, recibieron el ’Swiss Art Award’ ’en Arquitectura. Mathias Müller y Daniel Niggli eran profesores visitantes en el Instituto Federal Suizo de Tecnología en Lausana, así como en Zurich. Daniel Niggli fue miembro de los comités de construcción en Berlín (2008-12) y Zurich (2010-14).
Sus importantes proyectos de construcción recientes incluyen Heuried Sports Center en Zurich (2017), Housing Riedpark en Zug (2016), Lucerne School of Art and Design en Emmenbrücke (2016), Swiss Film Archive en Penthaz (2015), Toni -Areal en Zúrich (2014), el edificio de la Keystone Office en Prag (2012) y ’Im Viadukt’- Rehabilitación de los arcos del viaducto en Zurich (2010). La planificación ha comenzado, entre otros proyectos, el Quartier Heidestrasse, área comercial en Berlín (desde 2016), la Housing Briesetrasse Neukölln en Berlín (desde 2015), el Nuevo Museo de Historia Natural de Basilea y los Archivos de Estado de Basilea-Ciudad (desde 2015) y el Zellweger Parc, Plot D en Uster (desde 2014).
EM2N es administrado por Mathias Müller y Daniel Niggli junto con sus asociados Bernd Druffel (* 1972), Fabian Hörmann (* 1978), Verena Lindenmayer (* 1975), Björn Rimner (* 1978), Gerry Schwyter (* 1975) y Christof Zollinger (* 1973).
Daniel Niggli (1970) se diplomó en Arquitectura (1996) por la Eidgenössische Technische Hochschule Zürich (ETHZ). Desarrolla su carrera docente y profesional en Suiza, donde, desde 1997 forma parte como socio del estudio EM2N.
1996.- Tesis Prof. A. Meyer / Marcel Meili, ETH Zurich.
1997.- Funda EM2N Architekten ETH / SIA.
2004.- Federal Art Award – Arquitectura.
2005.- Profesor invitado ETH Lausanne.
2006.- Miembro de la Federation of Swiss Architects.
2008 - 2012.- Miembro del Baukollegium Berlin.
2009 - 2011.- Profesor invitado ETH Zürich.
2010 - 2014.- Miembro del Baukollegium Zürich.
Mathias Müller (1966) se diplomó en Arquitectura (1996) por la Eidgenössische Technische Hochschule Zürich (ETHZ). Desarrolla su carrera docente y profesional en Suiza, donde, desde 1997 forma parte como socio del estudio EM2N.
1996.- Tesis profesor A. Meyer/Marcel Meili, ETH Zürich.
1997.- Funda EM2N Architekten ETH/SIA.
2004.- Federal Art Award - Arquitectura.
2005.- Profesor invitado ETH Lausanne.
2006.- Miembro de la Federation of Swiss Architects.
2009 - 2011.- Profesor invitado en ETH Zürich.
客服
消息
收藏
下载
最近




























