查看完整案例

收藏

下载
KAAN Architecten受托将历史悠久的圣佩德罗工厂改造为一座先进的文化中心,提出了一套融合历史肌理与建筑介入的总体规划。项目体现了建筑作为持续演进的过程,其本体即是连接与统一的媒介。跨越过去与未来,该项目彰显了“适应性再利用”在激发文化与创意方面的潜力。
Commissioned to transform the historic São Pedro factory into a state-of-the-art cultural centre, KAAN Architecten has developed a master plan that integrates architectural interventions with the complex’s historical layers. This project embodies architecture as a continuous process, where the buildings themselves serve as a unifying element. Bridging the past and future stands as a testament to the potential of adaptive reuse in fostering culture and creativity.
▼展览C大楼立面,《蓝星》(2017)by Marcos Amaro,飞机机身、树干与汽车漆,
Exhibition Building C façade featuring Blue Star (2017) by Marcos Amaro © Sebastian van Damme
▼住宅工作室I、展览J大楼与K工作室转角处视角,绿色氛围中展示Marcos Amaro作品,View of corner between Residential Atelier I, Exhibition Building J and Atelier K featuring a Marcos Amaro artwork © Sebastian van Damme
▼户外展览G区、F库房与临展H大楼之间的绿色空间视角,View of green space between Outdoor Exhibition G, Depot F and Temporary Exhibition Building H © Sebastian van Damme
20世纪初,随着新市政法规出台及通往桑托斯港的铁路建成,伊图工业发展迅速。始建于1911年的圣佩德罗牛仔布工厂,在当地工业化进程中发挥了关键作用,直至1990年代停产。该工厂由法裔巴西建筑师Louis Marins Amirat设计,呈现出巴西早期受欧洲影响的工业建筑风格,特色包括砖砌创新与纪念性立面。自2003年起,工厂被列入圣保罗州文化遗产保护委员会(CONDEPHAAT)名录。2012年,巴西艺术家、企业家、收藏家Marcos Amaro因对场地的个人情感与其文化潜力,收购该地并将其改建为“马科斯·阿马罗艺术工厂”(Fábrica de Arte Marcos Amaro,简称FAMA)。
▼分析图,Analysis diagram©KAAN Architecten
In the early 20th century, new municipal regulations and a railway connection to Santos Harbour spurred industrial growth in Itu. The São Pedro jeans factory, established in 1911, played a pivotal role until its closure in the 1990s. Designed by French-Brazilian master builder Louis Marins Amirat, the factory showcases early European-influenced architecture in Brazil, featuring innovative brick masonry and monumental façades. Since 2003, the site has been protected under CONDEPHAAT’s heritage listing, responsible for safeguarding and promoting cultural assets in the State of São Paulo. In 2012, Marcos Amaro, a Brazilian visionary artist, entrepreneur, and collector, acquired the site and transformed it into the Fábrica de Arte Marcos Amaro (FAMA), motivated by a personal connection to the place and its potential as a space for artistic production.
▼A栋街景,尚未修复,Street view of Building A, still untouched © Sebastian van Damme
▼从天井看展览M大楼的立面,Façade of the Exhibition Building M from the patio © Sebastian van Damme
▼展览M与A大楼立面,前者已修复,后者未修复,
Façades of Exhibition Buildings M and A, the former restored, the latter untouched © Sebastian van Damme
▼展览M与A大楼之间的展厅走廊视角,
Exhibition hallway between Buildings M and A © Sebastian van Damme
FAMA项目是一项面向未来的长期计划,致力于打造一个灵活、多元、鼓励交流的艺术平台。历经六年精心策划与执行,该项目在保护历史遗产的基础上推进转型更新,使原本的艺术仓储地转变为活跃的文化场所。目前,场地已有60%完成修复,其余40%仍处于未触及状态,那些尚未翻修的遗迹以其斑驳之美,象征着对历史的尊重与未来的承诺。首阶段工作包括制定明确的修复框架,涵盖整体愿景、施工安排、消防规范、无障碍系统与景观策略,并与本地修复建筑师及周边社区展开协作,推动有意识的建筑干预。核心理念之一是“可适应性”,体现在空间功能的演变及艺术家角色的自由转换上。项目另一个显著特征,是对时间侵蚀痕迹的主动接受:并不掩盖老建筑的岁月痕迹,而是将其作为时间累积的一部分加以保留。
▼分析图,Analysis diagram©KAAN Architecten
The FAMA project is a long-term initiative aimed at creating a dynamic space for the art community. Spanning over six years of meticulous planning and execution, the project focuses on revitalising a historic site while promoting flexibility, artistic exchange, and collaboration. Over time, the site has transformed from a storage facility into a vibrant cultural hub. Although 60% of the site has been restored, the remaining 40% is currently untouched. These ruins, still beautiful in their imperfection, reflect the project’s emphasis on embracing the past while building for the future. The initial phase involved developing a formal framework outlining the project’s key stages, specifying what would be undertaken and how, and presenting the overall vision for restoration, fire safety, accessibility, and landscaping of the complex. In collaboration with local restoration architects and the surrounding communities, the plan includes strategies for thoughtful interventions. Central to the concept is adaptability, both in the evolution of the space and in the flexible roles envisioned for artists. A defining aspect of the project is its conscious embrace of physical and emotional decay. Rather than erasing signs of time, it respects the historical structure’s layers in its various states of preservation. The transformation features artist residencies, where artists create new works or prepare exhibitions, with a rotating model ensuring ongoing creative exchange.
▼展览M大楼室内视角,展出Santos Dumont基金会藏品,
Interior of Exhibition Building M featuring artworks from the Santos Dumont Foundation © Sebastian van Damme
▼展览J大楼室内视角,《TIAMM SCHUOOMM CASH!》(2016–2022)by José Spaniol,木船与竹子,
Interior of Exhibition Building J featuring TIAMM SCHUOOMM CASH! (2016–2022) by José Spaniol © Sebastian van Damme
▼展览M大楼室内视角,展出Santos Dumont基金会藏品,
Interior view of Exhibition Building M with Santos Dumont Foundation collection © Sebastian van Damme
▼D工作室室内视角,展出Pedro Petry设计的家具,
Interior of Atelier D featuring furniture by Pedro Petry © Sebastian van Damme
▼展览M大楼内立面,展出Santos Dumont基金会藏品,
Inner façade of Exhibition Building M featuring artworks from the Santos Dumont Foundation © Sebastian van Damme
▼F库房室内视角,展示储存中的作品,Interior view of Depot F with stored artworks © Sebastian van Damme
▼B工作室商店视角,View of Atelier Shop B © Sebastian van Damme
项目包含艺术家驻地计划,艺术家在此创作新作或筹备展览,以流动轮换的方式维持创意活力。KAAN Architecten采取“保留优先”的方法,尽可能保留原有结构,必要时使用新材料,并避免全新重建或风格化的现代附加物。标准化建筑方法被摒弃,转而为每一栋建筑量身定制干预策略,具体包括以下三种类型:内嵌式体量插入:在原有空间内部嵌入新功能结构,形成“结构中的结构”,最大程度减少对外立面的干扰,同时重构室内组织逻辑;保留外壳并整合核心:修复建筑内外壳体,同时植入新的功能核心,兼顾历史外观与现代使用需求;结构性填充:引入新的内部构件支撑原结构,根据建筑几何与地势精准布置,为老建筑提供必要加固。
KAAN Architecten focuses on conservation: preserving what remains and introducing new materials where necessary, while avoiding complete reconstruction and contemporary additions. Standard architectural methods are set aside in favour of bespoke strategies developed in response to the specific conditions of each building. This approach results in three main strategies for preservation and reuse. One is the “Inner volume insertion,” which involves placing a new functional structure within the existing volume, an element within an element. This minimises interventions to the external envelope while reorganising the interior and introducing a new structural logic. The “Envelope retention with core integration” restores the outer and inner shells and inserts a new internal core to accommodate facilities. This preserves both the external and internal appearances and meets current usage requirements, and the “Structural infilling” introduces new internal elements to support the existing shell. These elements are designed in relation to the building’s geometry and topography, providing reinforcement where needed.
▼住宅工作室I、展览J大楼与K工作室转角处视角,展示多种改造方式与绿色氛围,View of the corner between Residential Atelier I, Exhibition Building J and Atelier K showing varied renovation approaches in green surroundings © Sebastian van Damme
▼F库房与户外展览G区立面视角,《新传统》(2019–2020)by Nunca,涂鸦艺术,
Façades of Depot F and Outdoor Exhibition G featuring Nova tradição (2019–2020) by Nunca © Sebastian van Damme
▼F库房与户外展览G区立面视角,《新传统》(2019–2020)by Nunca,涂鸦艺术,
Façades of Depot F and Outdoor Exhibition G featuring Nova tradição (2019–2020) by Nunca © Sebastian van Damme
▼户外展览G区视角,《奴隶棚》(2011–2017)by José Resende,钢、铜、铁,
Outdoor Exhibition G featuring Senzala (2011–2017) by José Resende © Sebastian van Damme
▼户外游乐区O视角,《Yaya》(2021)by Sara Rosenberg,树脂涂层玻璃纤维与聚氨酯涂漆,
Outdoor Playground O featuring Yaya (2021) by Sara Rosenberg © Sebastian van Damme
如今,该场地已对公众开放,成为艺术、历史与建筑交汇的文化地标。从最初的收藏存储功能出发,它已发展为展览空间、艺术家驻地,并孕育着更多未来更新可能。KAAN Architecten的贡献体现了他们的设计哲学:建筑不仅是空间的构造,更是人们生活、创作与连接的容器。正如KAAN Architecten的Renata Gilio所言:“FAMA充分展现了像Marcos Amaro这样具备远见的业主如何推动项目超越审美表象,聚焦空间的运作方式、衰老过程与持久价值。项目分阶段推进、预算有限,但这种无起点亦无终点的进程本身,正是项目的一部分。空间的不断演化与不同修复阶段的共存,构成了其独有的美感与灵感源泉。”
Today, the site is open to the public, serving as a cultural landmark where art, history, and architecture converge. What began as a storage space for art collections is now a vibrant exhibition venue, housing for artists, and a masterplan for future interventions. KAAN Architecten’s contribution to the project reflects a philosophy that architecture is not just about buildings but creating spaces for people to live, create, and connect. “FAMA is an excellent example of how an exceptional client like Marcos Amaro with a true vision can make a difference and guarantee an architectural concept where the focus shifts from aesthetic veneers towards deeper qualities that define how a space functions, ages, and endures. The long-term phasing of the project (that depends heavily on limited financing) is embraced as part of the concept, in a process without a formal beginning or end. The process itself enriches the ever-evolving spaces, and the visibility of diverse stages of conservation adds to the inherent beauty and inspiring environment”, concludes Renata Gilio from KAAN Architecten.
▼D工作室与展览J大楼立面视角,《空陶》(2018)by Carlos Mélo,铁丝与牛骨,Façades of Atelier D and Exhibition Building J featuring Barro Oco (2018) by Carlos Mélo © Sebastian van Damme
▼A栋室内视角,尚未修复,Interior view of Building A, still untouched © Sebastian van Damme
▼展览C大楼街景视角,Street view of Exhibition Building C © Sebastian van Damme
▼K工作室与P大楼街景视角,尚未修复,Street view of Atelier K and Building P, still untouched © Sebastian van Damme
▼住宅工作室I立面视角,《客厅休憩》(2011)by José Spaniol,不锈钢焊接雕塑,
Façade of Residential Atelier I featuring O descanso na sala (2011) by José Spaniol © Sebastian van Damme
▼Q烟囱、住宅工作室I与展览J大楼视角,
View of Chimney Q, Residential Atelier I and Exhibition Building J © Sebastian van Damme
▼户外展览G区视角,《出售中》(2008)by Carmela Gross,发光装置、铝材与亚克力,
Outdoor Exhibition G featuring Se vende (2008) by Carmela Gross © Sebastian van Damme
▼区位图,Location©KAAN Architecten
▼场地平面图,Site plan©KAAN Architecten
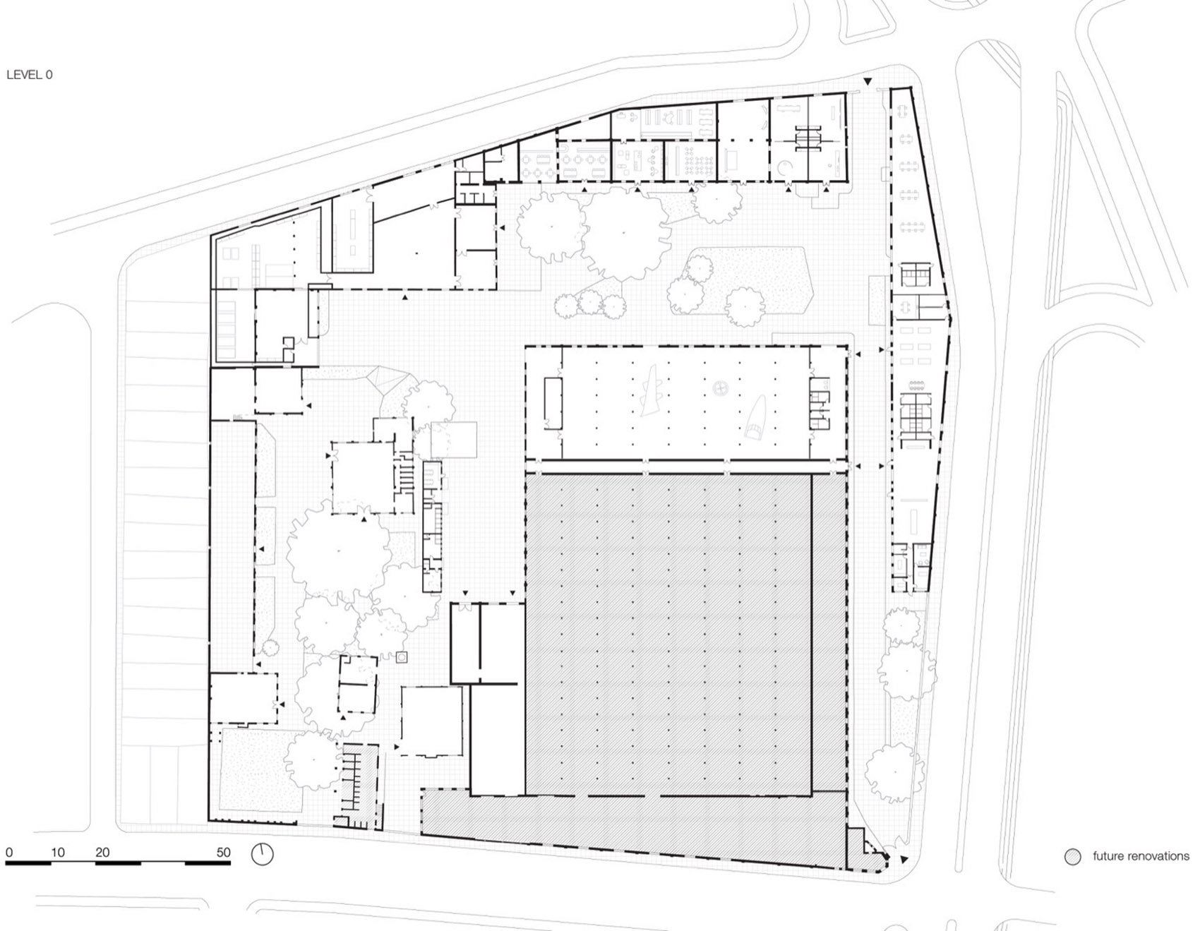
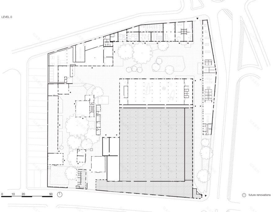
▼首层平面图,Ground floor plan©KAAN Architecten
Museum FAMA
Location:Itu, São Paulo, Brazil
Architect and urban planning:KAAN Architecten
Project team:Raluca Firicel, Juliana Generoso, Renata Gilio, Danielle Gregorio, Carlos Jacquet, Kees Kaan, Ricardo Marmorato, Vincent Panhuysen, Marco PeixeD’Elia,Dikkie Scipio, Laís Oliveira Xavier
Client:Associação para Futura Fundação Marcos Amaro
Program:
·restoration
·heritage
·landscaping
·vehicle traffic study
·parking systems
·adaptive reuse of an industrial building into a cultural asset
·concert hall
·museum spaces
·administration
·staff facilities
·auditorium
·spaces for high-tech exhibitions
·museology center
·big exhibition spaces
·library
·educational space with a dedicated workshop area
·artists residences
·cafe
·space for events
Design phase:2019-2020
Start construction:2020
Completion: Dec/2022
GFA:15.837 sqm
Restauration advisor: Vinicius Martins de Oliveira and Jéssica Aparecida de Paula, São Paulo, Brazil for KAAN Architecten
Local Architect:UrbSP
客服
消息
收藏
下载
最近

































