查看完整案例

收藏

下载
New look for the typical English Gothic school. School of Science and Sport Building for Brighton College by OMA
[Brighton] UK
New look for the typical English Gothic school. School of Science and Sport Building for Brighton College by OMA
Brighton is located on the south coast of England, positioned 76 kilometres (47 miles) south of London, and is well know becasuse is the prototype of gothic image of English private schools, however the Brighton college’s new building, School of Science and Sports designed by the Rotterdam-based Office for Metropolitan Architecture (OMA), the practice founded by Rem Koolhaas, is the expression of a new image for the typical English private school.
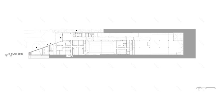
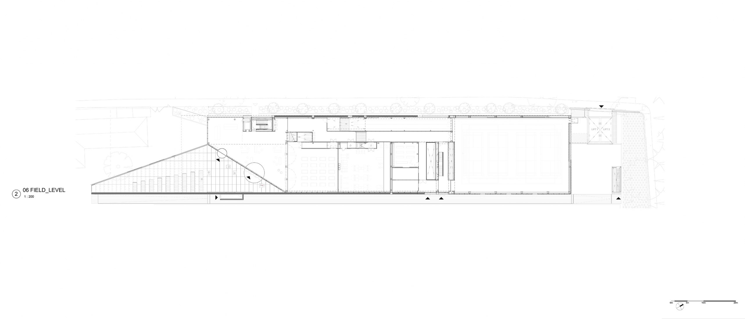
Dutch architecture studio OMA has unveiled the new Sports and Science Centre at the historic college in Brighton, an school for 11 to 18-year-olds, located alongside Brighton College’s main playing field, has an exterior finished in glass-reinforced concrete and dark grey, is long, angular and machined, and merges academic and athletic facilities in one building.
"Think of an English private school and you will probably think of somewhere gothic. Something like St Trinian’s, or Nigel Molesworth’s St Custard’s, whose ogees and oak made habitats for bats and spiders, whose shadowy recesses harboured aromas of boiled cabbage and sodden socks. Something, probably, much like Brighton college, in which flint walls are pierced by pointed arches that lead into enclosed spaces reminiscent of Oxbridge colleges, which open on to an expansive greensward dedicated to the inculcation of illogic and injustice through the games of rugby and cricket."
Rowan Moore. The Guardian, 11 Jan 2020. Brighton college’s Sports and Science Centre review – Hogwarts meets George Lucas
To see it only as a concept or shape estilistic, however, is to miss most of the intentions behind the project. The project remembers and updates concepts already experienced in initial projects by Rem Koolhaas, such as the Kunsthall, in Rotterdam. Its abstracted frame is the means to several ends, in particular the recovered concept by OMA of social condenser, the programmatic layering, to encourage dynamic coexistence of activities and to generate through their interference, unprecedented events.
About the €64.5m (£55m) project, “I wanted to keep it as low as possible,” says Ellen van Loon. “We are not too good at pitched roofs... we are champions of questioning everything” adds OMA partner in charge of the project. She has headed up OMA projects from 1998, as the 2001 Casa da Musica in Porto which helped to reverse the typology of the black - box auditorium with two walls made entirely in glass, or the dazzling library in Doha.
“Architecture is so dull these days. We have not manifest any more. It’s cautious. Developers only want you to do what they already know” said Van Loon. Van Loon also brought to the project some straightforward good ideas as a high level of transparency, linking the view over the playing fields and the flat roof gave an opportunity to view the sea, and was furnishes with a running track.
The corridors and stairs are part of a pattern of movement through the building, providing the oportunity to explore its interesting interior landscape, a logic mixture of things, the sports facilities on the ground floor next to the sports field with the science labs above. In the basement there is a swimming pool and changing rooms for indoor and outdoor sports. There is also an underground carpark in the basement that is accessed by a lift.
Project description by OMA
The new School of Science and Sport for Brighton College, designed by OMA / Ellen van Loon, was inaugurated in an official ceremony by Sir Nicholas Soames on January 9 in the presence of Simon Smits, the Dutch ambassador to the UK, Headmaster Richard Cairns, and Ellen van Loon.
The School for Sports and Science defies the conventional character of educational buildings – one of endless empty hallways and imposed silence – and instead combines the two departments to create a vibrant building with lively spaces where activities are not necessarily dictated by a school timetable. Observing that processes of learning take place outside as much as inside of the classroom, the design articulates a new idea of educational space bolstering interaction and exchange.
Individual components of the building are exposed to each other: an indoor running track on the ground floor is visible from upper levels, classrooms have floor to ceiling windows, even fume hoods in the chemistry classrooms are made transparent – enabling people walking down the hallway to witness ongoing experiments.
Headmaster Richard Cairns: “My concern as an educator has always been the silo mentality of academic institutions so that subject specialists in one area don’t talk to those in another. My challenge to Ellen was to create a building where different academic disciplines were interwoven into the same building. I really wanted to be able to stand on the sports field outside and see a beehive of different activities going on, wonderfully interconnected and alive. This Ellen delivered in spades.”
Ellen van Loon: “We wanted to give Brighton College a building that continues to deliver more than strictly required, expanding the traditional definition of educational architecture. Generous spaces outside of classrooms become the pupils’ domain for self-directed activity and collaboration.”
Carol Patterson, Director-in-Charge: “Working on active projects in the UK with OMA for the last dozen or so years, Brighton College was the ultimate cultural deep dive. Merging our analytical thinking on space and occupation in such a historical typology was a fulfilling challenge. To see the building actively in use exceeds my imagination.”
Established in 1845, Brighton College is a private, co-ed boarding and day school in Brighton, England, and over the years has cemented its reputation as one of Britain’s leading schools and was named the top independent school by the Sunday Times. The campus is comprised of two areas: a historical quadrangle, composed of Grade II listed buildings designed by Sir Gilbert Scott and Sir Thomas Jackson in the 19th century; and the playing field lined with buildings from the 1970s and 1980s, the site of the new building.
Brighton College is the first built school for secondary education by OMA. It follows the educational projects Lab City CentraleSupélec (2017), Millstein Hall (2011) and the IIT McCormick Tribune Campus Center (2003).
OMA
Partner.- Ellen van Loon. Project Director.- Carol Patterson.
2013: Ellen van Loon, Rem Koolhaas, Carol Patterson, Gabriela Bandeira, Jan Barta, Marlies Boterman, Matthew Davis, Emile Estourgie, Alain Fouraux, Mindaugas Glodenis, Airat Khusnutdinov, Can Liu , Hans Larsson, Nikki Mulder, Edward Nicholson, Betty Ng, Francesca Pagliaro, Tom Shadbolt, Liheng Zhang, Hongchuan Zhao.
2014.- Ellen van Loon, Carol Patterson Kees van Casteren, Alain Fouraux, Daniel Gonzales, Leonardos Katsaros, Hans Larsson, Ellen van Loon, Francesco Moncada, Martin Murrenhoff, Betty Ng, Vitor Oliveira, Pawel Panfiluk, Jad Semaan, Timur Shabaev, Jonathan Telkamp.
Schematic Design.- Carol Patterson, Marina Cogliani, Cristina Marin de Juan, Dinka Beglerbegovic.
Design Development.- Carol Patterson, Marina Cogliani, Michalis Hadjistyllis, Mario Rodriguez.
Construction.- Carol Patterson, Isabel da Silva, Marina Cogliani, Tom Pailing, Magdalena Stanescu.
Services engineer.- Skelley and Couch. Structural engineer.- Fluid Engineering. Landscape.- Bradley-Hole Schoenaich. Acoustics.- Ramboll. Fire engineer.- The Fire Surgery. Sustainability.- Eight Associates. Contractor.- McLaren. Employers representative.- Gardiner & Theobald. Project Manager.- Adrian Broadway.
Brighton College
McLaren Construction Group.
CONTRACTORS
Reinforced concrete frame (Basement, Ground Floor, Lift Core).- Galldris.
Steel frame (above ground superstructure): Conder Allslade.
Precast concrete bridge beam (ground level floor to gyms).- Shay Murtagh.
Composite metal decking(typical above ground floors).- Prodeck Fixing / Conder Alslade.
External material elements.- Alumet.
GFA.- 7,425 m².
Total length of the building: 120m
Main building footprint: 120m x 23m
Running track (indoors): 30m
Running track (outdoors): 50m +18.5m run off space
Swimming pool: 5 lane, 25m x 10.5m
Sports Hall: 35.2m x 22.9m x 7.9m (height)
Typical Lab: 12m x 7.5m x 2.96m (height)
Cinema: 10.5m x 9m x 2.95m
Greenhouse: 7.4m x 7.4m
£36,700,000
Competition (2013, 2014), Commission (2014), Planning approval (2015), Construction (2017 - 2019), Completion (2020). Completed, open January 5, 2020.
Eastern Rd, Brighton BN2 OAL, United Kingdom
Educational (science class rooms, laboratories, sports facilities, swimming pool).
U - Value targets (W/M2k): Wall 0.2, Reglit Glazing 1.2, Standard glazing 1.2, Roof 0.14, Floor 0.2
Renewable energy: Ground source heat pump. CHP (combined heat and power).
Ventilation strategy: Passive, naturally ventilated. Mechanical heating/cooling only where required (sports) via ground source heat pump. High ceiling heights promote natural ventilation.
Lightning: Natural light, excellent daylighting to reduce daytime artificial light. Deep reveal for solar shading in summer. Rooflights.
Artificial lighting (lux): Gym/changing room 200, Sports Hall 300/500/750, typical classroom 300
Biodiversity: Sedum roof enhances and reduces water run-off
Skeleton rainscreen cladding: Fibre C GFRC Cladding, liquid black (Supplied by Pura Facades)
Aluminium curtain wall glazing: Natural anodized finish (Supplied by Schuco)
External doors: Natural anodized finish (Supplied by Schuco)
U Channel glass cladding: Toughened, heat soaked tested and low iron, natural anodized frame, security film applied, insulation infill (Supplied by Linit)
Precast concrete cladding (+ wedge steps): Natural anodized finish (Supplied by Creagh Concrete)
Aluminium rainscreen cladding: Supplied by Taylor Maxwell
Sedum: Extensive, used on non accessible areas (Contractor: Briggs Amasco)
Synthetic grass: Tigerturf finesse, used on accessible areas (Contractor: Fieldform)
Composite decking: Anthracite/ebony color (Supplied by Timco Wood)
Metal grating balustrade: Stainless steel, square aperture (Supplied by Elefant Gratings)
Glass Balustrade: Glazing channel - Stemcor Architectural EaziFit 1.5kN (Contractor: Bailey fabrications)
Running track: Polytan Rekordan (Contractor: Fieldform)
Typical floor: Concrete screed + resilient layer (+UFH locally)
Floor finish sports hall/gym: Timber Oak (Supplied by Dynamic)
Floor finish typical lab + circulation: Linoleum (Supplied by Forbo)
Floor finish swimming pool: Glass Mosaic ceramic tiles (Supplied by Designworks Tiles)
Floor finish changing areas: Mosaic ceramic tiles (Supplied by Togoma)
Floor finish entrance matting: Supplied by Coba Flooring
Typical wall: Gypframe metal stud (Supplied by British Gypsum)
Laurian Ghinitoiu
OMA. Office for Metropolitan Architecture
Office for Metropolitan Architecture (OMA) is an international practice operating within the traditional boundaries of architecture and urbanism.
AMO, a research and design studio, applies architectural thinking to domains beyond.
OMA is led by eight partners – Rem Koolhaas, Reinier de Graaf, Ellen van Loon, Shohei Shigematsu, Iyad Alsaka, Chris van Duijn, Jason Long, and Managing Partner-Architect David Gianotten – and maintains offices in Rotterdam, New York, Hong Kong, Doha, and Australia. OMA-designed buildings currently under construction are the renovation of Kaufhaus des Westens (KaDeWe) in Berlin, The Factory in Manchester, Hangzhou Prism, the CMG Times Center in Shenzhen and the Simone Veil Bridge in Bordeaux.
OMA’s completed projects include Simone Veil Bridge in Bordeaux (2024), LANTERN in Detroit (2024), Mangalem 21 in Tirana (2023), Aviva Studios – Factory International in Manchester (2023), Apollolaan 171 in Amsterdam (2023), Buffalo AKG Art Museum in Buffalo (2023), Toranomon Hills Station Tower in Tokyo (2023), Taipei Performing Arts Centre (2022), Audrey Irmas Pavilion in Los Angeles (2020), Norra Tornen in Stockholm (2020), Axel Springer Campus in Berlin (2020), MEETT Toulouse Exhibition and Convention Centre (2020), Galleria in Gwanggyo (2020), WA Museum Boola Bardip (2020), nhow RAI Hotel in Amsterdam (2020), a new building for Brighton College (2020), and Potato Head Studios in Bali (2020). Earlier buildings include Fondazione Prada in Milan (2018), Garage Museum of Contemporary Art in Moscow (2015), De Rotterdam (2013), CCTV Headquarters in Beijing (2012), Casa da Música in Porto (2005), and the Seattle Central Library (2004).
AMO often works in parallel with OMA’s clients to fertilize architecture with intelligence from this array of disciplines. This is the case with Prada: AMO’s research into identity, in-store technology, and new possibilities of content-production in fashion helped generate OMA’s architectural designs for new Prada epicenter stores in New York and Los Angeles. In 2004, AMO was commissioned by the European Union to study its visual communication, and designed a colored "barcode" flag, combining the flags of all member states, which was used during the Austrian presidency of the EU.
AMO has worked with Universal Studios, Amsterdam’s Schiphol airport, Heineken, Ikea, Condé Nast, Harvard University and the Hermitage. It has produced Countryside: The Future, a research exhibited at Solomon R. Guggenheim Museum in New York; exhibitions at the Venice Architecture Biennale, including Public Works (2012), Cronocaos (2010), and The Gulf (2006); and for Fondazione Prada, including When Attitudes Become Form (2012) and Serial and Portable Classics (2015). AMO, with Harvard University, was responsible for the research and curation of the 14th Venice Architecture Biennale and its publication Elements. Other notable projects are Roadmap 2050, a plan for a Europe-wide renewable energy grid; Project Japan, a 720-page book on the Metabolism architecture movement (Taschen, 2010); and the educational program of Strelka Institute in Moscow.
Ellen van Loon
Ellen van Loon
(Rotterdam, 1963) joined OMA in 1998 and became Partner in 2002. She has led award-winning building projects that combine sophisticated design with precise execution. Recently completed projects led by Ellen include the shop-in-shops for Jacquemus at Galeries Lafayette and Selfridges (2022), the temporary showroom in Doha and store on Avenue de Montaigne in Paris for Tiffany & Co. (2022-23), Monumental Wonders exhibition for SolidNature in Milan (2022). Bvlgari Fine Jewelry Show (2021), Brighton College (2020), BLOX / DAC in Copenhagen (2018), Rijnstraat 8 in The Hague (2017), and Lab City CentraleSupélec (2017). Other projects in her portfolio include Fondation Galeries Lafayette (2018) in Paris; Qatar National Library (2017); Amsterdam’s G-Star Raw Headquarters (2014); De Rotterdam, the largest building in the Netherlands (2013); CCTV Headquarters in Beijing (2012); New Court Rothschild Bank in London (2011); Maggie’s Centre in Glasgow (2011); Casa da Musica in Porto (2005) – winner of the 2007 RIBA Award; and the Dutch Embassy in Berlin (2003) – winner of the European Union Mies van der Rohe Award in 2005. Ellen is currently working on The Factory Manchester – a large performing arts venue for the city; the renovation of Kaufhaus des Westens (KaDeWe) Berlin – Europe’s biggest department store – and the design of Lamarr, a new department store in Vienna; and the Palais de Justice de Lille.
客服
消息
收藏
下载
最近





































































