查看完整案例

收藏

下载
«Панямуньскі Стоўнхендж»
Авторы:
Ателье А. Трусова
Александр Трусов
Илья Дорохов
Сергей Гриневич
Детали проекта:
Категория:
Частная архитектура
Площадь:
268.00 м²
Реализация:
2019 г.
Фото:
Дмитрий Калашников
Участник конкурса
10 лет архитектуры вместе с VitHouse
в номинациях: Частная архитектура
Результаты голосования:
Жюри:
360
(5)
Пользователи:
654
Всего:
1014
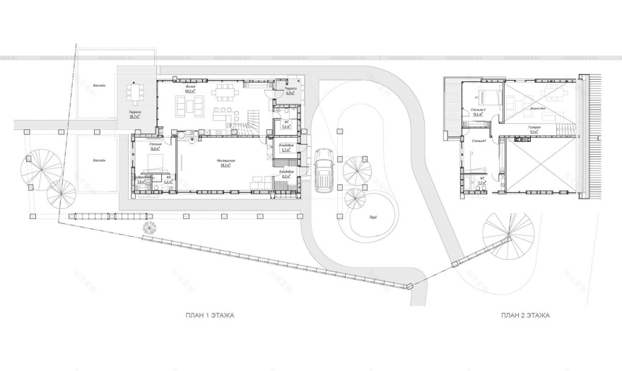
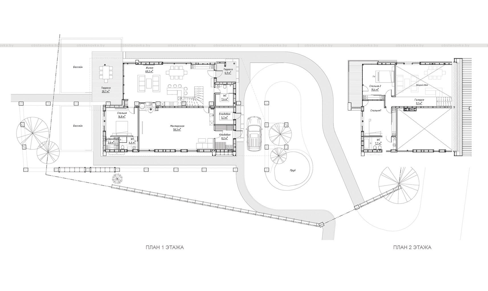
Хата мастака пабудавана на падмурках і слупах былой вясковай стайні. Будынак злучае майстэрню мастака і прыватнае жылле. Шэраг слупоў звонку ўключаны ў інтэр'ер і з’яўляюцца апорай балкону і бятонай лесвіцы. Рэшткі стайні ужыты, як ландшафтныя элементы навакольнага асяродзя. Захаванне рэшткаў матэрыяльнай спадчыны было галоўнай плынью праекту.
Канструкцыя муроў – драўляны каркас з элементамі металю, аздоблены драўлянымі вентфасадамі. Дах – фальцевы металь. Аздабленне ітэр’еру гіпсакартон у два слаі. Ацяпленне ад драўлянага катлу з цеплай падлогай і люстэркавай налівной тэхналогіяй.
Авторы:
Ателье А. Трусова
Александр Трусов
Илья Дорохов
Сергей Гриневич
Детали проекта:
Категория:
Частная архитектура
Площадь:
268.00 м²
Реализация:
2019 г.
Фото:
Дмитрий Калашников
客服
消息
收藏
下载
最近


















