查看完整案例

收藏

下载
Objekat je kreiran kao odgovor na rastući trend rada od kuće; Foto: Miran Kambič
Stanovanje i keramičarski atelje pod jednim krovom u Ljubljani
Na placu od 550 kvadratnih metara u predgrađu slovenačke prestonice nikao je objekat potpuno zatvoren od svog vizuelno užurbanog neposrednog okruženja.
Ova atrijumska kuća dizajnirana je da ujedini stambeni prostor jedne porodice sa radnim ateljeom svog vlasnika – keramičara i umetnika – pod jednim krovom.
Cilj je bio je da se objekat kreira kao odgovor na rastući trend rada od kuće, a tu ideju u delo su sproveli Boštjan Peter Aleš Gabrijelčič iz ljubljanskog biroa Arhitektura d. o. o.
Kuća zatvorena od svog neposrednog okruženja; Foto: Miran Kambič
Povezanost životnog i radnog prostora
Plac od 550 kvadratnih metara nalazi se u predgrađu slovenačke prestonice, na području koje trenutno prolazi kroz opsežnu gentrifikaciju i okružen je gustom i raznolikom gradnjom porodičnih kuća.
Klijent je želeo da kuću drži zatvorenu od njenog vizuelno užurbanog neposrednog okruženja, koje će u budućnosti doživeti nepredvidiv razvoj, a istovremeno je želeo da stekne dobro osvetljen i potpuno povezan životni i radni prostor.
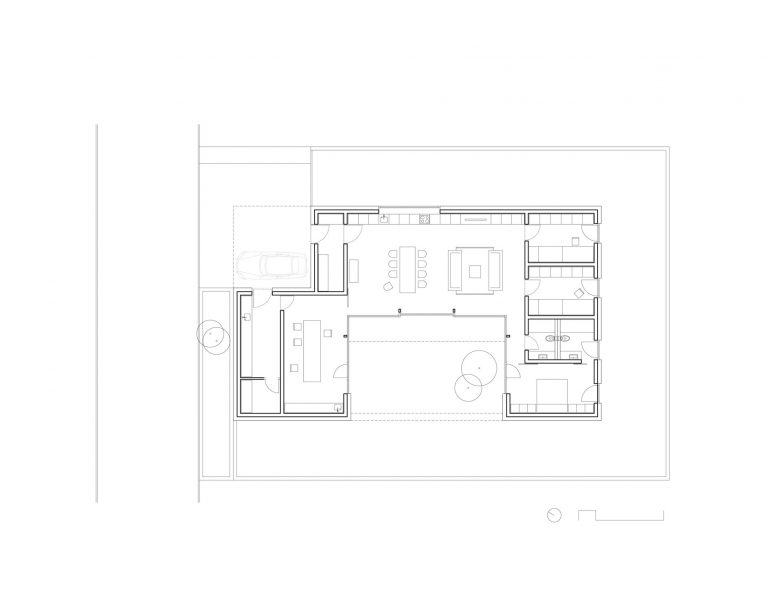
Kuća je dizajnirana u obliku slova „U“. Sa tri zidane površine, omeđene susednim kućama, pogledi su usmereni ka unutra, obezbeđujući privatnost od spoljašnjeg sveta.
Unutrašnji prostori kuće otvaraju se kroz velike panoramske prozore; Foto: Miran Kambič
Velike staklene površine ocrtavaju unutrašnjost spolja kao tanka nevidljiva membrana i unose u objekat puno sunčeve svetlosti.
Unutrašnji prostori kuće otvaraju se kroz velike panoramske prozore prema centralnom atrijumu, koji je dizajniran kao međuprostor, a iz kog se omogućava prolaz u različite delove kuće i direktna komunikacija između radionice i stambenog prostora.
Velike staklene površine ocrtavaju unutrašnjost spolja kao tanka nevidljiva membrana i unose u objekat puno sunčeve svetlosti.
Programski, kuća je podeljena na tri zone. Prva sadrži radionicu i atelje za dizajn keramike, kome se pristupa preko zasebnog ulaza ispod isturenog krova, a takođe i preko zajedničkog prostora.
Prva zona sadrži radionicu i atelje za dizajn keramike; Foto: Miran Kambič
Srce i glavna raskrsnica kuće
Sa svojim grnčarskim točkovima, pećima i puno prostora za stolove za vajanje, poliranje i ukrašavanje, radionica se otvara ka velikom atrijumu koji se može koristiti za tehnike paljenja na otvorenom, kao što su kao obvara ili raku.
Centralni stambeni prostor je srce i glavna raskrsnica kuće, do kog se dolazi preko glavnog ulaza, a poseduje veliku kuhinju sa prostranom trpezarijom i prostorom za sedenje.
Tokom letnjih meseci centralni prostor povećava svoju upotrebljivost tako što se dnevne aktivnosti prenose kroz velika klizna vrata na atrijum.
Dnevne aktivnosti prenose se kroz velika klizna vrata na atrijum; Foto: Miran Kambič
Unutrašnji životni prostori delom su obloženi toplim jasenom i hrastovim drvetom, dok drveni nameštaj i pucketanje kamina stvaraju atmosferu intimnosti
Spavaći deo kuće sadrži veliku spavaću sobu, dve manje sobe i dva kupatila. Prostor je koncipiran tako da omogući više programa i doživljaja i da kreira raznovrsnu atmosferu.
Zgradom i njenim enterijerom dominira neutralna paleta boja. Tektonska spoljašnjost sa svojom svilenkastom i glatkom betonskom fasadom i svetli teraco podovi dominiraju ispred dela kuće namenjenom za pravljenje skulptura, dok topao i intiman osećaj krova obloženog drvetom nagoveštava drugačiju atmosferu unutra.
Unutrašnji životni prostori delom su obloženi toplim jasenom i hrastovim drvetom, dok drveni nameštaj i pucketanje kamina stvaraju atmosferu intimnosti, uprkos neposrednoj blizini gradske vreve.
Pogledi iz kuće usmereni su ka unutra; Foto: Miran Kambič
Situacija
Osnova
Presek
Aksonometrija
Faktografija
arhitektonski biro: Arhitektura — kancelarija za urbanizam i arhitekturu
autori: Boštjan Gabrijelčič, Peter Gabrijelčič i Aleš Gabrijelčič
autorka umetničkih instalacija i svetla: Tanja Goršič, Novi objekti
lokacija i godina: Ljubljana, Slovenija, 2020.
foto: Miran Kambič
客服
消息
收藏
下载
最近























