查看完整案例

收藏

下载
Dom s loftom, Ostrava
Príklad rekonštrukcie podkrovia v historickom prostredí. Moderný prístup v koexistencii s pôvodnou figúrou objektu.
Autori:
Ing. arch. David Průša, Ing. arch. Alena Mazalová
Zastavaná plocha:
230 m2
Podlažná plocha:
1 108 m2
Obostavaný objem:
4 663 m3
Návrh:
2012 - 2012
Realizácia:
2012 - 2015
Adresa:
Masarykovo náměstí ,
Ostrava,
Česká republika
Neskoro secesný dom architekta Felixa Neumanna na Masarykovom námestí v Ostrave patrí medzi nehnuteľné kultúrne pamiatky. V rámci nedávno dokončenej komplexnej rekonštrukcie domu sa podarilo oživiť nevyužívané najvyššie podlažie. Pôvodná ozdobná fasáda bola zachovaná. Hlavnou platformou domu sa stal nový loftový byt na streche, ktorý využil starý zatuchnutý krov a nepreslnené piate podlažie. Sklenená fasáda loftu cez obe podlažia prepája exteriér Masarykovho námestia a domu. Vzniknutá vonkajšia terasa je tienená pevnými hliníkovými lamelami v rovine pôvodnej strechy.
Realizácia domu je datovaná okolo roku 1910. Bol vystavaný pre Sigmunda Rotha ako obytný a obchodný trojposchodový podpivničený dom na gotickej parcele, ako súčasť blokovej zástavby. Architektom návrhu je Felix Neumann, ktorý sa významne podieľal na prestavbe centra Ostravy na prelome 19. a 20. storočia. Nové trendy európskeho vkusu vtedajšej doby zaznamenával veľmi rýchlo a svojsky, preto bol vyhľadávaným staviteľom secesných, neobarokových a neorenesančných stavieb.
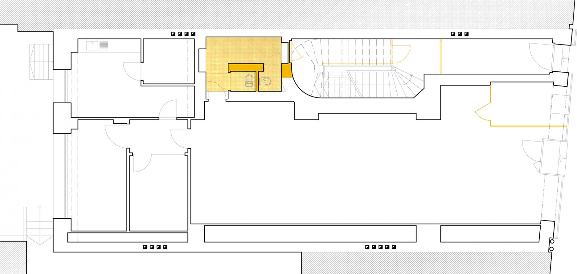
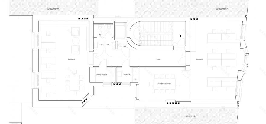
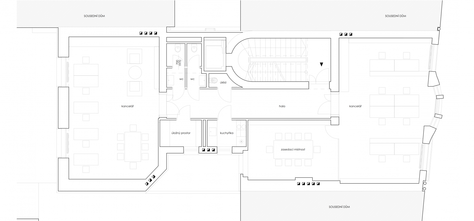
Modernizácia domu spočíva predovšetkým v kvalitnom vnútornom prostredí pri zachovaní princípu pôvodnej dispozície a rozšírení využiteľných plôch. Dom je doplnený o výťah obsluhujúci všetky podlažia na medzipodestách. Je umiestnený vo voľnom priestore svetlíka za schodiskom. Zvyšok svetlíka je využitý na rozšírenie sociálneho zázemia na jednotlivých poschodiach.
Po všetkých analýzach a rozboroch architekti vytvorili niekoľko alternatív, ako pojednať hmotu strechy tak, aby využili strešné priestory (pôjd). Cieľom bolo nájsť využitie pre 5. np a 6. np. v podobe kvalitného bývania z dôvodov sťahovania stálych obyvateľov z centra mesta. Dom sa podľa súčasných hygienických štandardov nedal v plnej miere využiť pre bývanie. Návrh spočíva vo vytvorení loftového bytu cez obe podlažia, ktorý má dostatok prirodzeného svetla. Dispozícia bytu vychádza z pôvodného riešenia podkrovného priestoru, ktorý mal vstup z centrálneho schodiska na 5. np. a bol prepojený vnútorným schodiskom na 6. np.
Pri zachovaní celej strechy v pôvodnej podobe by nebolo možné tieto priestory dlhodobo využiť a stali by sa tak mŕtvymi priestormi domu. Návrh citlivo zachováva obrys manzardovej strechy a nenarušuje celkový dojem vnímania tejto strechy z priestoru námestia. Aj napriek vloženiu zvislej zasklenej steny je zachovaný pôvodný obrys manzardy. Šikmé vonkajšie lamely potrebné pre tienenie (celá fasáda je na južnej strane) vytvárajú vertikálne členenie v smere pôvodnej strešnej roviny.
Tento zásah umožňuje plnohodnotné využitie a oživenie celého domu. Dochádza aj k oživeniu námestia novými priestormi na bývanie, ktoré vychádzajú z potrieb 21. storočia, v symbióze s existujúcou kultúrnou pamiatkou. Celý návrh je prínosom moderného spôsobu obnovy a využitia kultúrnych pamiatok a môže sa stať príkladom citlivého zaobchádzania s historicky významnými prvkami.
Ing. arch. David Průša
Ing. arch. Alena Mazalová
客服
消息
收藏
下载
最近





































