查看完整案例

收藏

下载
Showroom Byssine v Karlíně navrhli architekti Martin Petřík a Tomáš Kotrč ve spolupráci s výtvarnicí Norou Sopkovou
V Karlíně otevřel obchod s kosmetikou předních světových značek. Pečují o vaše tělo i o vkus.
Luxusní kosmetika se prodává v nablýskaných interiérech. Jeden takový vznikl v pražském Karlíně. Má v sobě ale i hru a ironii a scénografický přístup, potkávají se tu vintage kousky, ručně šité lustry i oddávací stůl z radnice.
Pražský Karlín již dávno není dělnickou čtvrtí. Tovární haly ustoupily kancelářím a komerci. Někdejší dělnický činžák vedle bývalé továrny ČKD se teď změnil v bytový dům s více než sto padesáti nájemními byty a živým obchodním parterem.
V jednom z těchto obchodů se skrývá pohlazení na duši pro každého milovníka péče o tělo. Mladá kosmetická značka Byssine zde totiž vystavuje a prodává kosmetiku v prostorách, o kterých by si nechal zdát i nejeden italský palác. „Nehledáme prvoplánový luxus a nechceme přejímat soudobé, často mondénní, trendy. Jde nám o vlastní charakter a kvalitní řemeslné zpracování,“ říkají autoři návrhu.
U zrodu návrhu interiéru stáli architekti Martin Petřík a Tomáš Kotrč a scénografka Nora Sopková, která scénografii propsala i do konceptu obchodu. Společně vytvořili kombinaci luxusních, řemeslně zpracovaných a vintage kousků. Kosmetické produkty exkluzivních kosmetických značek, které v Byssine prodávají, používají světové star Taylor Swift nebo Lady Gaga. Exkluzivní emulze a flakony by měl podtrhnout neobyčejný prostor dotažený do detailu, aby měl zákazník pocit, že se tu děje něco speciálního. A ten také dostane, když ho obklopí směs designu, umění a kosmetiky.
Závěsný kabinet odkazuje na lékarnickou tradici a produkty v něm se vyjímají na mosazných podsvícených policích
Dva prostory, dvě atmosféry
Přízemní prostor architekti rozdělili na dvě části. Vstup do té hlavní je přímo naproti nosnému betonovému sloupu. Architekti ho obložili petrolejově modrou textilií se vzorem. Necitlivě umístěný prvek díky tomu vtáhli do hry a člení jím prostor. Pocitově nás orientuje do středu místnosti, kde se pod ručně šitými papírovými lustry vyjímá zrestaurovaný oddací pult z jedné severočeské radnice. Závěsný kabinet na ose stolu odkazuje k lékárnické tradici. Na jeho zádech se blyští recyklované zlatě lakované MDF desky. Vedlejší horizontálně orientovaný regál je namořený do rudě červeného odstínu. Sokl a horní část regálu odděluje kamenná deska. Stejný dekor kamene má i umyvadlo, které lze použít i během prodeje.
Vedlejší část slouží zejména ke konzultacím. Od hlavního prostoru ji odděluje mosazná mříž. Dominantním prvkem je šedý stůl organického tvaru, který vyniká na pozadí na míru vyrobené skříňové stěny. V nice zelené skříně našel místo obraz od malíře Václava Hendrycha, který odkazuje na propojení duševní a fyzické krásy člověka.
Zadní místnost se pyšní obrazem od restaurátora a malíře Václava Hendrycha. Připomíná díla starých mistrů a odkazuje na propojení duševní a fyzické krásy člověka
Další solitérní kusy především sedacího nábytku v obchodě jsou repasované kusy ze zahraničí. Množství originálních materiálově rozdílných prvků zklidňuje jednotící cementová stěrka na podlaze v pískovo-šedé barvě.
Architektům a designérce se povedlo vytvořit jedinečné kulisy kosmetickým produktům. Dobře zkombinované vintage kousky s novým na míru vyrobeným nábytkem nabízí jedinečný zážitek z nákupu.
Autoři: Martin Petřík, Tomáš Kotrč, Nora Sopková
Země: Česká republika
Město: Praha 8 - Karlín
Adresa: Pernerova 136/45, Praha 8 - Karlín
Realizace: 2023
Zastavěná plocha: 46 m²
Showroom Byssine v Karlíně navrhli architekti Martin Petřík a Tomáš Kotrč ve spolupráci s výtvarnicí Norou Sopkovou
Showroom kosmetiky v Karlíně, P E T R I K + K O T R C & Nora Sopková: Výrazný prvek obchodu tvoří ručně šité papírové lustry
Showroom kosmetiky v Karlíně, P E T R I K + K O T R C & Nora Sopková: Podlaha v pískovo-šedé barvě a světle zelená výmalba působí klidným dojmem a nechávají vyniknout solitérní kusy nábytku
Showroom kosmetiky v Karlíně, P E T R I K + K O T R C & Nora Sopková: Dominantním prvkem obchodu je oddací pult z radnice v severních Čechách. Jedná se o dýhovaný vintage kousek s mosaznými doplňky
Showroom kosmetiky v Karlíně, P E T R I K + K O T R C & Nora Sopková: Horizontálně orientovaný regál má sokl a stojny jednotlivých polic namořeny do rudě červeného odstínu
Showroom kosmetiky v Karlíně, P E T R I K + K O T R C & Nora Sopková: Horizontálně orientovaný regál má sokl a stojny jednotlivých polic namořeny do rudě červeného odstínu
Showroom kosmetiky v Karlíně, P E T R I K + K O T R C & Nora Sopková: Závěsný kabinet odkazuje na lékárnickou tradici a produkty v něm se vyjímají na mosazných podsvícených policích
Showroom kosmetiky v Karlíně, P E T R I K + K O T R C & Nora Sopková: Čelo závěsného kabinetu na ose stolu tvoří recyklované a následně lakované a zlacené MDF desky
Showroom kosmetiky v Karlíně, P E T R I K + K O T R C & Nora Sopková: Čelo závěsného kabinetu na ose stolu tvoří recyklované a následně lakované a zlacené MDF desky
Showroom kosmetiky v Karlíně, P E T R I K + K O T R C & Nora Sopková: Kamenné umyvadlo schované za sloupem slouží k omývání během prodeje
Showroom kosmetiky v Karlíně, P E T R I K + K O T R C & Nora Sopková: Kamenné umyvadlo schované za sloupem slouží k omývání během prodeje
Showroom kosmetiky v Karlíně, P E T R I K + K O T R C & Nora Sopková: Hlavní a vedlejší část prodejny autoři rozdělili posuvnou mosaznou mříží
Showroom kosmetiky v Karlíně, P E T R I K + K O T R C & Nora Sopková: Hlavní a vedlejší část prodejny autoři rozdělili posuvnou mosaznou mříží
Showroom kosmetiky v Karlíně, P E T R I K + K O T R C & Nora Sopková: Zadní místnost se pyšní obrazem od restaurátora a malíře Václava Hendrycha. Připomíná díla starých mistrů a odkazuje na propojení duševní a fyzické krásy člověka
Showroom kosmetiky v Karlíně, P E T R I K + K O T R C & Nora Sopková: Hlavní a vedlejší část prodejny autoři rozdělili posuvnou mosaznou mříží
Showroom kosmetiky v Karlíně, P E T R I K + K O T R C & Nora Sopková: Výrazný prvek obchodu tvoří ručně šité papírové lustry
Showroom kosmetiky v Karlíně, P E T R I K + K O T R C & Nora Sopková: Prodejnu kosmetiky Byssine otevřela letos Lenka Šťastná, která se sama intenzivně zajímá o téma rituálů péče o lidské tělo i duši
Showroom kosmetiky v Karlíně, P E T R I K + K O T R C & Nora Sopková: Prodejnu kosmetiky Byssine otevřela letos Lenka Šťastná, která se sama intenzivně zajímá o téma rituálů péče o lidské tělo i duši
Půdorys
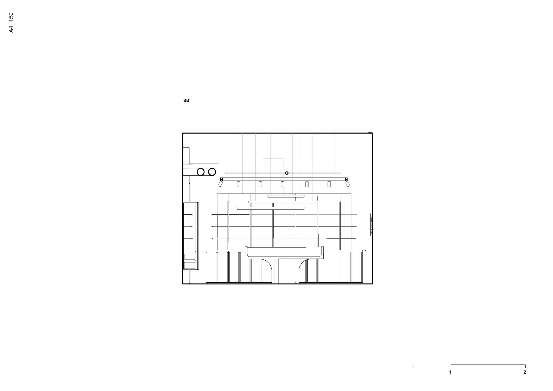
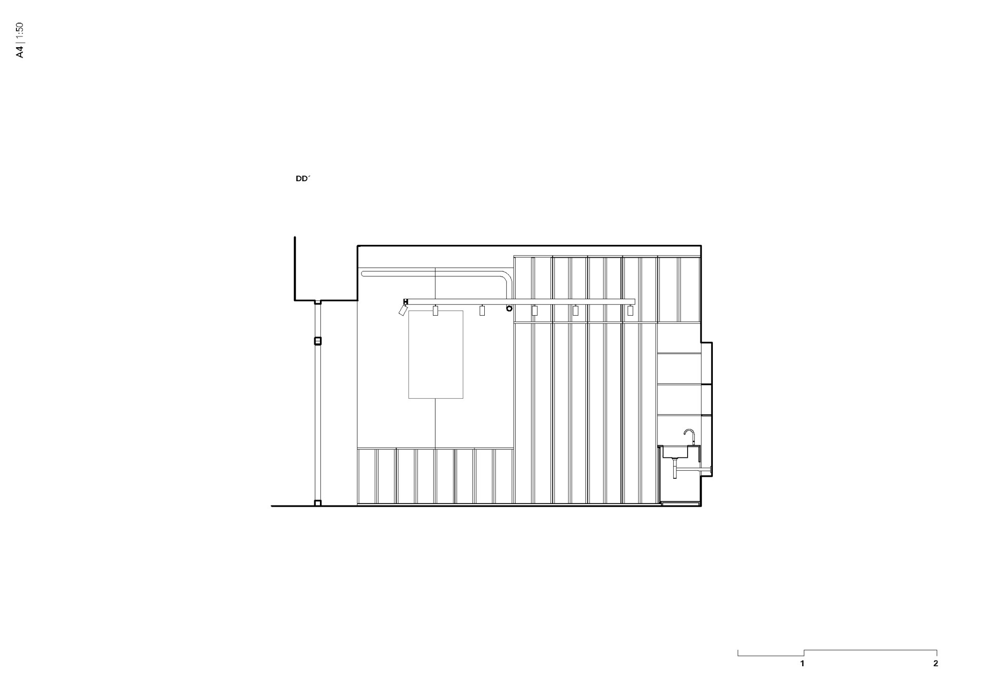
Pohled
Pohled
Pohled
Pohled
Showroom Byssine v Karlíně navrhli architekti Martin Petřík a Tomáš Kotrč ve spolupráci s výtvarnicí Norou Sopkovou
Showroom kosmetiky v Karlíně, P E T R I K + K O T R C & Nora Sopková: Výrazný prvek obchodu tvoří ručně šité papírové lustry
Showroom kosmetiky v Karlíně, P E T R I K + K O T R C & Nora Sopková: Podlaha v pískovo-šedé barvě a světle zelená výmalba působí klidným dojmem a nechávají vyniknout solitérní kusy nábytku
Showroom kosmetiky v Karlíně, P E T R I K + K O T R C & Nora Sopková: Dominantním prvkem obchodu je oddací pult z radnice v severních Čechách. Jedná se o dýhovaný vintage kousek s mosaznými doplňky
Showroom kosmetiky v Karlíně, P E T R I K + K O T R C & Nora Sopková: Horizontálně orientovaný regál má sokl a stojny jednotlivých polic namořeny do rudě červeného odstínu
Showroom kosmetiky v Karlíně, P E T R I K + K O T R C & Nora Sopková: Horizontálně orientovaný regál má sokl a stojny jednotlivých polic namořeny do rudě červeného odstínu
Showroom kosmetiky v Karlíně, P E T R I K + K O T R C & Nora Sopková: Závěsný kabinet odkazuje na lékárnickou tradici a produkty v něm se vyjímají na mosazných podsvícených policích
Showroom kosmetiky v Karlíně, P E T R I K + K O T R C & Nora Sopková: Čelo závěsného kabinetu na ose stolu tvoří recyklované a následně lakované a zlacené MDF desky
Showroom kosmetiky v Karlíně, P E T R I K + K O T R C & Nora Sopková: Čelo závěsného kabinetu na ose stolu tvoří recyklované a následně lakované a zlacené MDF desky
Showroom kosmetiky v Karlíně, P E T R I K + K O T R C & Nora Sopková: Kamenné umyvadlo schované za sloupem slouží k omývání během prodeje
Showroom kosmetiky v Karlíně, P E T R I K + K O T R C & Nora Sopková: Kamenné umyvadlo schované za sloupem slouží k omývání během prodeje
Showroom kosmetiky v Karlíně, P E T R I K + K O T R C & Nora Sopková: Hlavní a vedlejší část prodejny autoři rozdělili posuvnou mosaznou mříží
Showroom kosmetiky v Karlíně, P E T R I K + K O T R C & Nora Sopková: Hlavní a vedlejší část prodejny autoři rozdělili posuvnou mosaznou mříží
Showroom kosmetiky v Karlíně, P E T R I K + K O T R C & Nora Sopková: Zadní místnost se pyšní obrazem od restaurátora a malíře Václava Hendrycha. Připomíná díla starých mistrů a odkazuje na propojení duševní a fyzické krásy člověka
Showroom kosmetiky v Karlíně, P E T R I K + K O T R C & Nora Sopková: Výrazný prvek obchodu tvoří ručně šité papírové lustry
Showroom kosmetiky v Karlíně, P E T R I K + K O T R C & Nora Sopková: Prodejnu kosmetiky Byssine otevřela letos Lenka Šťastná, která se sama intenzivně zajímá o téma rituálů péče o lidské tělo i duši
Showroom kosmetiky v Karlíně, P E T R I K + K O T R C & Nora Sopková: Prodejnu kosmetiky Byssine otevřela letos Lenka Šťastná, která se sama intenzivně zajímá o téma rituálů péče o lidské tělo i duši
Půdorys
Pohled
Pohled
Pohled
Pohled
客服
消息
收藏
下载
最近























