查看完整案例

收藏

下载
上海當代藝術館/劉宇揚建築事務所
上海當代藝術館/劉宇揚建築事務所
這是一個如何把城市建築的「灰姑娘」轉變為當代藝術「公主」的故事。在這個故事裡,建築設計者的角色更像是一名建築「化妝師」。原本的建築體由於政策考量不好拆。但是,每個參與的人都希望看到一座被重新賦予生命力的新建築。
上海當代藝術館,不想要一個「宣言式」的建築。「當代藝術館」的設計並不想要一個「宣言式」的建築,而更多的追求是其建築語彙的「雙重性」(duality)。它是一座介於現有和新造的建築。首先,在原入口和三樓加建的部分,新的設計加入了數個比較突出的幾何玻璃體,來「融解」舊玻璃房原有的外形。在原水泥房的部分,外牆以斜著排列的「蒙古黑」花崗岩配合了同樣斜列的不銹鋼窗框,體現出另一種含蓄卻與眾不同的外觀。這結果既不是僅僅的裝修,也不完全是單純的加建,而是在保留原結構體的條件下做徹底的改頭換面。
入口幾何玻璃體
新「藝術館」的功能必須兼顧藝術展覽空間「所謂的白盒子」的要求,又欲求體現其建築本質上的意義─無論是建構、空間、結構、材料等方面。其中,斜坡體從不同切面穿過有如樹林般的混凝土柱,提供了參觀者從不同定點與高度觀看大型藝術裝置的可能性。
一樓平面圖
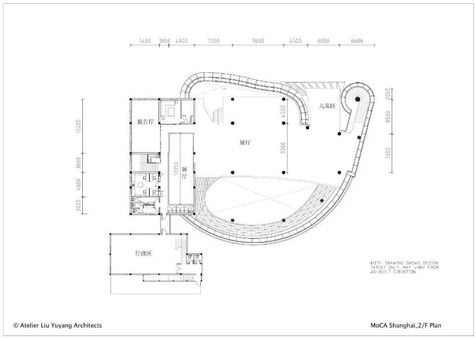
二樓平面圖
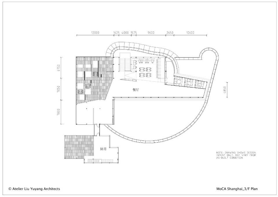
三樓平面圖
新「藝術館」是一座介於園林和都市的建築。由於它特殊的地理位置,人們先穿越了這綠意盎然的人民裡的花草。
新「藝術館」是一座介於隱喻與現實的建築。說它是一顆黑鑽石也好、一架隱形轟炸機也好、或者是解構主義遇上了簡約主義也好。然而,更有意思的可能是這棟建築所呈現的現實景象。事實上人們將可看到的是個多重現實景象:花枝招展的藝術品、火熱興建中的城市、偷得浮生閒的花園。當這棟建築已成為這個城市的一部分的時候,藝術如何走入生活,就不僅限於狹義的硬體空間或「展覽」空間。而更多的是這個機構所傳達給這個城市的訊息、所提供的活動、所創造的文化。這棟建築所能提供的,除了遮風避雨外, 就是這些事件的可能性。
剖面圖
剖面圖
作品資料
作品名稱:上海當代藝術館
作品位置:上海市人民公園內
作品類型:美術館、文化設施
業 主:龔明光基金會、上海當代藝術館
設計單位:劉宇揚建築事務所
主持建築師:劉宇揚
設計團隊:劉宇揚、余振明、週天朗、蔡暉
建設單位:龔明光基金會、上海當代藝術館
結構顧問:Ronan Collins
機電顧問:Perry Lee
結構性質:鋼結構、磚混結構
基地面積:1800㎡
建築面積:3900㎡
設計施工:2004年
完工時間:2005年
攝 影:Jeremy San
關於「劉宇揚建築事務所」
劉宇揚1969年出生於台灣台東,於美國加州大學獲都市研究學士後,又赴美國哈佛大學攻讀建築碩士。求學期間,劉宇揚師從荷蘭建築家庫哈斯,完成中國珠江三角洲城市化的研究。他曾任教於香港中文大學,並受邀擔任2007-08年深圳 - 香港雙城雙年展策展人和2011年成都雙年展建築策展人。
劉宇揚建築事務所成立於香港和上海,由著名青年建築師劉宇揚先生主持,近年來研究及實踐的方向側重於城市的微觀生態性、建築的在地文化性和節能環保性措施。一直以來在工作中追求真誠的、有意義的、及可持續的建築與環境。立足於中國並積極面對亞洲與世界,事務所的理念是持冷靜的態度面對未來的城鄉發展,以系統的方式解析複雜的社會需求,以實驗的精神實踐永續的社區營造。
事務所位於上海,創始初期完成了包括上海當代藝術館、上海南京路行人服務亭、青浦環境監測站等一系列具有前瞻意義和研究性質的公建項目。事務所至今堅持出品高質量的公共與私人委託項目,近期完成的包括上海國際汽車城研發港,廣西雲廬酒店,上海江橋濱江安特公園和上海同濟實驗小學等多元類型作品。做為一家不依託於任何體制與機構的獨立事務所,擁有長期、穩定的技術顧問、國際化的合作夥伴,並擅長於跨專業的全過程設計協作。
客服
消息
收藏
下载
最近



















