查看完整案例


收藏

下载
© Takumi Ota
(小田隆美)
架构师提供的文本描述。Tadafusa位于有着300多年历史的铁匠小镇Tsubame-Sanjo,是一家受人尊敬的手工锻造刀制造商。
Text description provided by the architects. Located in Tsubame-Sanjo, a blacksmithing town with over 300 years of history, Tadafusa is an esteemed manufacturer of hand-forged knives.
© Takumi Ota
(小田隆美)
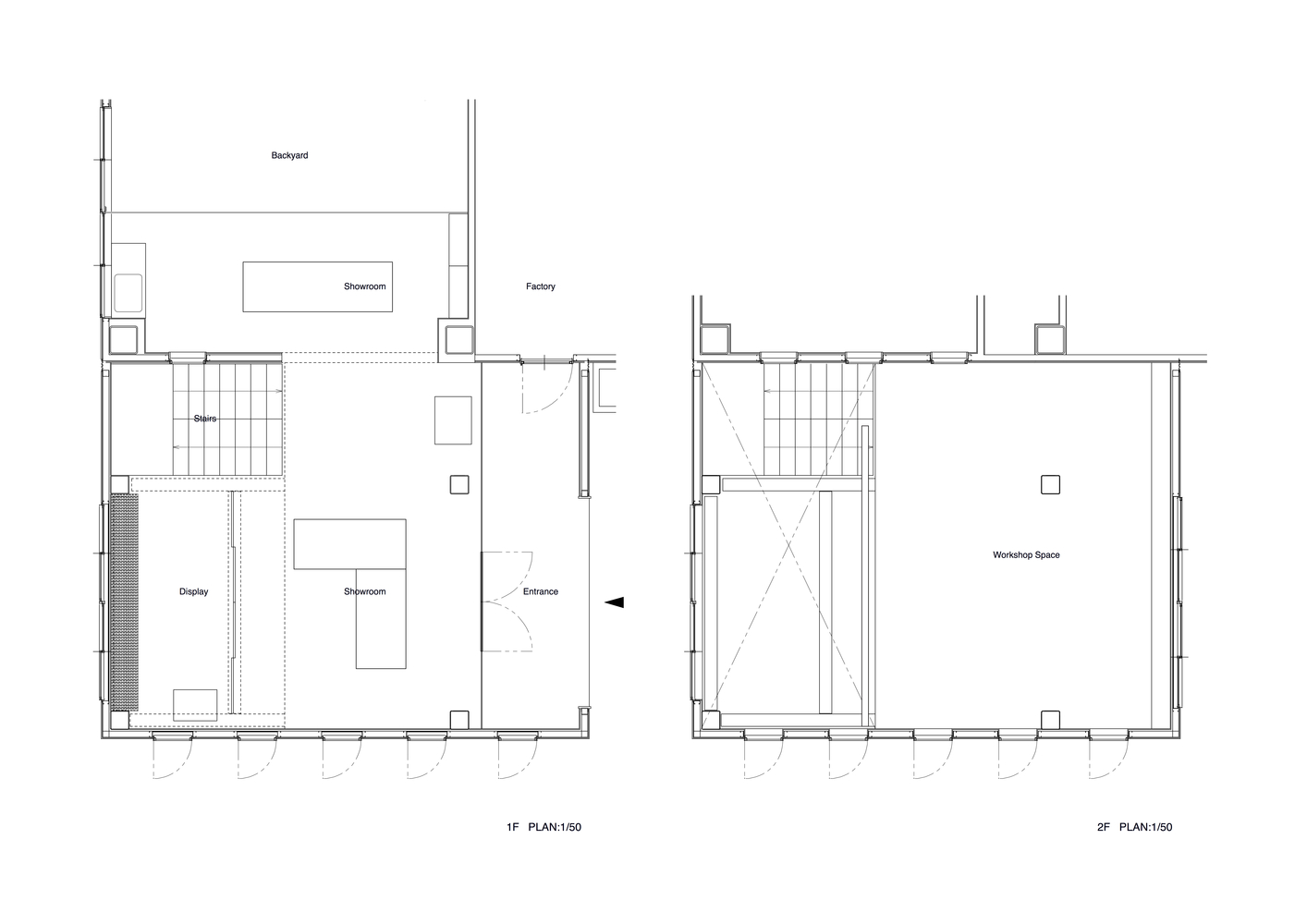
剪贴板店的概念也是一条深深编织在商店概念中的线。虽然Tsubame-Sanjo地区以铁匠镇而闻名,但刀子并不仅仅由刀刃组成。Tadafusa公司开发的专用抗菌碳化方法主要体现在对云杉的使用上:碳化云杉对刀柄和刨花板具有独特的抗菌性能。正是从这种材料,显示器和中央桌子被构造,并在此基础上,塔达福萨的产品可以体验。
The notion of a cutting board shop is also a thread woven deeply into the store concept. While Tsubame-Sanjo area is famous for being a blacksmithing town, knives do not consist solely of blades. The specialized antibacterial carbonization method Tadafusa has developed is represented in the design's focus on the use of spruce: carbonized spruce lends exceptional antibacterial qualities to knife handles and cutting boards. It is from this material that the displays and the central table are constructed, and upon which, Tadafusa’s products can be experienced.
© Takumi Ota
(小田隆美)
© Takumi Ota
(小田隆美)
一开始看起来很简单和简单的是行为设计中的一个精练的练习。重新设想了标准的刀具展示柜,改变了客户-刀的界面.一般认为是浅深度上锁的箱子,里面竖直展示了大量的工具,给了更多的人情味,滑动的玻璃门还保留着,但“箱子”本身就意味着要进入,而不仅仅是打开。减薄的各种刀具同时更有吸引力和用户友好性,水平方向更直观。由当地工匠定制的、设计精巧、易于调整的联锁货架的展示系统,似乎提供了无穷无尽的可能性。上锁的玻璃盒子最常代表的安全地带,已被重新命名为崇敬区。一个提高的门槛迫使游客在进入该地区时进入更高的意识状态,模仿那些在神社和寺庙中发现的人。
What appears quite simple and plain at first is actually a refined exercise in behavior design. The standard knife display case was re-envisioned, transforming the customer-knife interface. Commonly seen as a locked case of shallow depth with a large number of implements displayed vertically within has been given a more human scale, the sliding glass doors remain, but the “case” itself is meant to be entered, not merely opened. The thinned-out assortment of knives is at once both more attractive and user friendly, the horizontal orientation more intuitive. The deftly crafted display system of easily adjusted interlocking shelves, custom built by local artisans, offers seemingly endless possibilities. The security zone most often represented by the locked glass case has been rebranded as a zone of reverence. A raised threshold forces visitors into a heighted state of awareness as they enter the area, mimicking those found in shrines and temples.
© Takumi Ota
(小田隆美)
© Takumi Ota
(小田隆美)
在工厂附近,商店把工厂外部的一部分作为内墙。Tadafusa的商店将危险和精确的概念与自然元素完美地融合在一起,将日常使用的刀子提升为行业复兴的优雅展示。
Adjacent the factory, the shop takes as an interior wall a portion of one from the factory's exterior. Tadafusa’s shop seamlessly blends notions of danger and precision together with natural elements, elevating the knife of daily use into an elegant showcase for the industry’s resurgence.
© Takumi Ota
(小田隆美)
客服
消息
收藏
下载
最近


















