查看完整案例

收藏

下载
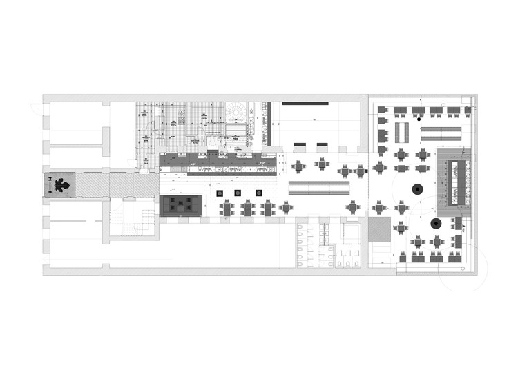
架构师提供的文本描述。在过去的十年里,布达佩斯第七区的租房区建立了一个夜生活小区,这些房屋曾经被清空。无论是破坏酒吧还是假破产酒吧,在酒水特色菜、粉刷砖和旧家具的氛围中,没有人对布达佩斯东正教犹太社区的中心空间有什么好说的。
Text description provided by the architects. In the last decade, a nightlife quarter has been established in the tenement houses of Budapest’s 7th district that used to be emptied out. Whether ruin pubs or pseudo-ruin pubs opened, in the atmosphere of drink specials, painted brick and old furniture, no one had anything to say about the space that used to be the center of the Budapest’s orthodox Jewish community.
马泽尔·托夫(MazelTov)扭转了这一局面,该公司试图为该地区的游客开辟一个庭院,通过中东烹饪来解释其在第7区的位置和功能。
This was turned around by Mazel Tov, which attempts to open up a courtyard for the visitors of the quarter that interprets its location and function in the 7th district through Middle-Eastern cooking.
© Dániel Dömölky
(Dániel D m LKY)
马泽尔·托夫是一个开放的地方,是一个美食文化的场所,在那里,中东的食物可以本着接纳和团结的精神继续其文化攻势。熟食送到一个长橡木柜台上,从沙克苏卡到鹰嘴豆泥到烤肉串都有各种各样的选择。
Mazel Tov is an open-minded place, a gastro-cultural venue where Middle-Eastern food can continue its cultural assault in the spirit of acceptance and togetherness. The cooked food arrives onto a long oak wood counter, and a wide selection is available from shaksuka to hummus to kebab.
© Dániel Dömölky
(Dániel D m LKY)
柜台的前侧覆盖着世纪之交摩洛哥风格的水泥盘子,这是布达佩斯楼梯间的著名建筑。同样的资产阶级服饰美学也出现在20世纪30年代继承下来的白色糖果椅上。在烹饪方面,它是欧洲犹太传统和东方的伊比利亚传统的会议。
The front side of the counter is covered in turn-of-the-century, Moroccan style cement plates, well-known from Budapest’s stairwells. The same aesthetics of bourgeois décor is present in the white confectionary chairs, inherited from the 1930s. In cooking, it is the meeting of the European Jewish heritage and the oriental, Iberian Sephardic tradition.
© Dániel Dömölky
(Dániel D m LKY)
Architects Studio Arkitekter, 81 font
Location Budapest, Akácfa u. 47, 1072 Hungary
Category Interiors Architecture
Architects in Charge Ádám Bajor, Péter Szendrő
Architects in charge Viktor Csap, Saághy Péter
Graphic Design Gergely Szőke
Project Year 2014
Photographs Dániel Dömölky
客服
消息
收藏
下载
最近































