查看完整案例

收藏

下载
在地的多元活動據點,廣東吳陽鎮文化站:從展覽到市集,透過「登台望海」體驗啟動社區活力
吳陽文化站:千年古鎮的文化新地標
「吳陽鎮文化站」位於中國廣東省南邊湛江地區的吳陽鎮,這座鑒江出海口旁的濱海小鎮擁有超過千年的縣治歷史,文化底蘊深厚,人口十多萬。為了系統性地展示吳陽鎮豐富的歷史文化遺產,並回應鄉村振興的核心議題——重塑地方文化認同,當地政府在鎮府院內北側劃撥了一塊基地,計畫興建一座多功能文化場館。
這座文化設施涵蓋歷史文化展廳、臨時展館、會議室、圖書室等多種功能,成為吳陽鎮文化復興的重要樞紐。基地形狀不規則,西側與北側緊鄰村界,東側則連接小鎮的主幹道吳陽一街,地理位置優越,便於居民與遊客造訪。
建築設計與自然環境的巧妙呼應
建築設計採用了雙向單斜屋頂的形態,兩片斜屋頂在平面上形成16度的夾角,分別順應東西邊界的走向,展現出與自然環境的高度協調。機能空間沿著村界緊湊排列,形成L形配置,不僅釋放了基地空間,還創造出一條直通海岸的天然「風巷」,讓風能有效地穿梭其間,適度地調節微氣候。
各個機能單元錯落有致地分佈在同一屋簷下,透過層高變化與半室外連廊有機串聯,使得穿堂而過的海風在簷下流轉,達到「開軒納微涼」的自然降溫效果。這種設計不僅提升了建築的實用性,也讓文化站成為一座與城鎮紋理相融共生的建築典範。
屋頂露台
化整為零的設計策略:氣候回應與空間對話的智慧
「化整為零」的設計策略,不僅回應了當地的氣候特徵,更巧妙地消解了建築量體可能帶來的「機構感」,使文化站與周邊自建房的尺度形成自然對話。各功能房之間的聯繫,均在大屋頂下的半室外空間中完成,參觀者的體驗不斷在室內與室外、當下的日常與歷史記憶之間轉換,營造出一種時空交錯的氛圍。透過細微的層高變化,設計團隊塑造出「登台望海」的立體漫遊體驗,讓人在行走間感受到空間的層次與深度。蜿蜒的步道在視覺上串聯起自建房群落與南城門遺址,進一步強化了場所的歷史縱深,讓過去與現在在此交會。
各個機能單元錯落有致地分佈在同一屋簷下,透過層高變化與半室外連廊有機串聯,使得穿堂而過的海風在簷下流轉,達到「開軒納微涼」的自然降溫效果
鳥瞰吳陽鎮文化站,兼具活動中心與文化設施的功能,與在地城鎮紋理相融共生
空間原型重構:文化記憶的當代詮釋
建築師透過空間原型的重構,傳遞出深厚的文化記憶。壓低的主街側簷口,形成廟宇門廊的意象,逐級升高的台階與抬升的屋面,則呼應了傳統廟宇的空間情緒處理手法,讓人彷彿置身於歷史的長河中。
鋼結構 屋頂與混凝土主體的分離設計,使結構構件得以清晰表達,隱喻了祠堂木構體系的傳統工藝。入口處的照壁鑲嵌了836塊明代古城磚,下方正是古城牆的舊址,建築師以「考古展陳」的方式揭示基地的歷史層積,讓每一塊磚都成為歷史的見證。
建築師通過空間原型重構傳遞文化記憶:壓低的主街側簷口形成廟宇門廊意象,逐級升高的台階與抬升的屋面,則呼應廟宇的空間情緒處理手法
多層次的半戶外空間,讓社區居民得以逗留、互動
在地材料的運用:經濟性與環境融合的雙重實踐
建築大量採用紅磚、洗米石、瓷磚、鍍鋅鋼板等當地常見材料,實現了與周邊環境的自然融合,展現出對在地文化的尊重與延續。經濟性策略貫穿整個設計過程:吊頂採用的壓型鍍鋅鋼板,同時作為屋頂施工介面,節省了高空鷹架的成本;屋面青石板瓦則取自景觀工程的剩餘材料,讓資源得以充分再利用。
這些「低技」的營造方式,除了延續在地民居紋理,更塑造出當代鄉村的公共性,讓文化站成為社區中充滿活力的「文化驛站」,甚至就像一座社區活動中心,可容納市集、茶敘、展覽等多元活動,啟動場所的日常活力,真正實現了「因地制宜」的設計理念。
吳陽鎮文化站的清水混凝土與磚牆、木窗,結合熱帶植物,形成有機錯落的景致。吳陽鎮文化站的清水混凝土與磚牆、木窗,結合熱帶植物,形成有機錯落的景致。
展覽空間擁有充分的自然採光
展覽空間擁有充分的自然採光
展覽空間擁有充分的自然採光
入口處的照壁鑲嵌了836塊明代古城磚,下方正是古城牆的舊址,建築師以「考古展陳」的方式揭示基地的歷史層積,讓每一塊磚都成為歷史的見證
入口處的照壁鑲嵌了836塊明代古城磚,下方正是古城牆的舊址,建築師以「考古展陳」的方式揭示基地的歷史層積,讓每一塊磚都成為歷史的見證
建築採用紅磚、洗米石、瓷磚、鍍鋅鋼板等當地常見材料,實現與周邊環境的自然融合
建築圖
基地位置圖 Site Plan
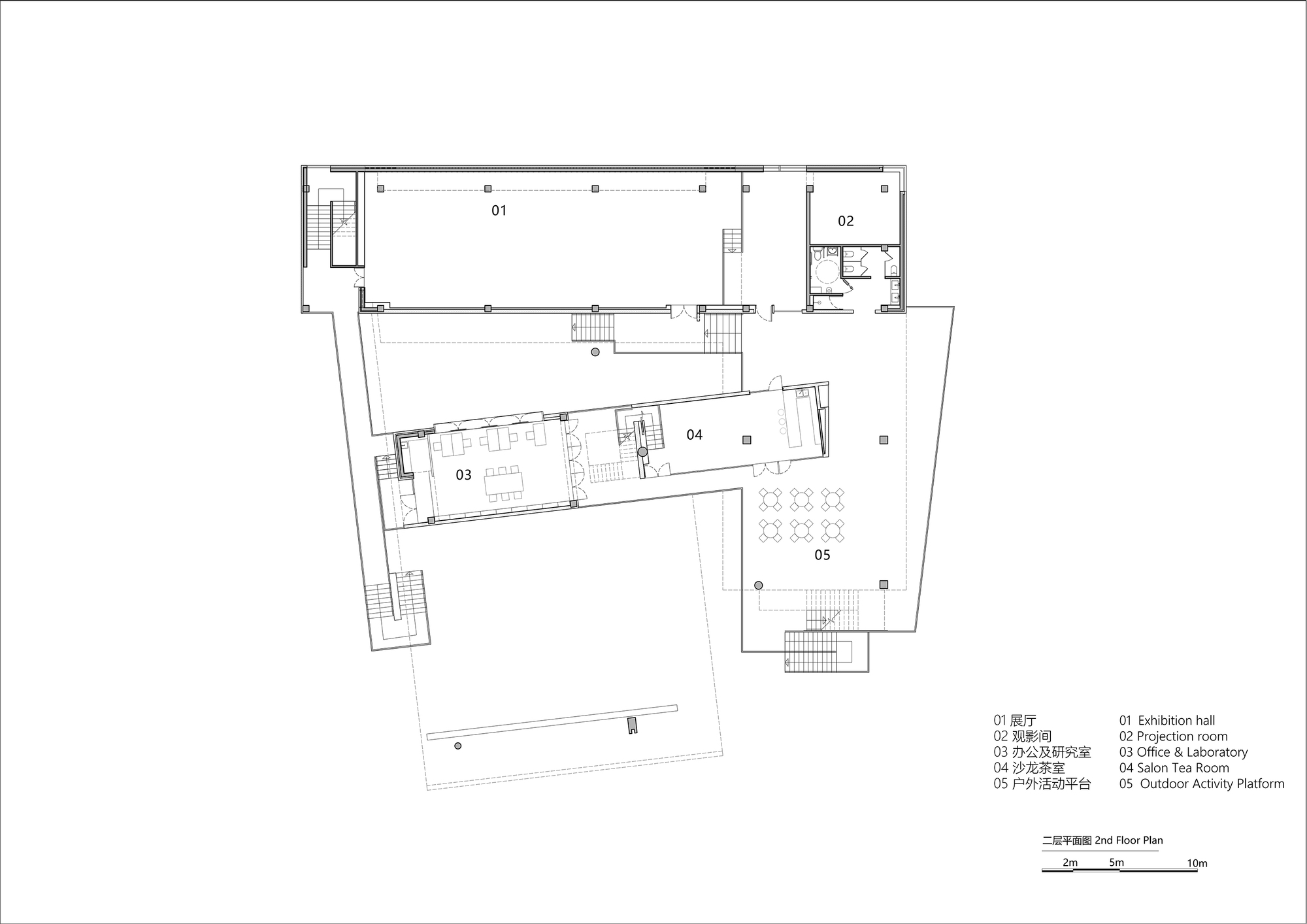
一層平面圖 Ground Floor Plan
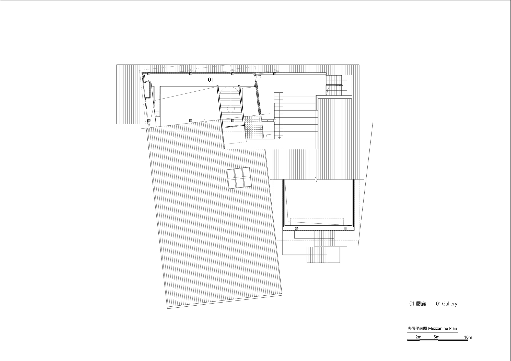
展廊平面圖
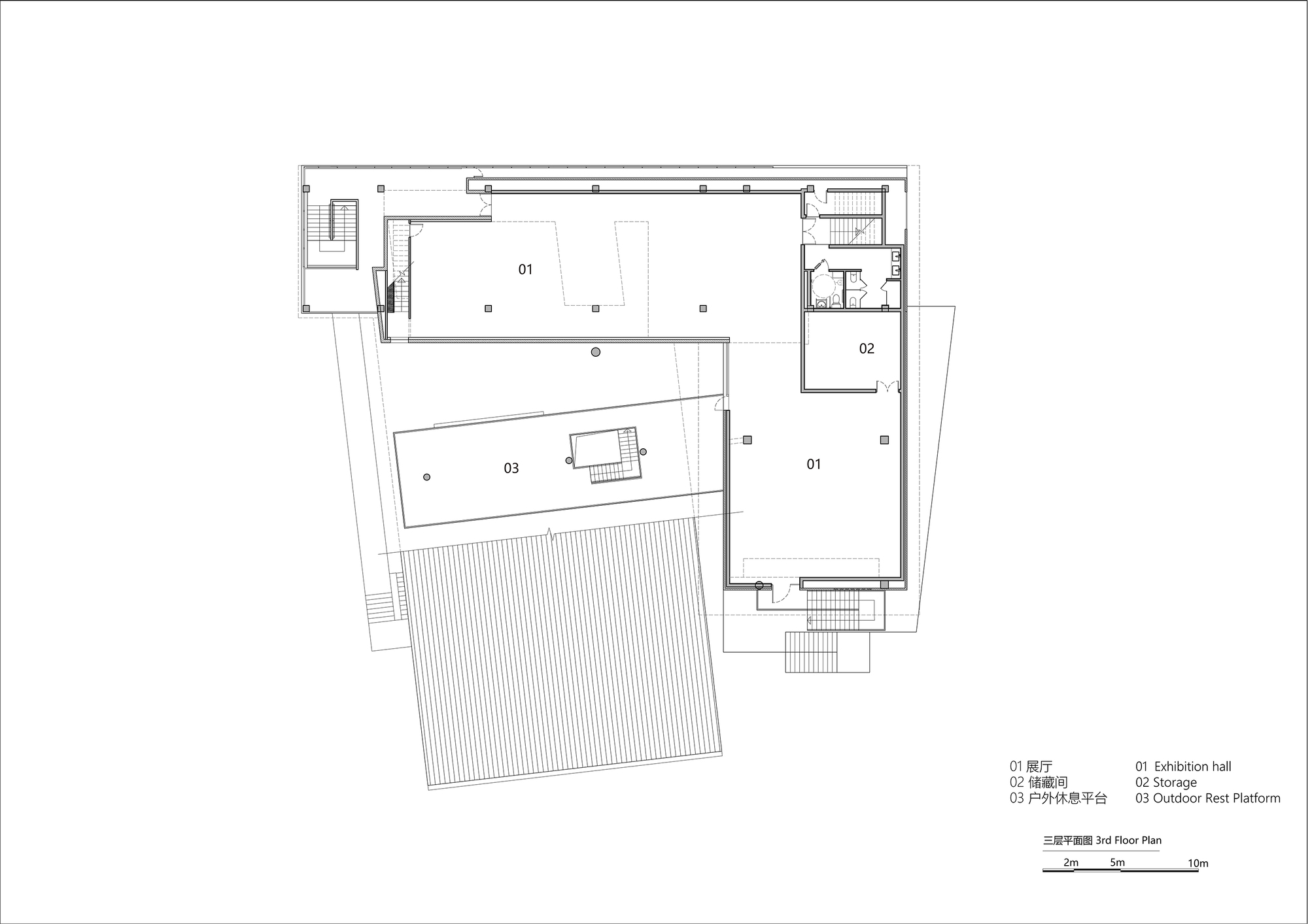
三層平面圖 Plan
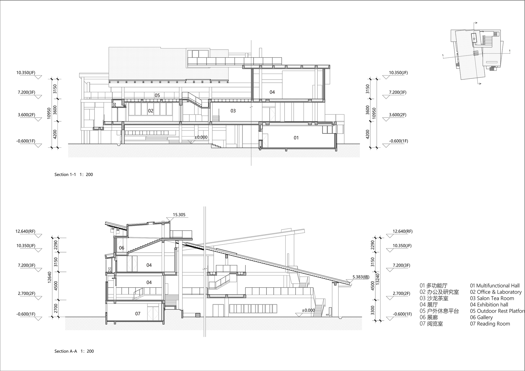
屋頂大樣剖面圖 Detailed Section
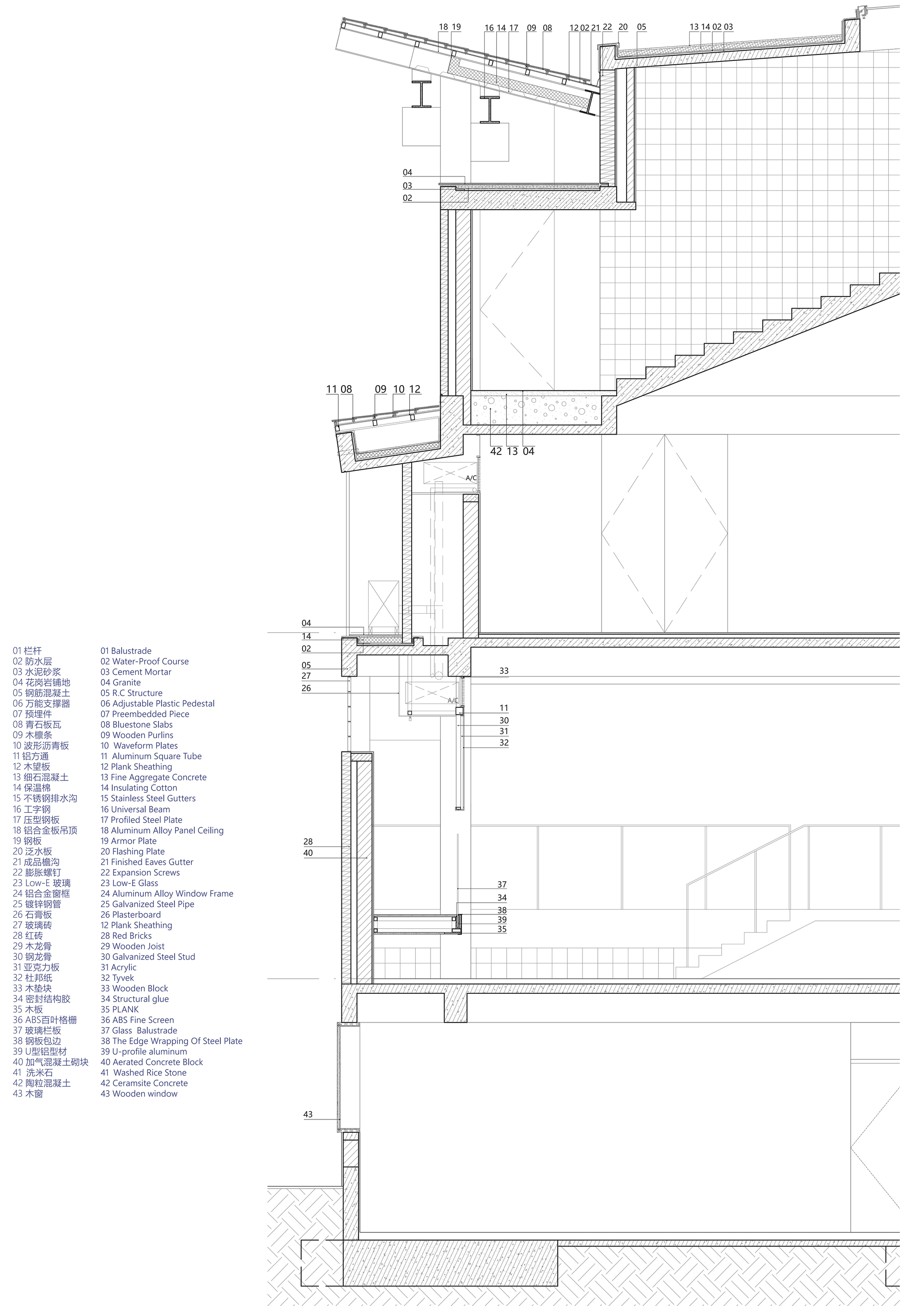
外牆大樣剖面圖 Detailed Section
作品資訊
作品名稱:吳陽文化站,屋頂望海,簷下有風
作品位置:中國廣東省湛江市
作品類型:文化設施、公共建築、展覽空間、活動中心、中國建築、中國建築師
業主:吳川市吳陽鎮人民政府
設計單位:WAU建築事務所
攝影:吳嗣銘
主持建築師:吳林壽,趙向瑩
設計團隊:張瑋瑩、羅倩萍、易成靜、文可、林顯東
結構設計:陳招智
景觀設計:鄭亞龍
視覺傳達:huangyangdesign
展陳設計:WAU建築事務所
照明設計:深圳市一諾照明設計顧問有限公司
客服
消息
收藏
下载
最近












































