查看完整案例

收藏

下载
Brought to book: the Paju Book City story
The reality of Paju Book City today is far from the architectural utopia promised by ARU’s Youlhwadang Book Hall nearly a decade ago
It is usually easy to reach a consensus on what makes a contemporary building successful, using familiar Renaissance principles of composition, materiality and structure. Yet in the case of the Youlhwadang Book Hall by Architectural Research Unit (ARU), headed by Florian Beigel and Philip Christou, such an evaluation system does not apply.
In the spirit of Marvin Trachtenberg’s book
Building in Time
, the Book Hall flirts with a ‘pre-Albertian’ design attitude. Trachtenberg compellingly illustrates how the concept of architecture shifted from a collective endeavour towards an individual act during the Renaissance. This shift occurred in parallel with a growing understanding of mortality that transcended notions of medieval existence. Essentially, the contemporary figure of the starchitect was born in the 15th century. Capitalism simply gave them wings.
The Youlhwadang Book Hall is one of three buildings Florian Beigel and Philip Christou have designed in Paju Book City. Photograph: Jonathan Lovekin
A key image in the work of ARU, and one especially relevant to the Book Hall project, is the 15th-century painting by Giovanni Mansueti,
Miracle of the Relic of the Holy Cross in Campo San Lio
. In this late medieval depiction of a Venetian
campo
, there is a Giotto-like strangeness of blurring scales. Oversized figures make the outdoor space feel like a large, public room adorned with windows from which more oversized characters emerge. The exaggerated scale of the spectators draws them from their interiors out into the external courtyard.
The front elevation of the Youlhwadang Book Hall learns from the Venetian campo depicted in Giovanni Mansueti’s Miracle of the Relic of the Holy Cross in Campo San Lio, c1494
For Beigel and Christou, this picture embodies their aspiration for ‘architecture as city’, in which notions of interior and exterior become relative. Despite the liveliness of the space, formal coherence is maintained through ornament, material and colour. Mansueti’s medieval
campo
epitomises the heyday of urban civility, an era in which there was no conflict between architecture and the city, only mutual interest.
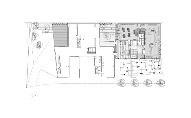
The Book Hall embraces this continuity between outside and inside. The entire building feels like a cast building model, with both the outer and inner skins products of the same formwork. Moulding is reintroduced as a means of connecting the language of the interior with the facade and also as a way of relating structural elements to furniture.
The Youlhwadang Book Hall (right) connects to the original Youlhwadang Publishing House designed by ARU in 2003 (left)
The ambition to design a building as a progression of figures and scales is extremely rare these days. A traditionally trained architect would consider such an approach natural, but in the current era this is no longer the case. Yet the Book Hall, part of the ongoing Paju Book City development, can be read as a sequence of squares from the street inwards. The front courtyard is very concerned about making a public figure, as is the main hall. The space features a loggia overlooking the reading space. Its lower parapet absorbs the staircase. From the loggia, a suspended balcony runs around the hall. Suspension and light fittings merge into a thin colonnade of hung lanterns.
Thresholds are another means to extend the experience of urbanity. Ask the four-legged doorkeeper that awaits you at the entrance of the Book Hall. This sturdy figure pretends to be a porte cochère, but in reality is a hovering teahouse.
Interior of the Youlhwadang Book Hall. Photograph: Jonathan Lovekin
Ultimately, the affinity for medieval Italy becomes most legible in the front elevation of the Book Hall where, as in many Italian town halls, an intense stratification energises the composition. Intriguing facades, such as those of the Palazzo dei Capitani in Ascoli Piceno, have been altered for generations, until the elevations have become saturated with rhythms, incidents and trophies. This can be understood as the public counterpart of a living-room mantelpiece, displaying the memories and reminders of a rich family life.
Though many values are enshrined in ARU’s Paju Book Hall, unfortunately its neighbours do not share them. Wandering through Paju Book City, the differences in civic atmosphere in modern Korea compared with medieval Italy are strikingly apparent. The Book Hall forms part of ARU’s masterplan for the second phase of the project, a purpose-built cultural and commercial ‘city’ about an hour’s drive north of Seoul. Dedicated to creating, publishing and merchandising Korean books, Paju is home to more than 500 publishing companies, interspersed with printing plants, bookstores and cafés.
Paul Klee’s
A Leaf from the Book of Cities
from 1928
ARU developed the masterplan, together with Korean colleagues Kim Jong Kyu, Kim Young Joon and Min Hyun Sik, in collaboration with the Paju Book City co-operative headed by Yi Ki Ung, the chairman of Youlhwadang Publishers. Paju was planned with the common urban aim of safeguarding the Han River as the ecological backbone of a precious wetland. Wedged between the river and Simhak Mountain, it was envisioned as a new type of city as suggested by a Paul Klee painting from 1928,
A Leaf from the Book of Cities
, which evocatively conjured the view from the mountain, across Paju Book City, to the Han River. It was agreed to offer every plot on the industrial estate a view either of the surrounding mountains or over the wetland. ARU’s masterplan provides a solid base for parcelling out the land and distributing it to different publishing agencies and printing companies.
Considered as an industrial estate or campus, Paju Book City looks surprisingly urban. Yet it is anything but a city. Housing was left out of the zoning plan, yet housing is the primary building block of any city. From time to time, commercial and cultural programmes lure people onto the streets. But from a European perspective, the whole planning effort feels odd and hard to comprehend. During its economic boom, Asia developed a tradition of artificial developments and Paju cannot escape that association. Visually, ecological infrastructure prevails; in reality, cars rule.
Streetscapes are handled with care, yet many buildings don’t seem at ease in them. There is plenty of ‘architecture’ on offer, but like so many contemporary developments, it is beyond the point of saturation. Not surprisingly, Siza’s Mimesis building opts to pull back from the street behind a hedge. Gio Ponti once noted that a harmonious environment is not a matter of formal resemblance, but of shared values.
The first phase, completed in 2007, is a surreal ‘book shelf’ of different architects’ work. Image courtesy of the Cooperative of Paju Bookcity
Yet ultimately, the disparity between the thoughtfulness of the Book Hall and the riotousness of Paju Book City illustrates the challenge of ‘architecture as a city’. Nowadays, planners and clients manage to agree on matters of sustainability, mobility and efficiency. But the ability to agree on matters of formal consistency has been wrecked by the urge for individual expression. Despite a set of comprehensive architectural guidelines applied to each new building – prescribing material qualities, the three acceptable building types (‘wall’, ‘podium’ or ‘gazelle’) and massing options – architecture is effectively traduced and diminished by the lure of branding.
True civility implies a powerful body of shared values. At present, only a very strong planning apparatus can discipline architecture into a consistent urban set-up. The Paju masterplan did not produce a particularly robust armature, neither formally nor legally. As a result, ARU’s building remains an elusive fragment of a compromised whole and a tantalising suggestion of what might have been.
客服
消息
收藏
下载
最近









