查看完整案例

收藏

下载
以需求为尺:润 生活聚场的好房子答案
江湾城的架空层焕新不仅仅是空间功能的优化升级,更是“润 生活聚场”理念的落地实践。华润置地江湾城洞察全龄段业主使用场景的需求,对三期、四期架空层及社区养老用房、体育设施用房等五个社区空间进行品质焕新,升级为润 生活聚场五大生活模块,为业主提供丰富多元化的社区生活。
△ 改造前空间
润 生活聚场,是以架空层及党建服务中心为核心载体,构建全龄友好社交空间。聚焦休闲、社交、运动与学习场景,融入生活情绪关怀、身心健康设计及趣味互动体验,通过多龄共享功能布局,激活有限空间的无限可能,打造有温度的邻里生活聚场。
LIFE 01
润 乐想
静阅共生·宁静中的知识探索
社区才是儿童社会化的第一实验室,“润 趣岛”以更好的儿童发展为底层逻辑,将传统游乐区全面升维,以可生长的互动场景重构成长空间。
空间以前瞻性的场景化设计解构阅读行为:开放式布局巧妙划分出专注阅读区、思想碰撞的讨论角与内容展示台,在鼓励知识共享与社交涟漪的同时,通过精妙的隔断与书架阵列,为深度思考者保留珍贵的静谧结界。场域的魔力在于既让独处的专注得以安放,又让灵感的交汇自然发生。
材质与光影,成为营造“情绪关怀”的无言诗篇,温润自然的木纹肌理与中性舒缓的色调基底,共同编织出宁静而包容的氛围,阳光成为空间最灵动的装饰,在光影流转间拉长了感知的时间维度,使每一次翻阅都成为一场沉浸式的探索之旅。
LIFE 02
润 趣岛
生活课堂·理想的成长天地
空间在向孩子低语,柔和的环形光带自天花漫射而下,如同童话森林里的自然天光,瞬间包裹来者,将喧嚣隔绝于门外。 视线所及,温暖的木纹地胶铺满整个地面,形成一片安全、柔软、可肆意奔跑的“大地”。
空间的核心,被巧妙地切割、重组为一个个色彩明快的“活力岛屿”,这里鼓励痕迹,欢迎创造,空间边界因想象而模糊。
低矮的定制书架蜿蜒如溪流,嵌入符合儿童尺度的阅读窝和趣味桌椅,最引人注目的是一面“种子纽蛋墙”——镶嵌着可触摸的种子标本与观察窗,将自然微观世界引入室内。
LIFE 03
润 无限
能量再生·激活城市生命能量场
将传统健身房进化为健康管理的社区中枢——这里不仅是肌肉的锻造厂,更是现代人对抗焦虑的能量再生基地。
润 无限颠覆了器材堆砌的传统模式,以人体运动工程学为底层逻辑构建三维健康场景,橙色的墙面与黑色的设备形成鲜明对比,营造出充满能量的氛围。这里正在重构城市健康范式,如同植入社区的心脏起搏器,每个疲惫的灵魂在此重获能量节律,激活生命抗体。
LIFE 04
润 与伴
长者静享·时光的舒适
设计敏锐捕捉银发族的核心诉求——在岁月沉淀中渴望持续的社会角色认同。
衰老的真正悲剧不是身体退化,而是被排除在人类对话之外。润 与伴不仅是适老空间升级,更是一场对抗年龄歧视的社会实验--以故事交换产生的精神共振为标尺,当棋盘上的厮杀激荡少年意气,当茶汤里的往事照亮后辈征途,这里永远是皱纹里窖藏的人生诗篇。
LIFE 05
润邻湾
党建中心·红色的磁场
以先锋设计解构传统党建场景——暖调木纹肌理与可变形家具组成政治美学新范式,模块化隔断墙使空间在党课、创客路演、社区议会间无缝切换。
文化展示墙化身为可生长的红色记忆体:磁吸式展板系统实时更新民生实践成果,触控屏将党史转化为可交互的时间河流。这里拒绝说教式的符号堆砌,代之以“故事力场”营造策略——当青年创客的咖啡杯与老党员搪瓷缸相遇,空间悄然完成从意识形态载体到社区精神结缔组织的进化。
改造后的公区将圆润光滑的曲线语言贯穿始终,这里没有冰冷的“禁止”标识,只有可触摸的材质、可参与的装置、可自由组合的家具,共同构成一个鼓励动手、激发好奇的沉浸式探索场。
江湾城【润 生活聚场】通过共享空间的再设计,恢复社区场景失衡的状态,更新的社区环境证明了真正的奢居是让每个灵魂都被温柔托举。
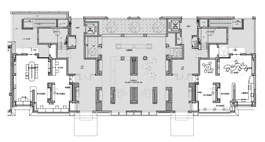
△ 平面图
项目名称 | 江阴江湾城
开 发 商 | 华润置地苏州地区公司
设计机构 | 飞视设计
设计总监 | 张力
项目总监 | 金星
硬装团队 | 张虎、刘朋举、杨磊、廖德初
软装设计 | 堂朝天意
主要材料| 木饰面、岩板、皮革硬包、肌理漆、塑胶地板等
项目面积 | 1300平方米
项目地点 | 江苏江阴
客服
消息
收藏
下载
最近





































