查看完整案例

收藏

下载
K4 – kuće u nizu na Kosmaju; Foto: Relja Ivanić
Četvoro komšija na Kosmaju: Svako sa svojom intimom… i bazenom
Četiri moderne kuće nedaleko od Beograda spajaju prirodu i dizajn, pružajući komfor, privatnost i jedinstven doživljaj života u vikend zoni poznate planine.
Sa projektom K4, čiji je autor, investitor i izvođač Arhitektonsko-građevinska radionica Atelje Đukić iz Mladenovca, premijerno smo vas upoznali u oktobru 2021. godine, kada smo u kraćim crtama predstavili idejno rešenje koje potpisuje arhitektkinja Đurđa Đukić.
Tri godine kasnije, ove četiri kuće u nizu, smeštene u vikend zoni planine Kosmaj, konačno su završene, te ćemo se ovom prilikom opširnije posvetiti izvedenom stanju i videti kako sve to izgleda i „uživo“ na fotografijama Relje Ivanića.
Objekti su orijentisani tako da se pristup vrši na nivou prizemlja; Foto: Relja Ivanić
Usklađivanje arhitekture i prirode
Kako za Gradnju navode iz Ateljea Đukić, biroa osnovanog 1990. godine, kroz formiranje idejnog rešenja težilo se usklađivanju arhitekture i prirode, dok se kao element oblikovanja izdvaja krovni pokrivač.
„Igra u kojoj učestvuju dvovodan i krov na jednu vodu je dinamična, otvorena za repeticiju istih elemenata u neprekinutom nizu, u kojem je ipak jasna granica pojedinačnih celina“ – objašnjavaju iz studija čiji je osnivač arhitekta Goran Đukić.
Objekti su orijentisani tako da se pristup vrši na nivou prizemlja, dok je depresija zatečena na lokaciji iskorišćena za smeštaj noćne zone u nivo suterena. „Na taj način, čitava površina prizemlja posvećena je dnevnom boravku“, kažu naši sagovornici.
Sratnost kuće je suteren + prizemlje; Foto: Relja Ivanić
Veliki prozorski otvori omogućili su veliku količinu dnevnog svetla, i istovremeno povezali dnevnu sobu, trpezariju i kuhinju sa okolnim zelenilom.
Veliki prozorski otvori omogućili su veliku količinu dnevnog svetla, i istovremeno povezali dnevnu sobu, trpezariju i kuhinju sa okolnim zelenilom, dok naglašena visina prizemne etaže umanjuje utisak boravka u zatvorenom prostoru.
Objektima dominiraju drvene letvice, tamna površina lima i bočnih fasada, kao i veliki prozorski otvori. Niz od četiri kuće uklopljen je u morfologiju terena, dok se na staklenim površinama reflektuje okolno zelenilo.
„Između dvorišta formirani su razdelni zidovi čija je gornja zona oblikovana u saksiju u kojoj su posađene biljke kako bi se dodatno obezbedila vizuelna privatnost između susednih kuća“ – ističu iz Ateljea Đukić.
Između dvorišta formirani su razdelni zidovi; Foto: Relja Ivanić
Stepenice skrivene kuhinjskim ostrvom
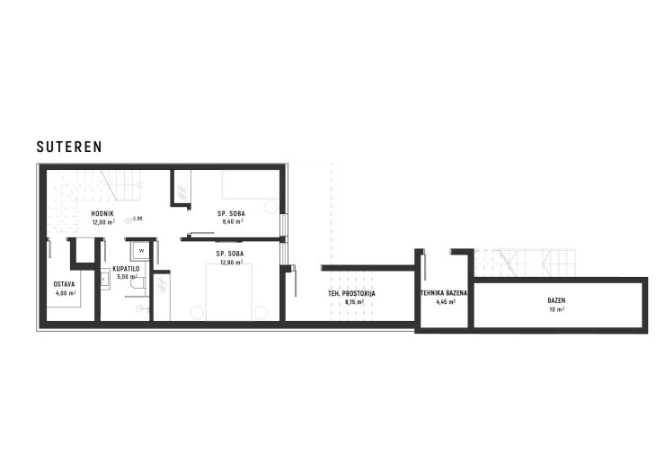
Sa dve spavaće sobe, kupatilom i ostavom u prostoru suterena; kuhinjom, trpezarijom i dnevnom sobom sa polulođom u prizemlju, ova vikend kuća ima 106 m² korisnog prostora. Pored unutrašnje ostave, pozicioniranjem stepenica oko bazena formirane su i spoljne ostave u kojima je smeštena prateća tehnika.
Suteren i prizemlje povezani su stepenicama koje su skrivene kuhinjskim ostrvom, odnosno ostrvo je poslužilo kao ograda prema stepenicama, dok je kuhinja organizovana kao prolazna ali i kao celina koju čine ugradna strana i ostrvo gde je smeštena indukciona ploča sa ugradnim aspiratorom.
Kuhinjsko ostrvo; Foto: Relja Ivanić
Bazeni su smešteni na polovini visine između prizemlja i suterena, tako da, zajedno sa plažom, predstavljaju produžetak dnevnog boravka sa terasom.
Cela kuća organizovana je tako da prostori budu u što većoj meri povezani ali da ne ometaju međusobne funkcije.
Masivne spoljne stepenice, osim što služe za komunikaciju sa dvorištem, formiraju korisne površine u vidu plaže oko bazena.
Bazeni su smešteni na polovini visine između prizemlja i suterena, tako da, zajedno sa plažom, predstavljaju produžetak dnevnog boravka sa terasom.
Bazeni predstavljaju produžetak dnevnog boravka sa terasom; Foto: Relja Ivanić
Konstrukcija objekta rešena je kroz masivne zidove i armirano-betonske elemente, dozvoljavajući projektovanu visinu i raspon tavanice.
Konstrukcija objekta rešena je kroz masivne zidove i armirano-betonske elemente, dozvoljavajući projektovanu visinu i raspon tavanice.
Što se pak tiče enterijerskog uređenja, na fotografijama u galeriji prikazana je jedna od kuća u nizu je koja kompletno opremljena i predstavlja pokaznu kuću za potrebe prodaje.
U cilju stvaranja većeg komfora, opremljenost objekata podrazumeva ugradnju materijala i pametnih sistema koji doprinose efikasnosti na polju uštede energije.
Foto: Relja Ivanić
Foto: Relja Ivanić
Skladno rešenje
Kuće u nizu na Kosmaju pokazuju kako moderan dizajn može biti prilagođen prirodnom okruženju, pružajući svojim korisnicima funkcionalan i estetski privlačan prostor. Pažljivo planiranje, od rasporeda prostorija do odabira materijala, rezultiralo je objektima koji ne samo da se uklapaju u pejzaž, već ga i nadograđuju.
Ovaj projekat može poslužiti kao inspiracija za buduće arhitektonske poduhvate u vikend zonama, gde harmonija s prirodom ostaje ključni prioritet.
Osnova prizemlja
Osnova suterena
Foto: Relja Ivanić
Foto: Relja Ivanić
Foto: Relja Ivanić
Foto: Relja Ivanić
Foto: Relja Ivanić
Foto: Relja Ivanić
Foto: Relja Ivanić
naziv objekta: K4
lokacija: Kosmaj
autor projekta: Đurđa Đukić, spec. inž.arh.
godina projektovanja: 2021.
godina izgradnje: 2023–2024.
površina: 4 x 106 m²
spratnost: suteren + prizemlje
investitor i izvođač: Atelje Đukić
fotografija: Relja Ivanić
客服
消息
收藏
下载
最近



















