查看完整案例

收藏

下载
德國郊外的奢華週末,探訪光影中的玻璃屋Das Glashaus/Sigurd Larsen 德國郊外的奢華週末,探訪光影中的玻璃屋Das Glashaus/Sigurd Larsen
玻璃屋:Sigurd Larsen設計休憩建築
位於德國Uckermark,北臨柏林的這座名為「Das Glashaus」(玻璃屋)的住宅,是由旅居柏林的丹麥建築師Sigurd Larsen於2022年精心設計而成的。這棟佔地183平方米的建築,不僅是一處理想的週末度假屋,更是專為一個小型家庭及其眾多賓客量身打造的休憩之地。玻璃屋的存在,為居住者提供了一個獨特的機會:在鄉村地區度過寧靜時光,並且盡情享受周邊被保護的森林和湖泊所帶來的自然美景。
丹麥建築師Sigurd Larsen於2022年在德國Uckermark設計的「Das Glashaus」住宅,不僅是週末度假屋,更是小家庭與賓客的休憩地
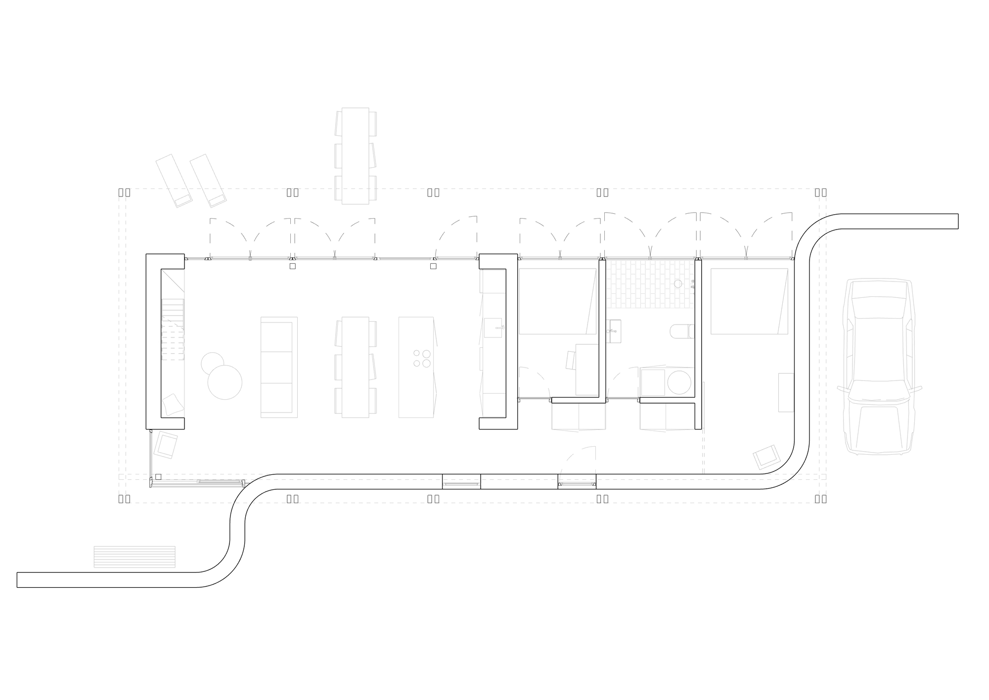
玻璃屋的私密與開放設計
該住宅擁有簡潔的平面配置,其中一道曲線形牆壁巧妙地為朝向道路的一側提供了隱私保護。所有房間均面向西側的開闊景觀,並且可以直接通往寬敞的有蓋露台。睡床沿著外牆排列,既可從室內進入,也可直接從露台進入。同樣地,淋浴間也可從室外直接進入。當一排排的玻璃門打開時,這些小臥室和淋浴間仿佛成為沿著有蓋露台的小隔間。
Das Glashaus平面圖:擁有一個簡潔的平面配置,其中一面曲線形牆壁巧妙地為朝向道路的一側提供了隱私保護
臥室
屋頂
木構形成溫室,既是創意工作室,也可以在變化的天氣下欣賞景觀
屋頂木構形成溫室,既是創意工作室,也可以在變化的天氣下欣賞景觀。創意工作空間與自然視野融合。
住宅中的樓梯和廚房區塊採用了實心混凝土磚建造,為主要居住空間創建了框架。向東凹陷的曲石牆創造了一個小庭院,用於享受清晨第一縷陽光,同時遮擋風。木結構的屋頂形成了一樓的溫室,內有一個寬敞明亮的空間,既是創意工作的工作室,也是欣賞變化萬千天氣下的景觀和日光的絕佳地點。
玻璃屋春秋季的壯觀景致
這座溫室裡,一張床、一張工作桌,以及後來增加的浴缸,使其在春季和秋季變成一個壯觀的空間。屋頂朝西的部分全部是玻璃製成的,使得居住者可以從室內欣賞綠色山谷和日落的景觀。屋頂的東坡採用聚碳酸酯材料,隨著太陽在房屋上空移動,營造出光影和色彩變化的奇妙遊戲。
室內外空間的融合與季節變換體驗
在溫暖的季節裡,室內外空間透過花園立面上的眾多開口融為一體。房屋內部似乎與由曲線牆和綠色樹籬界定的花園融合。冬季,這座緊湊的保溫單層房屋變成了一個舒適而親密的空間,居住者可以通過全景窗戶觀察外面的景觀和變化的光影。樓上的溫室是一個額外特色,可以在太陽暖和時或風涼時使用。
曲線形牆壁巧妙地為朝向道路的一側提供了隱私保護。所有房間均面向西側的開闊景觀
建築圖
作品資訊
作品名稱:Glass House|Das Glashaus|玻璃屋
作品位置:德國Uckermark
作品類型:木構、磚造、德國建築、住宅、私人住宅
設計:Sigurd Larsen
總樓地板面積:183 平方米
竣工:2022年
建築師Sigurd Larsen簡介
Sigurd Larsen是一位旅居德國柏林的丹麥建築師,擁有哥本哈根皇家美術學院建築學院的碩士學位。自2010年以來,Larsen的工作室在丹麥、德國、奧地利、法國、希臘以及紐約設計並建造了眾多住宅、酒店和公共學校。他最新的項目包括位於柏林南部的Michelberger Farm酒店以及柏林的The Lake House運動和研討會建築。Larsen的設計工作室以高質量材料的美學和注重功能性的概念結合,針對複雜環境下的設計需求。
Sigurd Larsen的學術與教學生涯
自2016年起,Sigurd Larsen在柏林國際應用科學大學擔任教授,他在這裡探索建築設計和視覺傳達通過教學和研究的方式。從2011年到2016年,他在柏林藝術大學擔任助理教授,與Nieto Sobejano Arquitectos的共同創辦人Enrique Sobejano教授一起教授建築設計。
Sigurd Larsen的職業經歷與國際合作
在成為教授之前,Sigurd Larsen曾於紐約的OMA Rem Koolhaas、鹿特丹的MVRDV、哥本哈根和柏林的COBE以及柏林的Topotek1工作。從2013年到2015年,他作為合夥人加入了丹麥 - 德國建築事務所COBE Berlin。在這段期間,他參與了波爾多舞蹈文化之家的設計競賽,並獲得第一名。他為柏林參議院設計了實驗性住宅,這是城市生活研討會和展覽的一部分,並在塞內加爾設計了低成本住宅,同時在各種建築競賽中獲得了多個榮譽提名和第二名。Sigurd Larsen是德國建築師協會BDA和柏林建築師協會的會員,展現了他在建築領域的專業地位和影響力。
客服
消息
收藏
下载
最近
















































