查看完整案例

收藏

下载
Housing for elderly people in Huningue
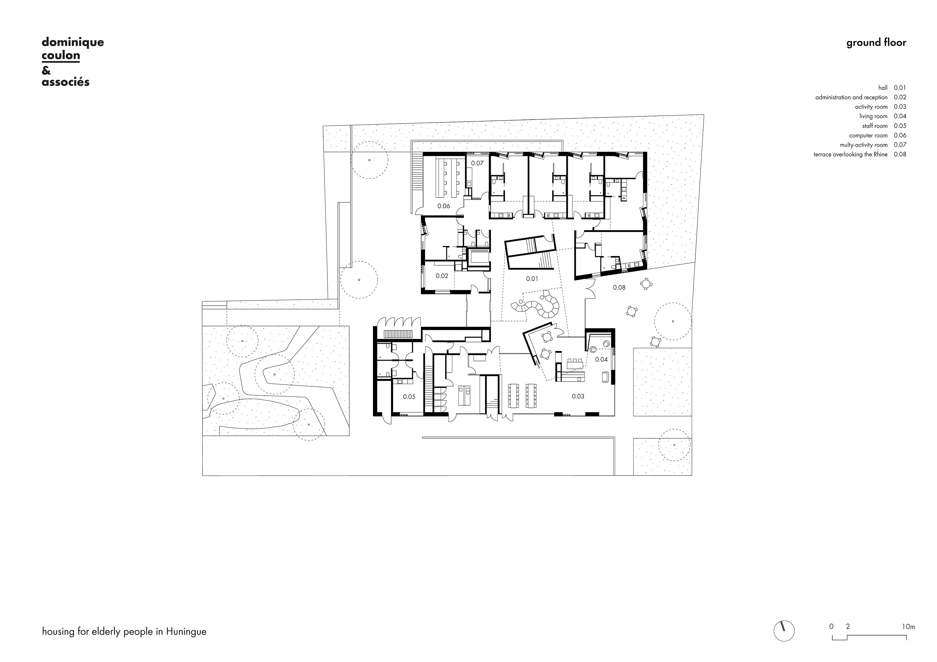
This housing for elderly people is located on the banks of the Rhine. The exceptional situation of the site allowed us to turn the common areas and the hall towards the river: the residents can enjoy the choreography of passing boats. The programme consists of twenty-five fifty-square-meter homes, a restaurant in three sections, a computer room, a hobby workshop, a vegetable garden and a petanque field.
Everything is organised to foster relations among the residents. Collective living spaces are as generous as possible, with abundant natural light. We have designed places that encourage exchanges and social interaction. Encounter-inviting events and sequences punctuate the routes.
The staircase stands at the centre of the building, rendering it unavoidable. In combination with the wide central space, it invites mobility. Upstairs, the patio brings light from the south into the heart of the building. The white volume inside seems suspended; it deconstructs the empty space and lends a certain strangeness to the whole.
Red concrete, terracotta and wood produce a benevolent atmosphere. Outside, the building is enveloped in brick on all sides. We selected a craft brick that is non-standard, irregular and occasionally misshapen. The walls catch the light; by emphasising its rustic port setting, the building connects itself to the history of the Rhine.
Program : 22 assisted housing (20 x T1bis et 2 x T2), lounge room, winter garden, catering, multimedia room, hall, activity room, craft workshop, parking. 24 résidents
Address : 41 Rue du Maréchal Joffre, 68330 Huningue / Google maps location : 47.588383, 7.585551
Surface : 3932 sqm
Budget : 4 000 000 €
Schedule:
Competition : February 2013
Plans and technical phases : from january 2014 to october 2015
Construction : From march 2016 to december 2017
Status:
Built
Location:
Huningue, FR
Firm Role:
Architect
Additional Credits:
Client : Ville de Huningue
Architect : Dominique Coulon & associés
Dominique Coulon, Olivier Nicollas, Gautier Duthoit
Architects assistants : Javier Gigosos-Ruipérez, Diego Bastos-Romero
Competition : Gautier Duthoit
Construction site supervision : Olivier Poulat
Engineers and consultants :
Structural Engineer : Batiserf Ingénierie
Mechanical Plumbing Engineer : Artelia
Cost Estimator : E3 économie
HQE specialist : Artelia
Fire safety system : Artelia
Acoustics : Euro sound project
Landscape : Bruno Kubler
Construction companies : Earthworks road works (GIAMBERINI & GUY), structure (MADER), Concrete structure (TECHNOCHAPE), Water proofing (GALOPIN), Exterior aluminium joinery (LA SOLUTION ALU), Metal works (ROMAN), Exterior isolation and facade (SCHERBERICH), Scaffolding (FREGONESE), Plastering (SOMEGYPS), Interior wood joinery – furniture (MEYER), Wood floors (SINGER), Tiled floors (BURGER), Glued floors (ALSASOL), Painting (LES PEINTURES REUNIES), Cleaning (REGIO NETTOYAGE), Elevator (SCHINDLER), Green areas - fences (IDE VERDE), Heating - Ventilation – Solar production (LIEBERMANN), Plombing - Drainage (PAUL HERRBACH), Electricity (HUBER ELECTRICITE), Wood stove (LIEBERMANN), Kitchen (CF CUISINE)
Photography : Eugeni Pons
客服
消息
收藏
下载
最近











































