查看完整案例

收藏

下载
中标方案|南京雨花核心区文化艺术中心,内外交融 / 深圳华汇设计
中标方案|南京雨花核心区文化艺术中心,内外交融 / 深圳华汇设计
建筑外观 ©深圳华汇设计
艺术之径 ©深圳华汇设计
设计单位:深圳华汇设计
项目地点:江苏南京
方案状态:中标方案
建筑面积:24950平方米
项目背景:雨花台区是南京市“数字经济示范区”,也是南京这座底蕴深厚、古今交融的人文之城在数字经济时代发展的新名片。雨花文化艺术中心作为区级的公共客厅,是雨花区城市升级的重要补充和公共生活的关键角色。方案希望深入挖掘雨花台区文化基因,在尊重地方历史文脉的同时,契合未来发展的主题定位,打造具备“雨花”特色的文化综合体。
城市关系 ©深圳华汇设计
周边关系 ©深圳华汇设计 设计生成
1-引景成轴:将北侧公园的景观引入建筑内部形成景观轴线 ©深圳华汇设计
2-回应城市:建筑退让道路交叉口,形成街角广场 ©深圳华汇设计
3-视线引导:立面的“艺术之窗”与周边环境形成视线呼应 ©深圳华汇设计
4-呼应文脉:建筑入口结合轴线上的红色路径形成文化艺术之径 ©深圳华汇设计
片区缝合
设计通过引入景观轴线,使北侧城市公园的景观向建筑延伸渗透,在半室外的内庭形成全天候开放的艺术活动空间,与外部公园形成一个整体。从公园看向建筑,建筑以极具标志性和未来感的造型面向公园,宛如公园中的一件艺术品,使在公园树荫下漫步的人们自然地步入建筑之中。
轴测示意图 ©深圳华汇设计
场馆地下室功能也与公园地下文体设施形成有效连接:设计在负一层设置文化类培训空间,并与北侧公园的地下空间相连,与公园负一层的体育培训空间形成功能互补;负二层与南侧办公地块车库相连,增强停车设施使用效率。
流线分析图©深圳华汇设计
艺术之径
入口蜿蜒而上的台阶和室外楼梯形成一条串联各主要功能的艺术之径,红色往上攀登的路径与雨花台红色历史文脉遥相呼应。
艺术之径 ©深圳华汇设计
界面回应
建筑以不同表情回应不同的城市界面:北侧以开放的姿态面向公园,东侧具有未来感的标志性窗口呼应数字商务办公区,西侧及南侧以简洁典雅的界面回应静谧的居住区及办公楼。
四个界面 ©深圳华汇设计
北侧鸟瞰 ©深圳华汇设计
西北侧透视 ©深圳华汇设计
东北侧透视 ©深圳华汇设计
东侧透视 ©深圳华汇设计
科技窗口
夜幕降临,文化艺术中心成为与城市互为舞台的科技窗口:演艺中心面向公园的窗口,成为与广场实时互动的荧幕;内庭如云层起伏的界面与电子艺术结合,呈现富有张力的艺术效果,体现“数字雨花”的魅力;科技窗口结合公园的开放绿地,存在多样的空间使用场景。
科技内核 ©深圳华汇设计
露天电影模式 ©深圳华汇设计
庆典模式 ©深圳华汇设计
音乐节活动 ©深圳华汇设计
文化聚落
除演艺中心、美术馆等核心功能外,整个建筑还融合了多种交流及学习空间,增加了市民的互动与体验。多元复合的功能,使整个文化艺术中心成为室内外交融的文化聚落。
剖轴测示意图 ©深圳华汇设计
剧场:设置多功能剧场,满足报告、演艺、会议、宴会、T台秀等各种功能需求,提高剧场的使用效率及运营效益。
展厅:主展厅及分展厅统一在最顶部一个楼层,设置为大空间,布展空间更为灵活。
多功能空间:首层毗邻公共门厅为多功能空间,设置开放式阅览,同时可根据需求进行功能转换。
其他配套:引入培训、工作室及商业,提高运营效益,有效减少政府对文化建筑的补贴。
屋顶剧场 ©深圳华汇设计
公共门厅 ©深圳华汇设计
美术馆 ©深圳华汇设计
艺术作品
雨花文化艺术中心力图为市民创造互动交流、学习提升的空间,并结合数字科技艺术打造一个城市艺术作品。银白色的外观、抽象的建筑体量、标志性的窗口,塑造极具科技感与艺术感的效果。建筑立面以白色金属格栅覆盖,形成半虚半实、简洁典雅的立面效果;竖向格栅形成自然遮阳,避免太阳眩光,同时兼顾景观视线,也让建筑以更加友好的姿态拥抱城市与自然。
立面设计 ©深圳华汇设计
立面设计材质分析 图源网络
绿色可持续的公共建筑
被动优先、主动优化的可持续设计策略,减少了碳排放和总体能源消耗;屋顶太阳能光伏系统,为建筑创造清洁能源;雨水收集系统,用于景观观赏及灌溉,减少资源消耗。西侧及南侧竖向格栅,有效遮挡太阳的直射;灰空间增强通风,有效调解微气候,缓解热岛效应,让低碳与建筑浑然一体,人与自然和谐共生。
自然通风轴测分析图 ©深圳华汇设计 设计图纸 ▽
总平面图 ©深圳华汇设计
一层平面 ©深圳华汇设计
二层平面 ©深圳华汇设计
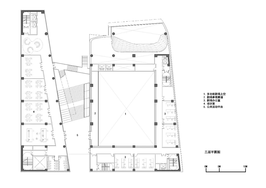
三层平面 ©深圳华汇设计
四层平面 ©深圳华汇设计
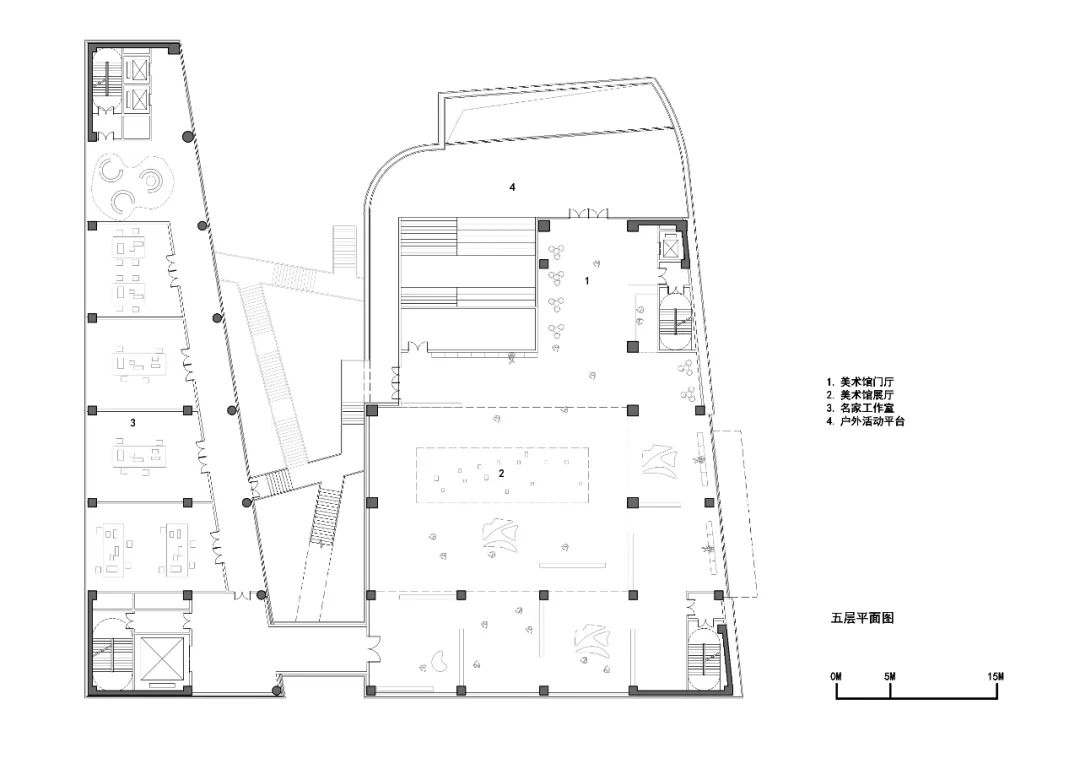
五层平面 ©深圳华汇设计
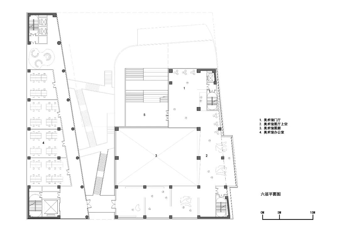
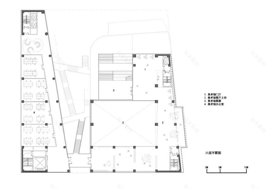
六层平面 ©深圳华汇设计
七层平面 ©深圳华汇设计
完整项目信息
项目名称:南京雨花核心区文化艺术中心
业主:雨花新城规划建设管理办公室
项目类型:文化建筑
地理位置:南京市雨花台区
建筑面积:24950平方米
项目设计时间:2022年11月
设计团队:深圳华汇设计
主创建筑师:肖诚、凌峥
设计团队:唐杨涛、查麟芷、叶嘉怡、刘鑫、凌文萍
客服
消息
收藏
下载
最近


































