查看完整案例

收藏

下载
Planirana zgrada u Krivolačkoj ulici; Vizuelizacija: Termoenergo inženjering
Javni uvid za zgradu na uglu Ustaničke i Krivolačke sa 28 stanova
Uz stanovanje od prvog do povučenog sprata i lokale na etaži prizemlja i galerije, objekat će imati i podzemnu garažu na tri nivoa sa 41 parking mestom.
Sekretarijat za urbanizam i građevinske poslove Grada Beograda oglasio je ove sedmice javnu prezentaciju urbanističkog projekta za izgradnju stambeno - poslovnog objekta spratnosti 3Po+Su+P+6+PS, na broju 1 u Krivolačkoj ulici na Voždovcu.
Nosilac izrade UP - a je arhitektonski studio Archi - Lab, idejno rešenje potpisuje Termoenergo inženjering, a kao odgovorni projektant imenovana je Milena Ristić, mia.
Investitori su preduzeća Krivolačka Invest i Euro Cool System i jedno fizičko lice, svi iz Beograda.
Bruto razvijena građevinska površina objekta iznosi 4.348 m²; Vizuelizacija: Termoenergo inženjering
Tri objekta predviđena za rušenje
Novoprojektovani objekat je lociran na KP 2535 u KO Voždovac, na uglu ulica Ustaničke i Krivolačke. Površina parcele iznosi 613 m² i ima pristup na javnu saobraćajnicu prema ulicama Krivolačkoj i Ustaničkoj.
Parcela je približno pravougaonog oblika, dok je teren u padu ka jugozapadu, a duž ulice Krivolačke. Na parceli se nalaze tri objekta lošeg boniteta koji su predviđeni za rušenje u sklopu pripremnih radova.
Po tipu izgradnje, planirani objekat je ugaoni, dvostrano uzidan u odnosu na bočne granice parcele. Ostvarena spratnost je 3Po+Su+Pr+6+Ps prema Ustaničkoj ulici i 3Po+Su+P+5+Ps prema Krivolačkoj ulici.
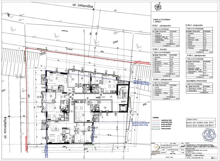
Situaciono-nivelacioni plan sa osnovom prizemlja
Garaža je smeštena na tri nivoa sa ukupno 41 parking mestom, od čega je 31 PM za stanovanje, a 10 PM za poslovanje.
Namena objekta je kombinovana, stambeno-poslovna. Komercijalni sadržaji su formirani na etaži prizemlja i galerije. Formirane su tri podzemne etaže za garažu, tehničke i pomoćne prostorije.
Površina pod objektom iznosi 338 metara kvadratnih, a bruto razvijena građevinska površina 4.348 m². Ostvareni stepen zauzetosti je 55,16%., navodi se u idejnom rešenju.
Pristup stambenom delu objekta ostvaren je iz Ustaničke ulice. Pristup komercijalnim sadržajima (Lokal 1 i Lokal 2) je i Ustaničke i Krivolačke ulice, zavisno od komercijalnog sadržaja.
Garaža je na tri nivoa sa ukupno 41 parking mestom od čega je 31 PM za stanovanje, 10 PM za poslovanje. Za osobe sa invaliditetom obezbeđeno je po 1 PM po etaži garaže. Ukupna površina parking mesta je 574,65 m².
Od 1. do 4. sprata projektovane su tipske stambene etaže; Vizuelizacija: Termoenergo inženjering Projektovano 28 stanova
Stambeni deo objekta počinje od tipskih etaža projektovanih na prvom, drugom, trećem i četvrtom spratu, sa po 5 stanova po etaži – tri jednoiposobna, jedan trosobni i jedan dvoiposobni.
Peti sprat je formiran sa 4 stambene jedinice – jedan jednosobni, dva dvoiposbobna i jedan troiposobni stan. Na šestom spratu smeštena su tri stana – jednosoban, četvorosoban i dvoiposoban, dok je jedan četvorosobni stan projektovan na povučenoj etaži.
Primedbe i sugestije do 25. oktobra
Zainteresovani mogu tokom javne prezentacije da izvrše uvid u urbanistički projekat, kao i da svoje primedbe i sugestije na planirana rešenja u pisanoj formi dostave na pisarnicu Sekretarijata za urbanizam i građevinske poslove, Kraljice Marije br. 1, najkasnije do 25. oktobra 2024. godine.
Grafički prilozi
Situaciono-nivelacioni plan sa osnovom prizemlja
Osnova suterena
Osnova 1. sprata
Osnova povučenog sprata
Presek 1-1
Presek 2-2
客服
消息
收藏
下载
最近












