查看完整案例

收藏

下载
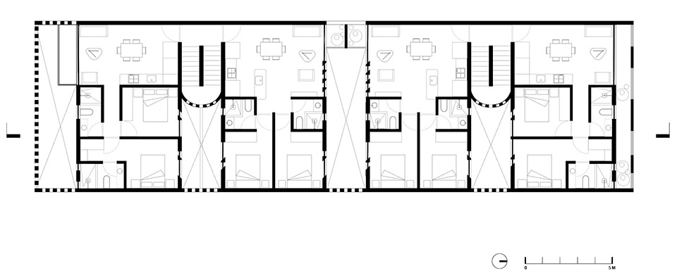
Mariano Azuela 194项目旨在深入融入Santa María la Ribera街区的历史与文化背景。这一街区拥有丰富的历史遗产,而项目也正是在此基础上展开,力图与其环境和谐共生。建筑由四个纵向体量与两个交通核心构成,设计尊重原有城市尺度与建筑特征,致力于与周边街区建立自然的对话关系。
Mariano Azuela 194 is a project that seeks to integrate and align itself with the historical and cultural context of the Santa María la Ribera neighborhood, an area of great heritage wealth. The building, composed of four bays and two circulation cores, is designed to relate harmoniously to its urban surroundings, respecting the scale and architectural characteristics of the place.
▼项目鸟瞰,aerial view of the project ©Mariano Azuela
▼塔楼顶部均设有筒形拱顶,each tower is crowned with a barrel vault ©Mariano Azuela
每个塔楼顶部均设有筒形拱顶,这一元素不仅赋予建筑鲜明的识别性,同时也为顶层住户提供了额外空间。这些拱顶在屋面上形成富有韵律的曲线节奏,使整个建筑群更具动感与个性。
Each tower is crowned with a barrel vault, which not only provides a distinctive character to the design, but also functions as an additional space for the apartments located on the top floor. These vaults create an interesting play of curves on the roof, offering dynamism and character to the complex.
▼筒形拱顶为顶层住户提供额外空间,
barrel vault functions as an additional space for the residents ©Mariano Azuela
建筑立面在底层高度上抬,并配有遮阳篷,其比例与建筑语言汲取了20世纪初期的典型风格,回应了街区内常见的历史建筑形式与精髓。此外,项目在一层设置了商业空间,旨在激活街区活力,促进城市生活,为周边环境品质的提升作出贡献。
The façade, high on the ground floor and equipped with canopies, adopts the proportions and architectural language characteristic of the early twentieth century, reflecting the essence of the buildings that abound in the neighborhood. The design also includes a commercial space on the ground floor, with the aim of promoting urban life and contributing to the quality of the immediate environment.
▼临街立面,street facade ©Mariano Azuela
▼临街立面,street facade ©Mariano Azuela
在材料选用上,项目强调本土性与手工技艺。所有建筑元素均采用国产材料,并由工匠精工制作,从而形成一组自然色调的材质语言,包括国产大理石、墙面泥土质感饰面、手工制作的砖隔墙等——这些都与墨西哥传统建筑的丰富性与在地性气质相呼应。
As for the materials, the project uses elements of national origin, worked with artisanal techniques. This choice gives rise to a palette of natural colors, which includes national marbles, earth finishes on the walls and artisanal partitions, all in tune with the character and richness of traditional Mexican architecture.
▼楼梯间,staircase ©Mariano Azuela
▼走廊,corridor ©Mariano Azuela
▼公寓内部空间,interior space of the apartment ©Mariano Azuela
▼公寓内部空间,interior space of the apartment ©Mariano Azuela
▼旋转楼梯,spiral staircase ©Mariano Azuela
▼顶层公寓,penthouse flat ©Mariano Azuela
▼露台空间,terrace space ©Mariano Azuela
▼顶层公寓,penthouse flat ©Mariano Azuela
▼夜景,night view ©Mariano Azuela
▼地下室平面,basement plan ©Bloqe arquitectura
▼一层平面,ground floor plan ©Bloqe arquitectura
▼二层平面,first floor plan ©Bloqe arquitectura
▼三层平面,second floor plan ©Bloqe arquitectura
▼露台平面,terrace plan ©Bloqe arquitectura
▼剖面,section ©Bloqe arquitectura
客服
消息
收藏
下载
最近




































