查看完整案例

收藏

下载
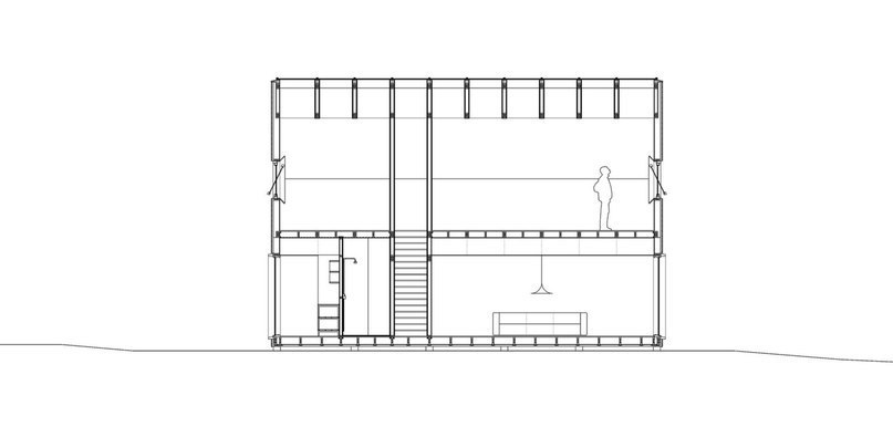
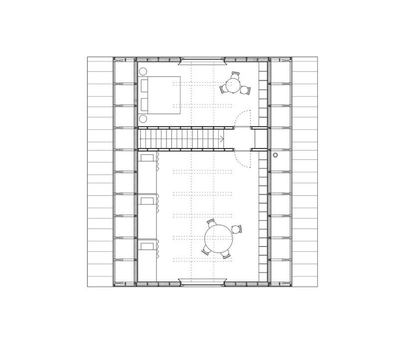
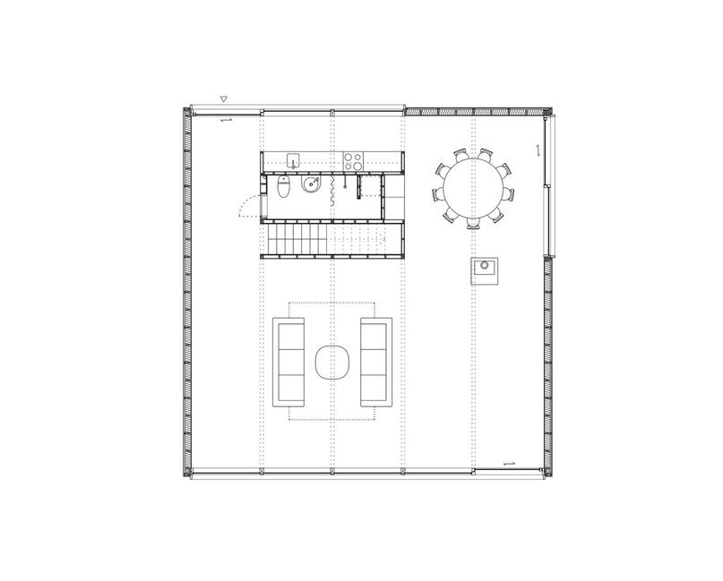
Дом для большой семьи в Стокгольме
Этот дом площадью 180 квадратных метров в Стокгольме, Швеция, расположен на участке высокого холма с видом на море с северной стороны. Несколько построек находились в собственности одной семьи в течение длительного времени, но с появлением нового поколения, определилась потребность в большем пространстве.
客服
消息
收藏
下载
最近












