查看完整案例

收藏

下载
Planirani poslovno-komercijali kompleks; Vizuelizacija: M Enterijer Gradnja
Na aerodromu Nikola Tesla Air Serbia gradi hotel i upravnu zgradu
Nedaleko od Muzeja vazduhoplovstva u planu je poslovno-komercijalni kompleks sa hotelom za 304 gosta koji potpisuje Ivana Letić iz Delta Real Estate.
Sekretarijat za urbanizam i građevinske poslove Grada Beograda oglasio je u petak javnu prezentaciju urbanističkog projekta za izgradnju poslovno-komercijalnih objekata okviru kompleksa Aerodroma Nikola Tesla, ukupne bruto površine od 24.215 m².
Investitor je kompanija Air Serbia, nosilac izrade urbanističkog projekta je preduzeće M Enterijer Gradnja iz Beograda, kao odgovorni projektant potpisana je Katarina Macanović, dia, dok je autor IDR hotela Ivana Letić, dia, iz kompanije Delta Real Estate.
Ortofoto situacija sa prikazom predmetnog kompleksa i šireg okruženja
Realizacija predviđena u tri faze
Predmetna lokacija od oko 34.000 kvadrata nalazi se u neposrednoj blizini zone aerodroma. Na severnoj strani se prostire planirani kružni tok, na severoistočnoj ulica Nova 5. Na istočnoj strani se graniči sa ulicom koja pripada kompleksu Aerodroma Nikola Tesla, a na jugoistočnoj strani sa kompleksom Muzeja vazduhoplovstva.
Na građevinskoj parceli planira se izgradnja poslovno-komercijalnog kompleksa koga čine upravna zgrada kompanije Air Serbia, poslovni objekat i hotel. Sva tri objekta su nezavisne funkcionalne celine i njihova realizacija je predviđena u tri faze:
Faza 1: Upravna zgrada kompanije Air Serbia – planirani završetak objekta u junu 2026. godine;
Faza 2: Hotel – planirani završetak objekta u prvom tromesečju 2027. godine;
Faza 3: Poslovni objekat – planirani završetak objekta u 2030. godini.
Površina građevinske parcele iznosi 34.069 m²; Vizuelizacija: M Enterijer Gradnja
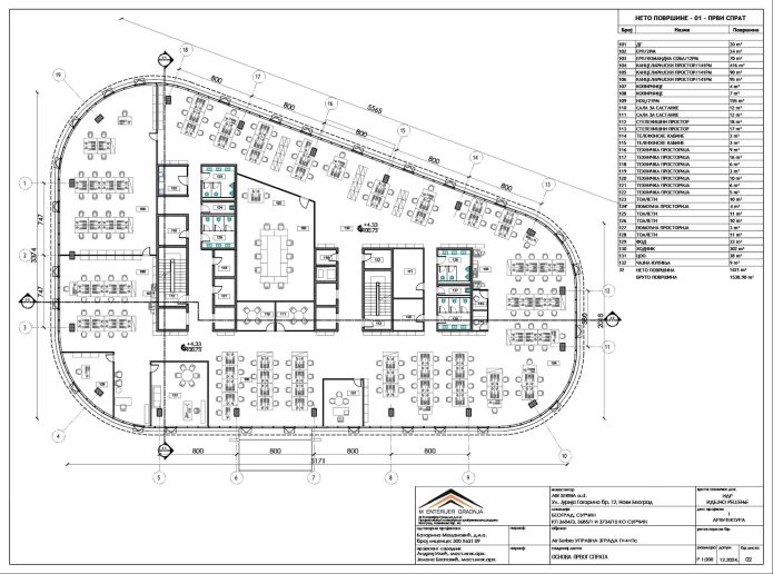
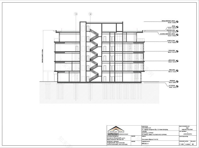
Upravna zgrada kompanije Air Serbia je poslovni objekat, slobodnostojeći na parceli, spratnosti P+4+Ps i ukupne površine od 7.985 kvadrata.
Upravna zgrada kompanije Air Serbia je poslovni objekat, slobodnostojeći na parceli, spratnosti P+4+Ps i ukupne površine od 7.985 m². Glavni ulaz u objekat je lociran ka saobraćajnici Nova 5, dok je sa zadnje strane predviđen VIP ulaz.
U prizemlju je projektovan ulazni hol, prostorije za obuku, sale za sastanke i kafe/kantina. Na spratovima su predviđene kancelarije, pretežno organizovane kao „open space“, dok su na povučenoj etaži, pored kancelarija, predviđeni kabineti menadžmenta i izložbeni prostor.
Vertikalna komunikacija u objektu je ostvarena sa dva stepeništa i liftovima koji su grupisani u dva jezgra.
Upravna zgrada kompanije Air Serbia; Vizuelizacija: M Enterijer Gradnja
U prvom periodu eksploatacije objekta planirano je oko 480 zaposlenih, sa mogućnošću proširenja kapaciteta na 620 zaposlenih.
Krov objekta je ravan. Manji deo krova je prohodan, tj. na jednom delu je projektovan bar sa krovnom terasom za prijem oko 50 osoba.
U prvom periodu eksploatacije objekta planirano je oko 480 zaposlenih, sa mogućnošću proširenja kapaciteta na 620 zaposlenih. U okviru prve faze predviđena je izgradnja energetskog bloka koji obuhvata trafostanicu, dizel agregat i toplotne pumpe, kao i portirnice na ulazu u celinu namenjenu kompaniji Air Serbia.
Upravna zgrada pozicionirana je u severozapadnom delu parcele; Vizuelizacija: M Enterijer Gradnja
Planirane 152 hotelske jedinice
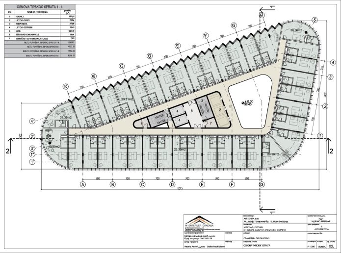
Hotel je slobodnostojeći objekat na parceli, spratnosti P+5 i ukupne površine od 8.234 m², pozicioniran u istočnom delu parcele.
U prizemlju, koje je uvučeno u odnosu na spratove, projektovani su lobi i recepcija, dva lokala i teretana za goste hotela, kancelarije administrativne službe, magacini, servisne i tehničke prostorije.
Na spratovima su planirane hotelske sobe i apartmani. Sobe su pretežno dvokrevetne. Planirane su 152 hotelske jedinice, tako da je okvirni kapacitet hotela oko 304 gosta.
Hotel će imati svoj parking sa 80 mesta; Vizuelizacija: M Enterijer Gradnja
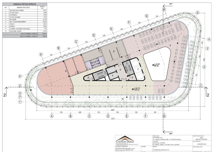
Restoran ima terasu koja je u delu poslednje etaže orijentisanom ka ulici, odnosno aerodromskoj pisti.
Na poslednjoj etaži je projektovan restoran i prateća kuhinja, banket sala i sale za sastanke. Restoran ima terasu koja je u delu poslednje etaže orijentisanom ka ulici, odnosno aerodromskoj pisti.
Vertikalna komunikacija u objektu je ostvarena stepeništem i liftovima, koji su zasebno projektovani za goste hotela i hotelsko osoblje i servis. Druga faza obuhvata i izgradnju trafostanice.
Okvirni kapacitet hotela je oko 304 gosta; Vizuelizacija: M Enterijer Gradnja Ukupno projektovano 507 parking mesta
Poslovni objekat je slobodnostojeći objekat na parceli, spratnosti P+4+Ps, pozicioniran u središnjem zapadnom delu parcele. Objekat je po formi, gabaritu i kvadraturi identičan upravnoj zgradi Air Serbia. U okviru treće faze je, takođe, predviđena i izgradnja energetskog bloka.
Do svakog objekta i oko kompleksa je predviđena interna saobraćajnica sa pripadajućim parking prostorom. Parkiranje je predviđeno na parceli, na otvorenim parking prostorima koji su grupisani oko objekata, kao i u jugoistočnom delu parcele.
Ukupno je projektovano 507 parking mesta – u zoni upravne zgrade kompanije Air Serbia planirano je 140 parking mesta, hotel će imati svoj parking sa 80 mesta, kao i veliko parkiralište na jugoistočnom delu parcele sa 287 parking mesta.
Primedbe i sugestije do 27. januara
Zainteresovana lica mogu tokom javne prezentacije da izvrše uvid u urbanistički projekat, kao i da svoje primedbe i sugestije na planirana rešenja u pisanoj formi dostave na pisarnicu Sekretarijata za urbanizam i građevinske poslove, Kraljice Marije br. 1, najkasnije do 27. januara 2025. godine.
Upravna zgrada – osnova prizemlja
Upravna zgrada – osnova prvog sprata
Upravna zgrada – osnova povučenog sprata
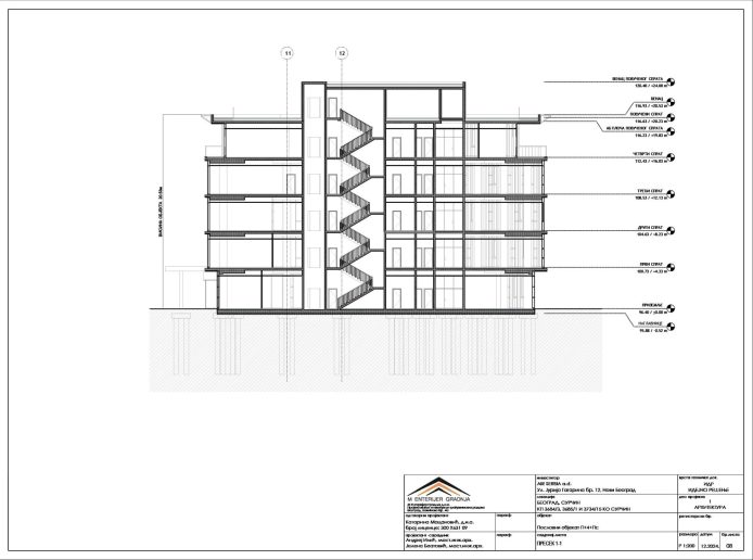
Upravna zgrada – presek 1-1
Hotel – osnova prizemlja
Hotel – osnova tipskog sprata 1–4
Hotel – osnova petog sprata
Hotel – presek 1-1
Poslovni objekat – osnova prizemlja
Poslovni objekat – osnova prvog sprata
Poslovni objekat – osnova povučenog sprata
Poslovni objekat – presek 1-1
客服
消息
收藏
下载
最近



















