查看完整案例

收藏

下载
全長150mの別荘!建築家・小川晋一による大自然を望む究極のミニマルデザイン
全長150mの別荘!建築家・小川晋一による大自然を望む究極のミニマルデザイン
大地を見渡す丘のうえに佇む豪邸をご紹介します。
雑誌『モダンリビング』の象徴ともいえるようになった「豪邸、拝見!」特集。10年以上続くこの特集から、色褪せない豪邸をプレイバック。
今回ご紹介するのは、建築家・小川晋一さんが手掛けたタイ・カオヤイに立つ別荘。国立公園として保護され、自然動物や雄大な山を望むこの場所には、その自然と対峙できるスケールの豪邸が必要でした。
自然と共にある「世界最長」の週末住宅
今世紀にできた家のなかで、世界で最も長い住宅です(竣工当時)。全長は150m、タイ・カオヤイの国立公園を望む丘のうえに立ちます。
設計を手掛けたのは、建築家の小川晋一さん。水平方向への広がりをもつ住宅を多数手掛けてきた小川さんの住宅群のなかでも、圧倒的スケールです。
<写真>ファミリーリビング。この他に、この別荘を使う6名それぞれのためのリビング、寝室、浴室が設けられている。
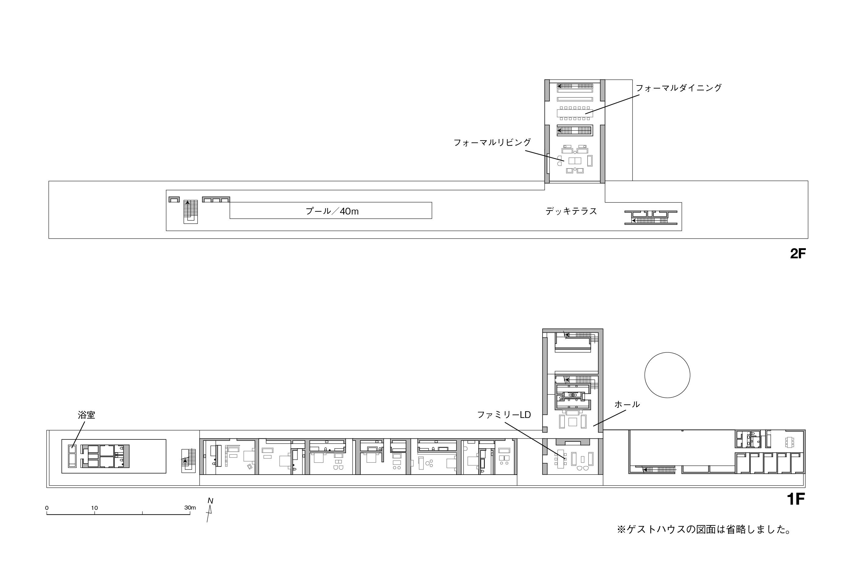
丘のうえに一直線に伸びる白い箱
2つの丘をまたいで設けられた建物。滝のエントランスゲートをくぐると、西側の丘にメインハウス、東側の丘にはゲストのためのグラスハウスがあります。
西側のメインハウスは、床・天井の2枚の水平面と、1つのホワイトキューブからなる簡潔な構成。幅11m、長さ150mのコンクリートスラブに挟まれた強い水平性をもった空間には、プライベートルームが一直線に並んでいます。
西端からジャグジーバスルーム、フィットネスルーム。そして占有のバスルーム・リビング・ベッドルームを備えた6つの個室が連続。さらにファミリーリビング・ダイニングが続き、いちばん東端にメイド室という配置になっています。
各室は、北側の廊下と南側のデッキに挟まれるように設けられており、風の抜ける心地よい空間性を確保。同時に、どの部屋からもパノラミックなビューを楽しむことができます。
<写真>2つの丘を渡るように伸びるファサード、床スラブは一部が地面から浮遊するように見せて設計された。
どこまでも続くような建物と大自然
屋上に出ると、長さ40mのプール、砂浜に見立てたテラスが広がっています。「まるで空に浮かぶビーチです」と小川さん。
360°周囲に開かれた大きなルーフテラスからは、カオヤイの雄大な自然の山々や東側にあるゲストハウス、庭に点在するアート作品を見渡すことができます。
<写真>屋上に設けられたデッキテラスは砂浜をイメージした構成。一部は40mのプールになっている。手前側にはフォーマルリビング・ダイニングがある。
<写真>。40mプールには、水中照明が設置されており、昼夜を問わずこのスペースを楽しむことができる。
屋上テラスに連続するようにして設計されたフォーマルリビング・ダイニングは、天井高6mの巨大なワンルーム。階下のウェイティングホールにつながる階段を挟んで、北側にはパントリーと長いダイニングテーブル、南側には暖炉のあるリビングルームという構成になっています。
<写真> 屋上テラスに面した、ホワイトキューブのフォーマルリビング・ダイニング。
<写真>フォーマルダイニング。
<写真>階段部分を介してリビングスペースとダイニングスペースに振り分けられる。海外からのゲストを迎えることも多いオーナーが、自宅でのパーティを行うためのスペース。忙しい日々を忘れて過ごす優雅なひととき
「周囲の美しい景観を最大限に生かす。一方で、対照的な海辺をイマジネーションする。その2つの要素から、この世界一長い住宅が生まれたのです」と小川さん。
自然と共にあるべくして生まれた桁はずれのスケールをもつ、まさに豪邸です。
<写真>メイン棟の最西端に設けられたジェットバスルーム。現場研ぎ出しテラゾー(人研ぎ)でつくられた浴槽は、2つの湯船に分けられている。全面ガラスの開口部からは、遮るもののないパノラマの風景を一望することができる。
<写真>メインハウス棟に6つある個人用のリビング。インテリアも各室によってさまざま。
<写真>メインハウス棟では、各室が東西方向に連続し、そのすべてが北側廊下と南側のテラスで挟まれている。廊下側にも開口部が設けられており、風の抜けを確保している。
<写真>木々に囲まれたグラスハウス棟。建物の自然との競演、また美しい眺望を楽しむことができる。
□ 設計/小川都市建築設計事務所 小川晋一
□ 敷地面積/86,000㎡
□ 延床面積/1,664.12㎡
メインハウス
□ 1階/1,272.77㎡
□ 2階/242.73㎡
ゲストハウス
□ 1階/148.62㎡
□ 家族構成/夫婦+子供4人
□ 所在地/タイ、カオヤイ
□ 構造/RC造
□ 構造設計/Wanchai Teparaksa
□ 工事期間/2010年9月~2012年6月
□ 施工/RITTA
●外部仕上げ
□ 屋根/露出シート防水コンクリートスラブ下地
□ 外壁/外装用水性塗装コンクリート打放しモルタル補修下地
●内部仕上げ
1階・2階
□ 床/600角タイル貼り
□ 壁・天井/PB 寒冷紗パテしごき
客服
消息
收藏
下载
最近
















