查看完整案例

收藏

下载
Современный дизайн кухни-гостиной площадью 20 кв. метров
Современный дизайн кухни-гостиной площадью 20 кв. метров
Мир красоты и комфорта постоянно меняется, это предоставляет собственникам возможность воплощать в жизнь свои самые смелые фантазии, грамотный дизайнер всегда направит их в правильное русло. Как и все другие, дизайн кухни гостиной 20 кв. метров создается при соблюдении определенных правил. Элементы обстановки должны быть не только красивыми, стильными, но и функциональными.
Площадь в 20 квадратов – это достаточное пространство для обустройства удобной и красивой кухни-гостиной
Создание современного дизайна
Многочисленные модные направления имеют свои отличительные черты, тонкости, но есть несколько правил, которые актуальны для всех: Любая комната, вне зависимости от того, насколько функциональных зон она поделена, должна выглядеть полноценно, гармонично. Кухня-гостиная будет выглядеть гармонично, при грамотном подборе общей цветовой гаммы, единого стиля. Расстановка мебели должна учитывать все особенности помещения.
В идеале кухня-гостиная должна состоять из обеденной зоны, места для отдыха и рабочего пространства
Мебель, предметы интерьера и отделка должны быть выдержаны в едином стиле, иначе будет трудно добиться гармоничного сочетания
Варианты грамотного зонирования
В помещении, разделенном на несколько зон, важно правильно сделать зонирование. Комната в 20 кв метров подходит для этого идеально, остается грамотно интегрировать пространство.
Отделить рабочую зону можно с помощью раздвижной перегородки из стекла, которая не затенит пространство и оградит другое помещение от запахов и шума.
Зонировать можно несколькими способами:
Барная стойка
Один из самых популярных и рациональных вариантов. Стойка не только делает помещение стильным, необычным, но и разделяет пространство, исполняет роль стола для принятия пищи. Она идеально вписывается стили минимализм, хай тек. В помещении 20 и более квадратов можно устанавливать массивные барные стойки, изготовленные из стали, камня, дерева, стекла.
Перегородка из гипсокартона и других материалов
Нежелательно, чтобы перегородка была слишком массивной, со сложными формами, это утяжеляет общее впечатление от интерьера. Гипсокартонная перегородка будет отличной площадкой для навесных полочек, картин, телевизора. Она может иметь разную высоту, например, от пола до середины стены или от пола до потолка. Ширина также может меняться.
Мобильные, раздвижные перегородки
Такая модель в любое время поможет разделить комнату на 2 отдельных помещения. Они изготавливаются из стекла, пластика, металла. Чтобы украсить интерьер на них можно нанести рисунок, стекло сделать матовым.
Отделочные материалы
Данный прием помогает избежать массивных, разделительных конструкций. Функциональные зоны выделяют цветом, фактурными, материалами в отделке.
Освещение
В многофункциональном помещении, свет раздельный. Все зоны подсвечиваются отдельно. Расстановка осветительных приборов разрабатывается отдельно, должна быть согласована со специалистом в этой области.
Мебель
Самый часто используемый метод разделения – установка большого дивана спинкой к кухне. Также можно использовать стеллаж, шкаф.
Барная стойка отлично подходит на роль разделителя пространства
Большинство современных дизайнеров рекомендуют делать главный акцент на барную стойку. Это позволит сохранить больше свободного места, необходимость установки стола отпадает, плюс делает комнату более игривой, стильной.
Гипсокартоные перегородки легко монтируются и могут быть совершенно разного дизайна
Зонирование кухни-гостиной выполняется с помощью подбора сочетающихся цветов, текстур, материалов. В кухне предпочтительнее практичная отделка, например, плитка, в гостиной кладут паркет, ковролин. Дизайн интерьера кухни-гостиной 20 кв м не перегружается, не рекомендуется множество украшений, декора.
Тонкости совмещения
Совмещенная кухня-гостиная организуется в 2-х случаях: в жилище студийного типа, в стандартной квартире путем сноса стены. Важно, чтобы она не была несущей. Для сноса необходимо получить специальное разрешение, без него накладывается штраф.
Для сноса стены необходимо получить разрешение и сделать проект
Плюсы и минусы совмещения
Любая перепланировка подразумевает капитальный ремонт. Здесь необходимо учитывать все преимущества и недостатки этой процедуры.
Преимущества. Получение более просторного помещения с возможностью реализации любой дизайнерской идеи; увеличение уровня естественной освещенности; возможность общения хозяйки и гостей, не отходя от плиты; собственница может заниматься приготовлением пищи и присматривать за домочадцами, находящимися в гостиной; нет необходимости устанавливать 2 телевизора, одного будет достаточно.
Недостатки. Запахи еды будут распространяться на все 20 кв метров, понадобится установить мощную вытяжную систему; шум при работе с электроприборами; необходимость частых влажных уборок.
В объединенной комнате найдется место для нормальной обеденной зоны
Соединение двух маленьких помещений в одно позволит расширить функциональность каждой зоны
Ремонт кухни-гостиной 20 кв. м, если есть два окна и не только
Если в будущей кухне-гостиной есть одно или несколько окон, рекомендуется сделать основной акцент на них. С их помощью в помещении будет много естественного света, стиль будет уникальный, неповторимый.
Окна можно оформить шторами разного типа, но одной расцветки. Оформить окна можно симметрично и ассиметрично. В первом случае, интерьер будет выглядеть едино даже, если между окнами будет декор, по обе стороны можно поставить торшеры. Во втором случае, оформление проемов может быть кардинально разным, но стилевое направление должно быть единым.
Подбор мебели
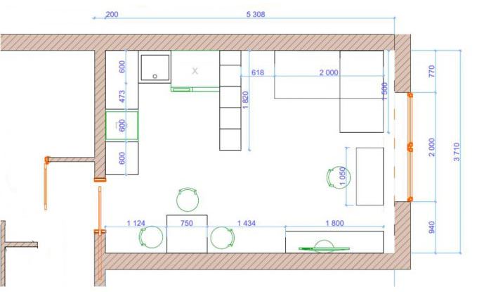
В совмещенном помещении не стоит расставлять мебель, как захочется. Есть определенные правила и рекомендации. Для экономии свободного пространства элементы устанавливают в прямую линию или буквой Г. Крупногабаритная мебель также не желательна. Отличным вариантом будут подвесные ящики, в них можно убрать всю кухонную утварь, необходимые мелочи.
Очень важно правильно расставить мебель
Обставлять комнату мебелью лучше начать с рабочей зоны, где важно создать комфортные условия для готовки
Молодые дизайнеры часто подбирают кухонные фасады под цвет крупных элементов мебели. Вся техника встраиваемая, нейтральных оттенков. Если мебель яркая, отделка должна быть светлой, без узоров и рисунков.
Поддерживать чистоту будет легче, если выбрать мягкую мебель с практичной обивкой
Зону отдыха также не рекомендуется загромождать, достаточно минимального набора. Диван ставится спинкой к кухне, напротив – телевизор. Тяжелые шторы ни к чему, они будут утяжелять пространство, лучше отдать предпочтение легким тканям.
Выбор стиля интерьера кухни-гостиной
Определиться со стилем оформления помещения сейчас достаточно непросто, из-за их большого количества. Но, не обязательно экспериментировать с обстановкой в жизни, достаточно посмотреть готовые работы в тематических журналах, на сайтах дизайнеров.
Уравновешенный и простой интерьер кухни-гостиной в скандинавском стиле
Не рекомендуется копировать абсолютно все, ведь при разработке проекта учитываются индивидуальные особенности конкретной комнаты. Смешивание нескольких стилей принесет общую обстановку сумбур.
Лофт
Свободный стиль, имеющий твердых рамок, идеален для творческих личностей, любящих везде внести лепту в свое жилище. Главное – поддержать индустриальный подтекст интерьера. Это элементы из металла: трубы, ящики, провода. Отделка стен — под кирпич, штукатурку, все, что создает ощущение заброшенности, незаконченности. Элементами оформления могут быть старые фото, ретро — декор, вещи из стекла, камня, пластика.
В лофте все детали вызывают ассоциацию с промышленным помещением
Помещение в стиле лофт должно быть свободным и просторным
Прованс
Подходит для добродушных, романтичных натур. Его характерными чертами являются светлые оттенки, напоминающие о лете, море: персиковый, голубой, зеленый, белый, лавандовый. При косметической отделке допускаются искусственные потёртости, неровности, трещинки. Отличным декором будут посуда с яркими узорами, благоухающие связки лечебных трав, лука, чеснока, картины с изображением деревенской жизни, природы. В процессе отделочных работ используются только натуральные материалы, пластик, железо под запретом.
В провансе уместны старинные предметы мебели и искусственно состаренные поверхности
Мебель желательно подбирать из натурального дерева
Минимализм
Для практичных личностей, любящих во всем порядок. Для минимализма характерны прямые линии, строгий дизайн, минимальный набор декоративных элементов, нейтральная цветовая гамма. Отделка допускается практически любая: дерево, пластик, металл, плитка, стекло. Все пространство многофункциональное, мебель встроенная, модульная.
Оформив пространство в стиле минимализма, вы получите современный и элегантный интерьер
Бытовая техника на минималистической кухне должна быть встроенной
Классика
Этот всегда будет уместен, не выйдет из моды. Но при разработке проекта необходимо учитывать высокую стоимость отделочных материалов и декора. Все материалы должны быть натуральными, мебель стильная, дорогостоящая. Рекомендуется отделывать комнату в светлых тонах, мебель подбирать на несколько тонов темнее, из редких пород дерева. Все ткани однотонные, допустима только клетка, полоска, растительный узор.
Обустройство кухни-гостиной в классическом стиле предполагает использование дорогих материалов и аксессуаров
При ограниченном бюджете можно выбрать имитации, но они должны быть высокого качества
Хай-тек
Одно из направлений минимализма, его отличие – современные технологии, выставленные на показ. Вся мебель классическая, со строгими, четкими линиями, цветовая гамма сдержанная, возможна игра на контрастах. Приветствуется в отделке и декорировании использовать металл, стекло.
Дизайн кухни-гостиной в стиле хай-тек для семьи из 2–4 человек
Для оформления интерьера выбрана бежевая палитра
Зона отдыха включает большой диван угловой формы и журнальный столик. Бежевые занавески. Подвесные шкафы.
Оформление каждой комнаты – это творческий, длительный процесс. Его главным творцом должен быть собственник и его семья, люди, которые будут жить в этом доме, квартире. Если будут услышаны все просьбы, требования, пожелания, получится полноценный, удобный интерьер, устраивающий каждого из домочадцев.
50 фото: удачных дизайнерских решений
客服
消息
收藏
下载
最近



























