查看完整案例

收藏

下载
Courtesy of Spring Architecten & MoederscheimMoonen Architects
春季建筑
架构师提供的文本描述。最近,荷兰的多霍恩有一座五颜六色的新校舍。景观和建筑的总体方案是由春天建筑与MoederscheimMoonen建筑师合作设计的。建筑师团队在这个全面的任务上进行了紧张的工作,最终形成了一个真正的“教育产业”。
Text description provided by the architects. Recently a colorful new school building has been delivered in Doorn, The Netherlands. The total scheme of landscape and buildings was designed by Spring Architecten in collaboration with MoederscheimMoonen Architects. The team of architects worked intensively on this comprehensive task which ultimately led to a real 'education estate'.
Courtesy of Spring Architecten & MoederscheimMoonen Architects
春季建筑
一个自然中心-整个建筑过程-是为了使现有的学校能够在现场施工期间继续充分运作。建筑师们想出了一个聪明的计划,将教育和体育分成两座独立的建筑。这样便可分阶段进行兴建及拆卸工程,以便在旧运动场重建后,可在旧运动场的场地上兴建新学校。新学校的选址实际上是整个地形的核心,使新学校成为自然的焦点。占据老校舍的场地是一个巨大的水功能,它已经创建,以确保以前的水问题现场终于成为过去的事情。
A natural center The entire building process was organized so that the existing school could continue to fully function whilst construction onsite was taking place. The architects came up with a smart plan in which education and sport were divided into two separate buildings. This made it possible for construction and demolition to proceed in phases so that the new school could be built on the site of the old sports halls, after they had been rebuilt elsewhere. The site of the new school is in fact at the core of the total terrain and so causes the new school to become a natural focal point. Occupying the site of the old school building is a large water feature that has been created to ensure that the previous water issues on site are finally a thing of the past.
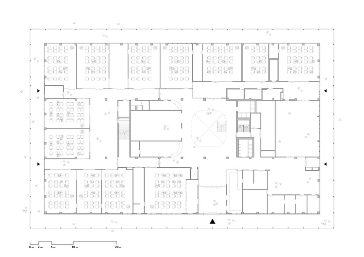
Ground Floor Plan
豪斯·里弗斯-建筑师们提供的高效、鼓舞人心和可持续的学习环境:“我们的目标是设计一所紧凑的学校。一所没有走廊的学校建筑,所有房间都将成为有效的学习空间。这导致了一个紧凑的三层设计,其中不同的学习广场和教室聚集在学校的动态心脏周围。我们的设计策略使我们实现了比原先计算的更少的交通空间,导致了更多的学习空间。该建筑还包含了一些独特的空间和功能,创造了一个整体鼓舞人心的学习环境。除了普通教室外,礼堂、许多实用室和自修室都是真正的眼球捕捉者。“
House Revius - an efficient, inspiring and sustainable learning environment From the architects: 'Our ambition was to design a compact school. A school building without corridors and where all rooms would become effective learning spaces. This has resulted in a compact three-layer design in which the different study plazas and classrooms are clustered around the dynamic heart of the school. Our design strategy has enabled us to realize fewer traffic space than originally calculated, leading to more squaremeters of study space. The building also contains a number of unique spaces and functions that create an overall inspiring learning environment. The auditorium, the many practical rooms and the study room are the real eye catchers in addition to the regular classrooms. '
Courtesy of Spring Architecten & MoederscheimMoonen Architects
春季建筑
该建筑物的正面有一个特殊的外观,并参考附近的‘豪斯杜恩’。建筑师们说:“Doorn地区以其众多的地产而闻名。景观和强大的独立乡村住宅之间的典型关系对我们的设计产生了一定的影响。我们实际上在一栋建筑里建造了一座建筑,一座非常紧凑的三层建筑,它位于两层有屋顶的建筑的表面上。我们创建的第二个外观表示了这一点。这个正面,用彩色的钢板条,提供了一个强有力的和可识别的姿态,在环境中和内部和外部之间的逐步过渡。这座建筑的每一边都有一个巨大的大门,位于板条结构内:“房子”的醒目和可辨认的面孔;同时,这些开口在景观和独特的空间之间形成了联系“。
The facade of the building has a special appearance and references the nearby ‘House Doorn’. From the architects: 'The area of Doorn is known for its many estates. The typical relationship between the landscape and the powerful detached country house certainly influenced our design. We actually made a building in a building; a very compact three-layer building within the skin of a two-tier building with a roof. This is expressed by the second facade that we have created. This facade, with colored steel slats, provides a powerful and recognizable gesture in the environment and a gradual transition between inside and outside. Each side of the building has large gates within the slat structure: the striking and recognizable face of "the house”; at the same time these openings form a connection between the landscape and the unique spaces”.
Courtesy of Spring Architecten & MoederscheimMoonen Architects
春季建筑
紧凑型学校和体育建筑的设计采用了各种创新技术,最终形成了一个未来的证明和可持续的设计。例如,使用热泵系统,它使用外部空气作为能源。与许多光伏电池板相结合,它们变成了没有燃气连接的建筑物,所有房间都可以单独调节,用于冷却、供暖、通风和照明。这创造了最佳的学习和工作环境。
The compact school and the sports building are designed with various innovative techniques that result in a future-proof and sustainable design. For instance, a heat pump system is used which uses the outside air as an energy source. In combination with the many PV panels, they have become buildings without a gas connection, where all rooms are individually adjustable for cooling, heating, ventilation and lighting. This has created an optimal learning and working climate.
Courtesy of Spring Architecten & MoederscheimMoonen Architects
春季建筑
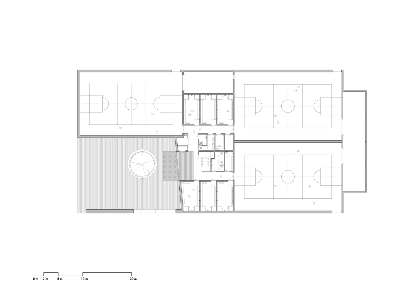
体育产业是Revius Lyceum教育的重要组成部分。它在景观设计中发挥了非常突出的作用。例如,场地后面的主运动场被美丽的树木环绕,因此没有受到影响。然而,地形设计也容纳了许多新的体育设施,如沙滩排球场、足球场和各种其他元素,这些因素都邀请了锻炼和不同的活动。
An estate for sports Sport is an important part of education at the Revius Lyceum. It played a very prominent role in the design of the landscape. For example, the main sports field at the rear of the site is surrounded by beautiful trees, and has therefore remained unaffected. The terrain design, however, also accommodates many new sporting facilities such as a beach volleyball court, a panna-soccer cage and various other elements that invite exercise and different activities.
Courtesy of Spring Architecten & MoederscheimMoonen Architects
春季建筑
体育建筑本身也受到周围景观的影响。在这座建筑的设计中,三个不同的运动场被放置在一棵不朽的树周围。这棵树创造了进入体育建筑的吸引力,同时也通过选择温暖和自然的材料来强调。建筑外观的特点是“体积”的互换,体育馆和低层更衣室形成了不同高度的不同体积的画面。为了将这些空间连接起来,决定让基座在物化和透明度方面成为具有约束力的要素。
The sports building itself has also been influenced by the surrounding landscape. In the design of this building, the three different sports halls are placed around a monumental tree. The tree creates an attraction towards entering the sports building and is also emphasized by the choice of warm and natural materials. The architectural appearance can be characterized by the interchanging 'volumes'; the gymnasiums together with the low-rise changing rooms form a varied picture of volumes with different heights. To link these spaces, it was decided to let the plinth be the binding element, both in terms of materialization and transparency.
Courtesy of Spring Architecten & MoederscheimMoonen Architects
春季建筑
该建筑群自8月份开学以来就一直在使用。第一天开学后,学生们的反应可以概括为“太棒了!”和“到处都很轻!”。老师们的反应也同样热烈,特别提到了教室和学习广场之间的直接关系。新的Revius Lyceum已经被完全接受了!
Awesome and Bright The complex has been in use since the beginning of the school year in August. The reactions of the pupils after the first day of school can be summarized as 'awesome!', and 'It’s so light everywhere!'. The teachers' reactions have been just as enthusiastic, one particularly mentioning the direct relationship between the classrooms and the study plazas. The new Revius Lyceum has been definitively accepted!
Courtesy of Spring Architecten & MoederscheimMoonen Architects
春季建筑
Architects Spring Architecten + MoederscheimMoonen Architects
Location Doorn, Utrecht, The Netherlands
Architects in Charge Alfons Hams, Jurjen Vermeer, Erik Moederscheim
Project Team Eric Strookman, Herman Hendriks, Anneke Heins, Amira Sehovic, Jelle Rinsema, Christiaan Harmse, Sulejman Gusic, Fernando Polo Calvo, Carlos Surinach, Jelmer van Zalingen
Area 8600.0 m2
Project Year 2017
Category Schools
客服
消息
收藏
下载
最近
























