查看完整案例

收藏

下载
Casa Panorama / Jim Caumeron Design
Casa Panorama / Jim Caumeron Design
Casas
Tagaytay,
Filipinas
Arquitectos:
Jim Caumeron Design
Área:
200
m²
Año:
2019
Fotografías:
Jim Caumeron
Proveedores:
Caesarstone
ABK
AutoDesk
Blanco
Boysen
Catalano
DAaZ 幕友家具
Geotech Tiles
Gessi
Trimble
Casas
Equipo De Diseño:
Jim Caumeron Design
Ciudad:
Tagaytay
Pais:
Filipinas
Esta casa es un retiro de fin de semana ubicada a 3 horas de la bulliciosa ciudad de Manila. El cliente solicitó un lugar donde pudiera descansar durante el fin de semana como una forma de escapar de la ciudad. El proyecto está ubicado en una comunidad de casas típica filipina, en su mayoría de estilo mediterráneo. El cliente le pidió a Jim Caumeron que diseñara la casa diferente a la de sus vecinos con un presupuesto limitado. El área de la propiedad es de 300 metros cuadrados. Para reducir el costo del proyecto, la superficie del edificio se redujo a 100 metros cuadrados.
Hubo dos desafíos para el proyecto. Primero, el entorno no es diferente al de la casa del cliente en Manila. Sin embargo, aquí se tienen vistas panorámicas al valle
Tagaytay
y el volcán Tall. El segundo dilema es cómo la casa puede sentirse como una casa de fin de semana cuando el área del edificio es de solo 100 metros cuadrados.
El título del proyecto es Panorama. Dado que no hay vistas redentoras en el área circundante, aparte del parque al otro lado de la propiedad, el arquitecto propuso que la casa tendría su propio "mundo", lo denominó contexto introvertido, aislando algunas vistas exteriores.
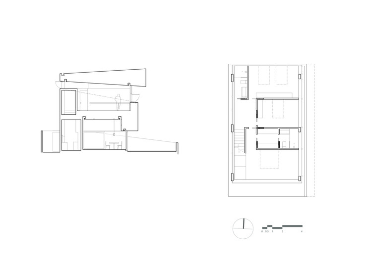
El Arquitecto lo imaginó como un volumen con dos cortes horizontales. Un corte para el nivel del suelo para vistas, ventilación y espacio extendido, y el segundo nivel para la circulación del viento y vistas al exterior. En Filipinas, la circulación del viento es primordial ya que hace mucho calor durante los meses de verano. El sitio está ligeramente inclinado, con una caída de 1,5 metros cuando llega al otro extremo de la línea de propiedad. Esto dio la oportunidad de hundir las áreas de estar y comedor 1 metro más abajo, haciendo que el parque a través del sitio se enmarque visualmente a la altura de los ojos. Los escalones que conectan el espacio de entrada con la sala de estar se convirtieron en un espacio para la siesta de la tarde, ya que es una práctica común para los filipinos hacer que sus hijos duerman por la tarde.
El espacio habitable se expande hacia el área del jardín para disfrutar de la brisa y la vista del jardín de guijarros blancos. La elección de usar rocas en lugar de césped se debió a problemas de mantenimiento diario. Esto resultó en un efecto más de otro mundo de las áreas de vida del suelo, ya que las rocas blancas rebotan la luz que ilumina la atmósfera. El lado oeste de la planta baja está tapiada para proteger el espacio habitable del calor del sol de 2 pm a 4 pm. Aquí es donde se ubicaron las áreas de servicio. La sala de estar también tiene un techo alto que deja espacio para que entre el aire caliente. El espacio también está protegido de la cálida mañana con el dosel profundo empotrado de la planta baja.
La ubicación de la puerta de vidrio principal enmarca un árbol cercano, visible cuando uno está parado en el espacio del atrio. El segundo nivel tiene una combinación de cortes horizontales y diagonales que corren alrededor de la envolvente de la estructura. Un lado tiene una abertura más grande para abrazar el amanecer y la brisa, y el lado oeste, donde el sol es más fuerte, tiene ventanas más pequeñas destinadas a sacar el aire para un enfriamiento pasivo. Las ventanas oeste y este están conectadas por ventanas diagonales en el lado norte y sur que proporcionan un perfil fuerte del diseño, con el volumen cortado en la fachada. La pendiente del techo también estaba destinada a influir en el comportamiento del aire para cruzar de un lado a otro.
Las particiones de las habitaciones se limitaron a una cierta altura para acomodar las ventanas del triforio y permitir el paso del aire. La dimensión del dormitorio principal se amplió al ocupar algo de espacio en la escalera. Esto se convirtió en un área de juegos para la hija de 4 años del cliente. Las ventanas de esta área de juegos miran hacia el hueco de la escalera que se oculta espacialmente permitiendo un efecto de túnel de viento que enfría las áreas comunes del segundo piso. El aire se puede sentir cuando uno sube y baja las escaleras mientras el viento circula hacia las pequeñas ventanas de cinta de las paredes del oeste.
Jim Caumeron Design
客服
消息
收藏
下载
最近
























