查看完整案例

收藏

下载
Дом в горе для молодой семьи
Дом в минимализме
Автор проекта: Борисенко Арсений Зайцев Петр
Объект: Дом в горе для молодой семьи
Общая площадь: 450,3 кв.м.
Уникальные характеристики обьекта: дом встроен в холм, сложные инженерные решения, оригинальная архитектура от бюро za bor
Главный фасад дома в горе. Авторы проекта Петр Зайцев, Арсений Борисенко, архитектурное бюро za bor. Постройка набрана из двух объемов. Верхний «общественный» объем, окрашен в белый цвет. Он нависает консолью с вылетами с двух сторон по 3,5 метра надо нижним «частным» объемом, который обшит доской.
Дом в минимализме. Авторы проекта Петр Зайцев, Арсений Борисенко, архитектурное бюро za bor. Нижний объем почти полностью находится внутри склона, то есть, встроен в рельеф.
Вход в дом (и все общественные зоны) находится на верхней площадке. Авторы проекта Петр Зайцев, Арсений Борисенко, архитектурное бюро za bor. Входная зона акцентирована террасной доской.
Ландшафтная группа на верхней площадке дома. Авторы проекта Петр Зайцев, Арсений Борисенко, архитектурное бюро za bor.
Архитектурные детали дома имеют сложную геометрию. Авторы проекта Петр Зайцев, Арсений Борисенко, архитектурное бюро za bor.
Объединенное пространство гостиной находится на верхнем этаже. Авторы проекта Петр Зайцев, Арсений Борисенко, архитектурное бюро za bor. Минималистичный интерьер выдержан в пастельной цветовой гамме.
Барная стойка в форме скобы выполнена из бетона строительным способом. Авторы проекта Петр Зайцев, Арсений Борисенко, архитектурное бюро za bor.
Вид из гостиной на лестницу. Авторы проекта Петр Зайцев, Арсений Борисенко, архитектурное бюро za bor.
Визуальная доминанта гостиной – камин. Авторы проекта Петр Зайцев, Арсений Борисенко, архитектурное бюро za bor. Его портал и дымоход выполнены из бетона в стилистике минимализм. Рядом с топкой камина – поленница, полная дров.
Зона отдыха в гостиной. Авторы проекта Петр Зайцев, Арсений Борисенко, архитектурное бюро za bor. На полу – доска из лиственницы. Стены выкрашены в белый цвет. Яркие «пятна» на столь нейтральном фоне – кресла с оранжевой и желтой обивкой округлых форм.
Зона столовой в общем гостевом пространстве верхнего уровня. Авторы проекта Петр Зайцев, Арсений Борисенко, архитектурное бюро za bor. Столовая группа, Ligne Roset.
Интерьер кухни решен на контрасте светлого дерева и черного лака, глянцевого керамогранита и хромированной фурнитуры. Авторы проекта Петр Зайцев, Арсений Борисенко, архитектурное бюро za bor.
Лестница ведет на нижний этаж, где разместились приватные помещения. Авторы проекта Петр Зайцев, Арсений Борисенко, архитектурное бюро za bor. Стены и пол обшиты массивной доской из лиственницы.
Интерьер кабинета на нижнем этаже. Авторы проекта Петр Зайцев, Арсений Борисенко, архитектурное бюро za bor. Большая высота потолков позволила надстроить антресоль. Из кабинета можно попасть на обширный газон перед домом.
Интерьер игровой. Авторы проекта Петр Зайцев, Арсений Борисенко, архитектурное бюро za bor. Световое окно имеет минимальный скат, но не наружу как обычно, а к центру крыши, что позволяет дождевой воде собираться в центральной части крыши, стекать по наклонной плоскости окна, попадая в желоб, и отводиться на поливку растений с другой стороны дома.
Спальня в минимализме. Авторы проекта Петр Зайцев, Арсений Борисенко, архитектурное бюро za bor. Кровать сделана из МДФ. Она словно парит над полом. Это ощущение усиливает встроенная по периметру основания кровати подсветка.
Хозяйская ванная. Авторы проекта Петр Зайцев, Арсений Борисенко, архитектурное бюро za bor. Раковина из кориана со сложной геометрией.
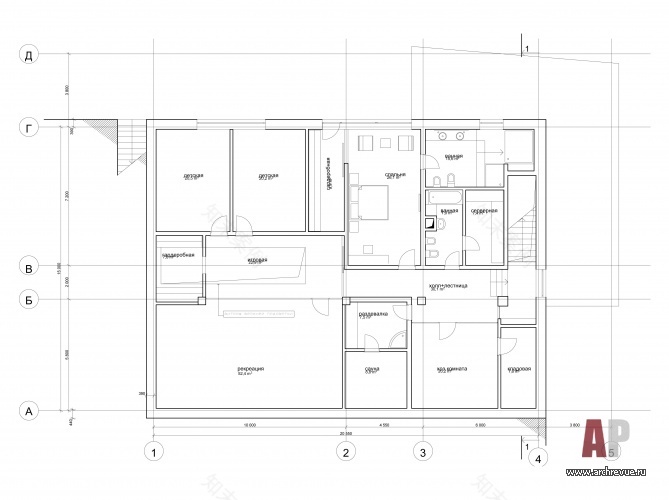
План первого этажа двухэтажного дома с холме. Общая площадь - 450, 3 кв. м.
План второго этажа двухэтажного дома с холме. Общая площадь - 450, 3 кв. м.
Концепция
При проектировании дома архитекторы архитектурного бюро za bor исходили из сложной конфигурации ландшафта. Для строительства дома был отведен участок, который располагался на двух уровнях с перепадом в 3,5 метра.
Именно сложный ландшафт подтолкнул к идее погрузить почти весь дом в склон холма, так, чтобы из окон открывался прекрасный вид на заливной луг. Верхний объем, окрашен в белый цвет. Он нависает консолью с вылетами с двух сторон по 3,5 метра надо нижним объемом, который почти полностью находится внутри склона, то есть, встроен в рельеф.
Такая компоновка дома вызвала некоторую специфику конструктивных решений, например, чтобы удержать массивную консоль, в фундаменте предусмотрена балка-противовес, заглубленная на 1,5 метра. На участке также располагаются два дополнительных строения – на верхнем уровне техническое (гараж, котельная, кладовые, квартира персонала), а на нижнем, на лугу, – беседка с барбекю.
Планировка
Пространство в доме организовано вопреки привычной логике: вход в дом и общественные зоны находятся наверху, а частные помещения - внизу.
Верхний объем спроектирован как длинный консольный вывес. В этом белом объеме расположены основные гостевые зоны: гостиная, кухня, столовая. Частные помещения занимают первый этаж (серой объем), который совершенно не виден с дороги и других домов, расположенных по более высокой стороне участка.
С нижнего уровня есть возможность выходить непосредственно на луг.
Декор
Интерьер является продолжением экстерьера. В минималистичном пространстве небольшое количество ярких, необычных элементов смотрится наиболее эффектно.
Пример тому, бетонная барная стойка, бетонный камин, деревянная, как бы парящая над полом кровать, раковина из кориана со сложной геометрией. А также мебель с обивкой желтых и оранжевых жизнерадостных цветов.
Комплектация объекта
Строительные и отделочные материалы
Мягкая кровля
, производитель и поставщик «ТехноНиколь »
Окна
, стеклянные конструкции, поставщик Schuco
Террасная доска
, поставщик «Илес»
Двери
, поставщик Union
Массивная доска
, лиственница, поставщик «Илес»
Керамическая плитка
, поставщик RIM.ru
Кориан
, производитель DuPont
Ковры
, авторская работа Юлия Галагина
Мебель
Driade, Ligne Roset
Оборудование
Оборудование котельной
Buderus
Система кондиционирования
Daikin
Электроустановочное оборудование
GIRA
комментарии к объекту
Зайцев Петр
История дома началась с небольшой публикации 3D-проекта нашего бюро za bor в журнале, благодаря которой молодая семья из Москвы и нашли нас. Этот проект потребовал от нас сложных инженерных решений. Поскольку приватная часть погружена в склон, где плохая инсоляция, поэтому в центральной ее части было прорезано зенитное окно, хорошо заметное по окружающему его канту – дающему еще один небольшой объем на площадке верхнего уровня дома. Зенитное окно имеет остроумною конструкцию и снабжено желобом для сброса дождевой воды, которая собирается и стекает по окну, поступая по отводу к террасированному склону с растениями.
Аналогичное окно имеется на крыше дома, которая имеет минимальный скат, но не наружу как обычно, а к центру крыши, что позволяет дождевой воде собираться в центральной части крыши, стекать по наклонной плоскости окна, попадая в желоб, и отводиться на поливку растений с другой стороны дома.
客服
消息
收藏
下载
最近






















