查看完整案例


收藏

下载
© Niveditaa Gupta
(c)NiveditaaGupta
架构师提供的文本描述。该项目需要改变1970年的结构,以适应客户当前的功能/规划需求。这座建筑是属于一个单一家庭的世代相传的家。这导致了该网站的混合使用开发,其中包括一个律师办公室,一个牙医诊所和一个住所的现场工作人员。露台被认为是居住者的公共空间,也是城市之外的公共空间。
Text description provided by the architects. The project entailed altering a 1970's structure to accommodate the client's current functional / programmatic requirements. The building is a generational home belonging to a single family. This led to a mixed-use development for the site which incorporates a lawyer's office, a dentist clinic and a residence for on-site staff. The terrace is conceived as a public space for the occupants as well as the city beyond.
© Niveditaa Gupta
(c)NiveditaaGupta
改造工程可以说是一个城市挖掘,在那里的群众是为了创造空间和带来光明。挖掘过程揭示了建筑物的底层结构,使我们能够插入一个较轻的钢框架,以创造所需的开口,以最大限度地利用日光。通过对天花板的雕刻,进一步增强了挖掘意识,唤起了人们对历史建筑的记忆。
The renovation project can be described as an urban excavation, where the mass was carved to create space and bring in light. The excavation process revealed the underlying structure of the building which allowed us to insert a lighter steel frame to create the desired openings to maximize daylight. The sense of excavation was further enhanced through the sculpting of ceiling which evoke memories of historical buildings.
© Niveditaa Gupta
(c)NiveditaaGupta
Facade是一个由层组成的系统,它创建了一个扩展的阈值条件。一口已干涸的水井已在现场挖掘,作为图书馆使用.这是这个项目的概念驱动因素,它表达了一个垂直轴,最终形成了一个灯箱。这是连接地球和太阳的隐喻。轴心也成为规划程序的组织原则。前面的空间是公共的,因为后面的空间提供私人功能。
The facade is a system of layers that creates an expanded threshold condition. An existing dried up water - well was excavated on-site to be used as a library. This was the conceptual driver for the project to express a vertical axis that culminated in a light box. This was a metaphor for connecting the earth and the sun. The axis also became the organizing principle for laying out the program. The spaces in front are public where as those towards the rear serve private functions.
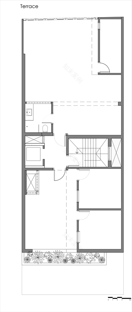
Axonometric
每个空间都有不同的特征,尽管它们有相似的材料调色板,石头,木材,钢和玻璃块。该项目包括直接与当地工匠合作,并解决施工过程中不断演变的现场细节。
Each space has a different character even though they share a similar material palette of stone, wood, steel and glass blocks. The project involved working directly with local craftsmen and resolving details on-site which evolved through the process of construction.
© Niveditaa Gupta
(c)NiveditaaGupta
这个项目反映了像印度这样的发展中国家城市设计的真正性质,它将公共和私人结合在一起。
This project is reflective of the true nature of urban design for a developing country like India which incorporates bringing together the public and the private.
© Niveditaa Gupta
(c)NiveditaaGupta
Architects Harsh Vardhan Jain Architects
Location New Delhi, Delhi, India
Principal Architect Harsh Vardhan Jain
Project Architect Anahita Fotedar
Team Anusha Dhawan, Mihika Mehra, Sameeksha Gulati, Audarya Bansal, Arushi Rana
Area 5000.0 ft2
Project Year 2018
Photographs Niveditaa Gupta
Category Renovation
Manufacturers Loading...
客服
消息
收藏
下载
最近



























