查看完整案例

收藏

下载
小石川“蝴蝶”屋顶住宅 / 手嵨保建筑事务所
混凝土与木材营造的温暖住宅。
我们使用钢筋混凝土结构作为房子的基本结构,这种框架体系便于应对家庭需求的变化。
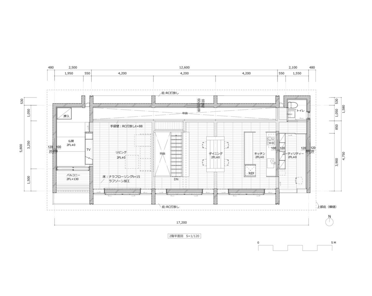
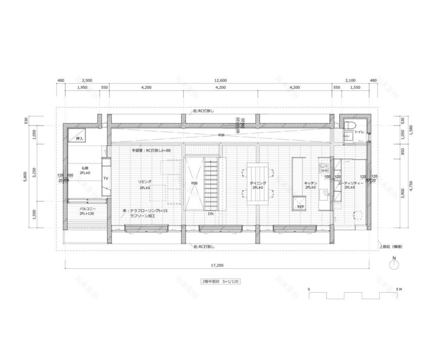
平面以1050mm为模数。二楼是一个开放的LDK空间,屋顶呈现为蝴蝶形,天窗将光线引入房间的北部。
天窗的形状基于对当地太阳高度角的考虑,在夏季避免阳光直射建筑,在冬季则尽可能将更多的阳光引入室内。四季更替,光影的变幻不断为人们创造新鲜的体验。
技术图纸
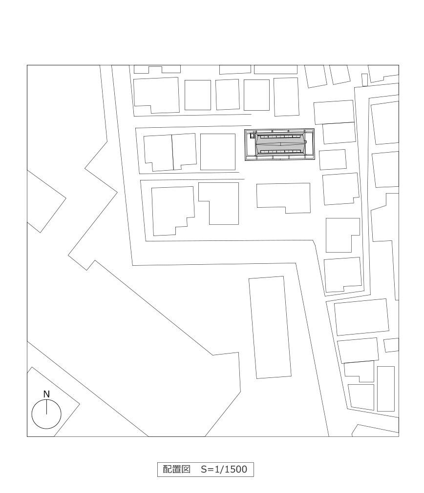
△ 总平面图
△ 一层平面图
△ 二层平面图
△ 剖面图
项目信息
项目类型:
独立住宅
项目地点:
BUNKYO CITY,
日本
面积:
172 m²
项目年份:
2019
建筑设计
:
手嵨保建筑事务所
设计团队:
Tamotsu Teshima, Hisako Takai
工程师:
KMC
景观设计:
Hashiuchi Landscape Design
摄影师:
Shinkenchiku-sya
客服
消息
收藏
下载
最近


























